Для студентов МГТУ им. Н.Э.Баумана по предмету Проектирование технологических комплексов механосборочного производства (МТ-3)Технологический комплекс механосборочного производства спрямляющего аппарата самолетаТехнологический комплекс механосборочного производства спрямляющего аппарата самолета
4,89560
2021-07-132021-07-13СтудИзба
Курсовая работа: Технологический комплекс механосборочного производства спрямляющего аппарата самолета
-50%
Описание
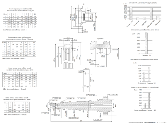
Технологический комплекс механосборочного производства спрямляющего аппарата самолета
![]()







Характеристики курсовой работы
Учебное заведение
Просмотров
11
Размер
4,97 Mb
Список файлов
РПЗ+листы.pdf