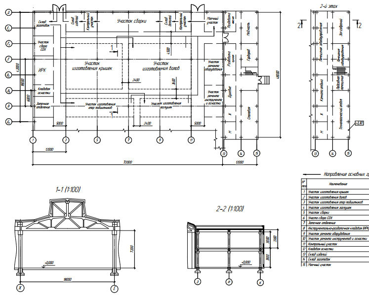
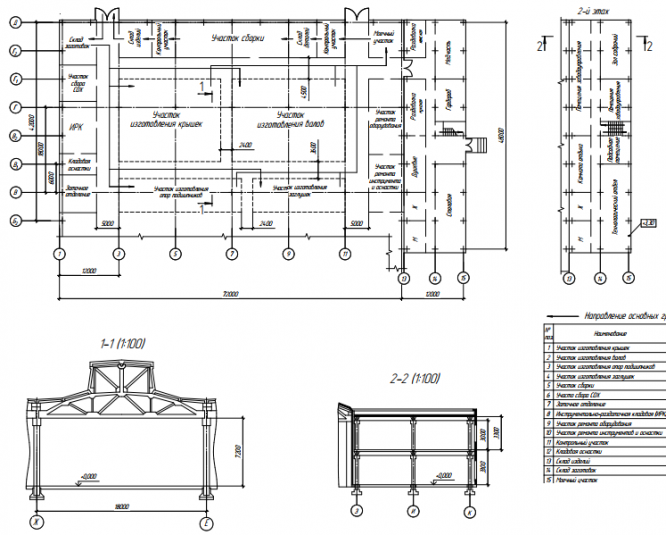
Для студентов МГТУ им. Н.Э.Баумана по предмету Проектирование технологических комплексов механосборочного производства (МТ-3)Технологический комплекс изготовления привода агрегатов ДВСТехнологический комплекс изготовления привода агрегатов ДВС
4,88560
2021-07-132021-07-13СтудИзба
Курсовая работа: Технологический комплекс изготовления привода агрегатов ДВС
-50%
Описание
Характеристики курсовой работы
Учебное заведение
Просмотров
22
Размер
19,46 Mb
Список файлов
29
Листы.pdf
РПЗ.pdf

МГТУ им. Н.Э.Баумана


















