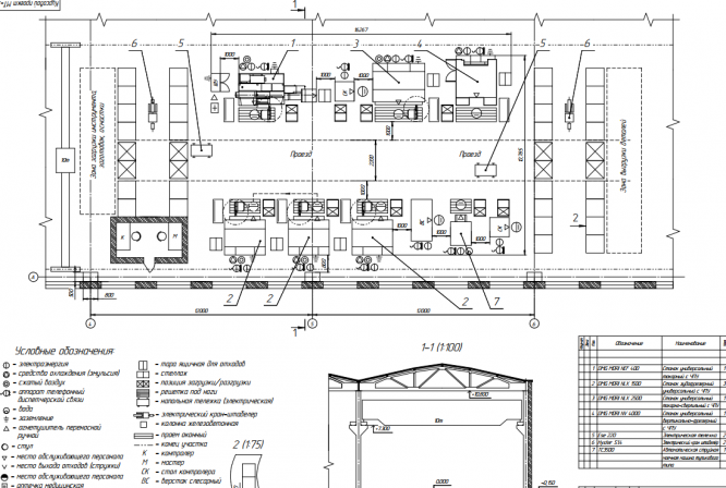
Для студентов МГТУ им. Н.Э.Баумана по предмету Проектирование технологических комплексов механосборочного производства (МТ-3)Проектирование участка механической обработки зубчатых колесПроектирование участка механической обработки зубчатых колес
5,0054
2021-06-272021-06-27СтудИзба
Курсовая работа: Проектирование участка механической обработки зубчатых колес
Бестселлер
Описание
Характеристики курсовой работы
Учебное заведение
Просмотров
39
Размер
1,33 Mb
Список файлов
Разработка и успешная защита курсового проекта на тему Проектирование участка механической обработки деталей типа зубчатое колесо
Листы.pdf
РПЗ.pdf
Комментарии
Нет комментариев
Стань первым, кто что-нибудь напишет!
МГТУ им. Н.Э.Баумана



















