Для студентов МГТУ им. Н.Э.Баумана по предмету ПрактикаОтчет по практике (ВПК НПО машиностроения - Корпус)Отчет по практике (ВПК НПО машиностроения - Корпус)
5,0051
2023-08-152023-08-15СтудИзба
Отчёт по практике: Отчет по практике (ВПК НПО машиностроения - Корпус)
Описание

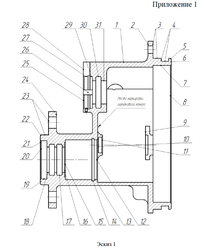
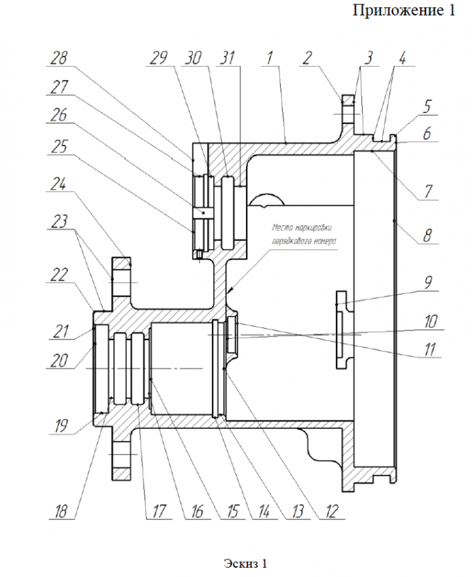
2. Объект исследования
Объектом исследования является корпус (см. Приложение 1). Он представляет собой литую деталь с толщиной стенок 3 мм. В его конструкции имеется три сквозных отверстия для крепления изделия в целом к различным поверхностям, а также шесть отверстий с нарезанной резьбой для крепления крышки.

Характеристики отчёта по практике
Предмет
Учебное заведение
Семестр
Просмотров
13
Размер
812,83 Kb
Список файлов
Отчет по практике (Корпус) (3).pdf

НОВИНКА: отчеты по практикам! Поиск - по названию предприятия в тэге. База учебных материалов МГТУ им. Н.Э. Баумана в формате pdf, оригиналы файлов отсутствуют (если иное не оговорено в описании). Вопросы задавайте ДО покупки в комментариях под файлами.