Для студентов МГТУ им. Н.Э.Баумана по предмету Построение технологических процессовПроектирование технологического процесса вала III оси и сборочной единицыПроектирование технологического процесса вала III оси и сборочной единицы
4,865280
2021-04-212021-04-21СтудИзба
Курсовая работа: Проектирование технологического процесса вала III оси и сборочной единицы
Описание
Проектирование технологического процесса вала III оси и сборочной единицы
Содержание.
Введение
Раздел первый. Разработка технологического процесса сборки узла.
Назначение узла в машине и краткое описание его конструкции
Анализ технологичности конструкции: качественные и количественные критерии оценки технологичности конструкции, выводы
Расчет размерной цепи двумя методами ( вероятностным и max/min)
Разработка и обоснование технологической схемы общей и узловой сборки узла
Выбор организационной формы сборки
Раздел
2. Проектирование технологического маршрута изготовления детали
Назначение детали. Анализ технических требований чертежа детали, выявление
основных технологических задач, разработка схем контроля по основным
параметрам точности
Отработка конструкции на технологичность для заданного типа производства
Обоснование выбора материала детали для данного типа производства: критерии
выбора, условия эксплуатации
Выбор и обоснование метода получения заготовки: критерии выбора,
схематическое изображение (эскиз) заготовки
Маршруты обработки основных поверхностей детали, их обоснование
Выбор баз и схем базирования для нескольких операций
Разработка маршрута изготовления детали для заданного типа производства
с выбором технологического оборудования, инструментов
Разработка операционной технологии для нескольких операций с выбором режущих
инструментов, обоснованием и расчетом режимов резания и норм времени
Расчет припусков на механическую обработку
Графическая часть
Чертежи выполнены в Компас-3d v 10
Выбор заготовки А1
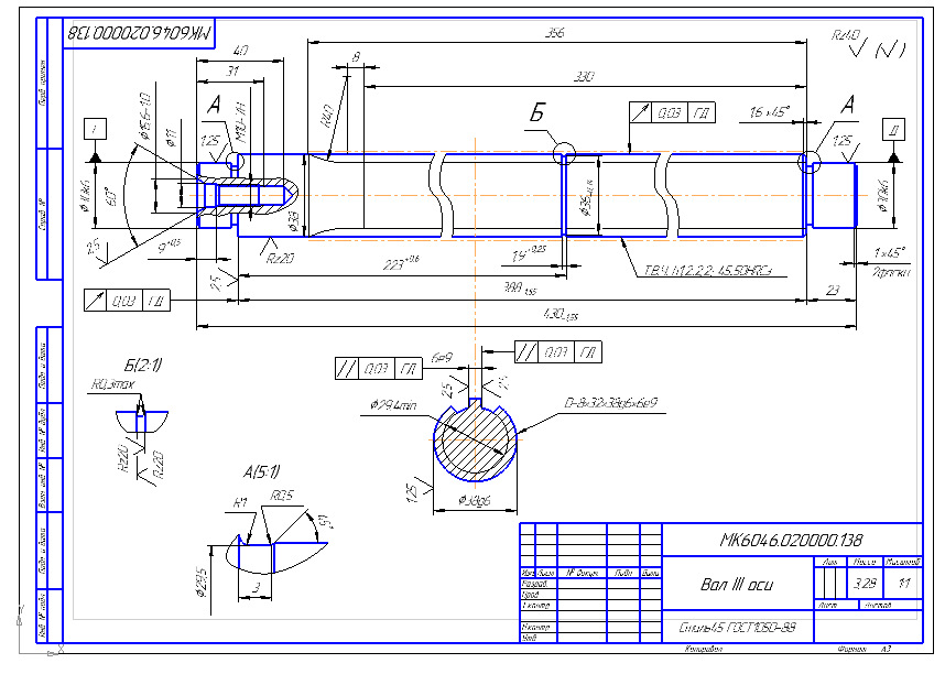
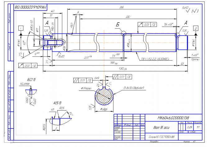
Чертеж детали А3
Эскизы А1
Сборочный узел А1
Припуски А1
Карта наладки А1
Содержание.
Введение
Раздел первый. Разработка технологического процесса сборки узла.
Назначение узла в машине и краткое описание его конструкции
Анализ технологичности конструкции: качественные и количественные критерии оценки технологичности конструкции, выводы
Расчет размерной цепи двумя методами ( вероятностным и max/min)
Разработка и обоснование технологической схемы общей и узловой сборки узла
Выбор организационной формы сборки
Раздел
2. Проектирование технологического маршрута изготовления детали
Назначение детали. Анализ технических требований чертежа детали, выявление
основных технологических задач, разработка схем контроля по основным
параметрам точности
Отработка конструкции на технологичность для заданного типа производства
Обоснование выбора материала детали для данного типа производства: критерии
выбора, условия эксплуатации
Выбор и обоснование метода получения заготовки: критерии выбора,
схематическое изображение (эскиз) заготовки
Маршруты обработки основных поверхностей детали, их обоснование
Выбор баз и схем базирования для нескольких операций
Разработка маршрута изготовления детали для заданного типа производства
с выбором технологического оборудования, инструментов
Разработка операционной технологии для нескольких операций с выбором режущих
инструментов, обоснованием и расчетом режимов резания и норм времени
Расчет припусков на механическую обработку
Графическая часть
Чертежи выполнены в Компас-3d v 10
Выбор заготовки А1
Чертеж детали А3
Эскизы А1
Сборочный узел А1
Припуски А1
Карта наладки А1
Характеристики курсовой работы
Учебное заведение
Семестр
Просмотров
27
Размер
775,45 Kb
Список файлов
МТ3-81(проект)
записка
эскизы
3.bak
3.frw
Фрагмент.frw
Фрагмент2.frw
Фрагмент3.frw
Фрагмент4.frw
Фрагмент56.frw
контр.frw
контроль.frw
паралл.frw
припуски.frw
соосность.frw
~$проект.doc
~$тульный лист1.doc
Введение1.doc
Заключение1.doc
Карта припусков.doc
Маршрутка.doc
Содержание1.doc
Список литературы1.doc
Титульный лист1.doc
проект.doc
схемы сборки.doc
схемы2.doc
окончательное
Чертеж детали.cdw
выбор заг-ки.cdw
наладка.cdw
Комментарии
Нет комментариев
Стань первым, кто что-нибудь напишет!
МГТУ им. Н.Э.Баумана


















