Для студентов МГТУ им. Н.Э.Баумана по предмету Подъёмно-транспортные машины (ПТМ)ПТМ 02-7 (Все листы + РПЗ + Маткад)ПТМ 02-7 (Все листы + РПЗ + Маткад)
5,0053
2021-10-222021-10-22СтудИзба
Курсовая работа 2: ПТМ 02-7 (Все листы + РПЗ + Маткад) вариант 7
Описание
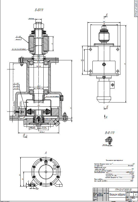
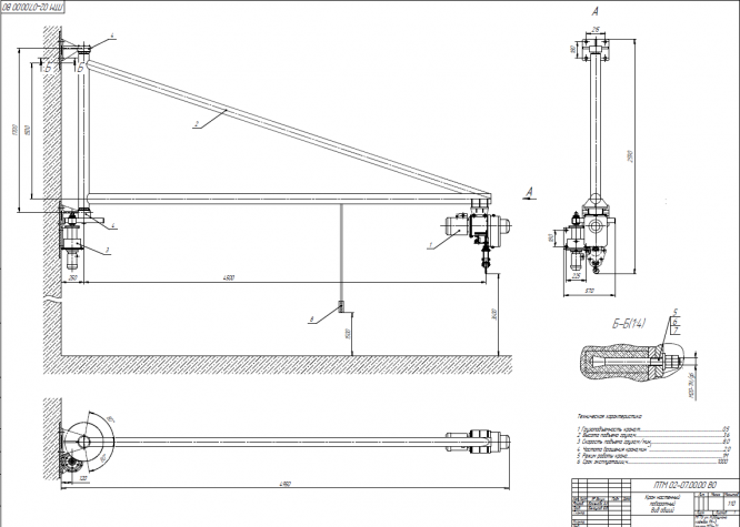
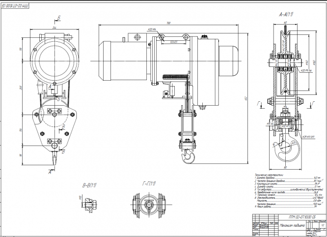
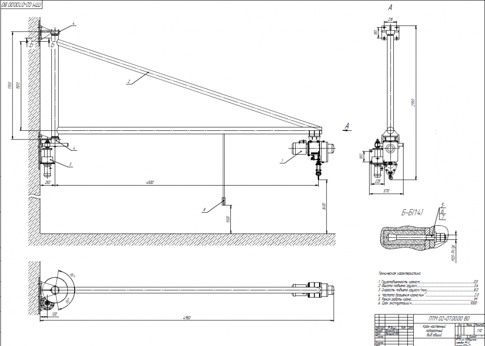
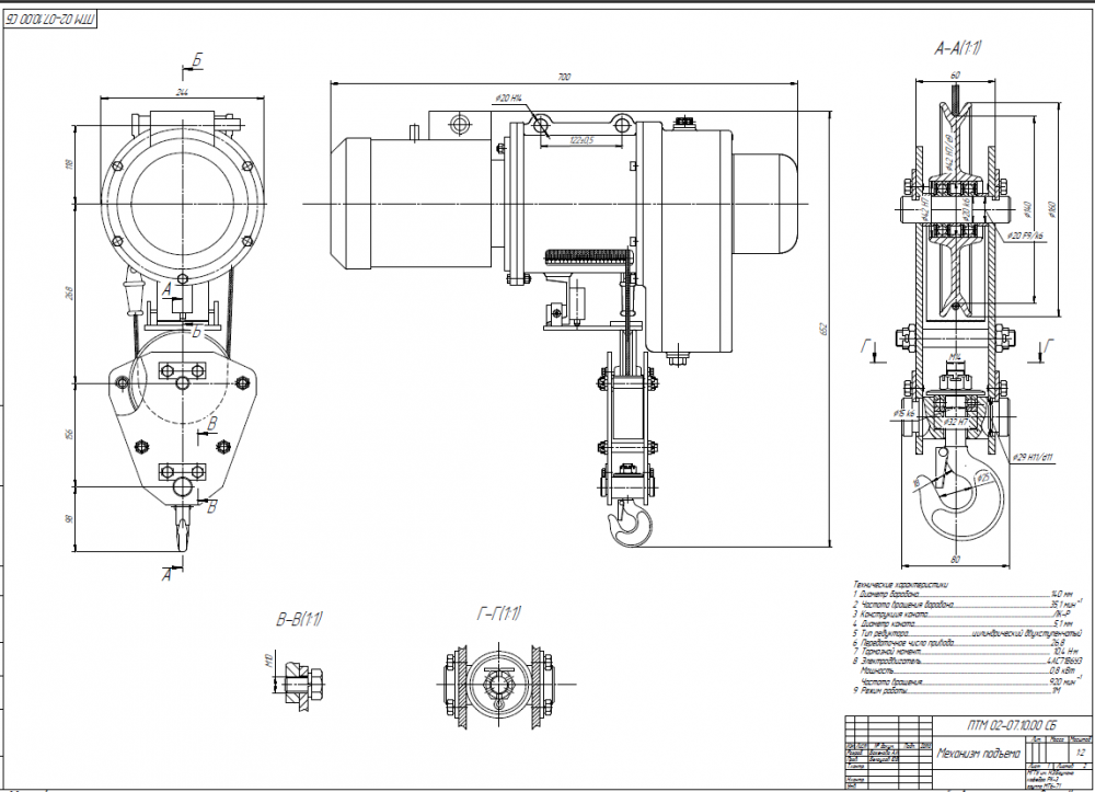
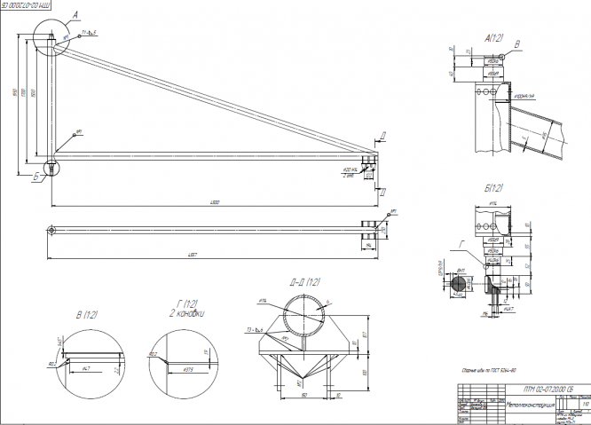
В архиве:- Чертежи в Компасе (.cdw): Общий вид, Металлоконструкция, Механизм подъема(2 листа: таль + крюковая подвеска), Механизм поворота

- Спецификация
- РПЗ в Word, его содержание:
1.1 Выбор электродвигателя
1.2 Определение диаметра каната
1.3 Расчет характеристик канатного барабана
1.4 Выбор редуктора
1.5 Выбор тормоза
2. Крюковая подвеска
2.1 Блоки
2.2 Крюк
3. Металлоконструкция
3.1 Расчет основных параметров
3.2 Проверка статического прогиба
3.3 Определение веса
3.4 Проверка прочности
4.Опорно-поворотные узлы
4.1 Момент инерции поворотной части крана
4.2 Нагрузка на опорные узлы
4.3 Расчет подшипников крановых опор
4.3.1 Расчет опорных подшипников
4.3.2 Расчет упорного подшипника
5. Механизм поворота
5.1 Выбор электродвигателя
5.2 Уточнение предварительных расчетов
5.3 Выбор редуктора
5.4 Расчет открытой зубчатой передачи
6.Расчет болтов для крепления крана к стене
Список литературы
Приложение 1.
- Расчет РПЗ в Mathcad
Характеристики курсовой работы
Учебное заведение
Семестр
Номер задания
Вариант
Просмотров
76
Размер
5,67 Mb
Список файлов
на студизбу
Задание.pdf
Металлоконструкция.cdw
Мех поворота.cdw
Механизм подъема (чистовик).cdw
Механизм подъема.cdw
Общий вид.cdw
РПЗ ПТМ02-7.docx
Расчет.xmcd
Спецификация.cdw
МГТУ им. Н.Э.Баумана
catspinner


















