Для студентов МГТУ им. Н.Э.Баумана по предмету Основы технологии приборостроенияЛР2. Расчет показателей технологичности изделия. МЧ00.07.00.00ЛР2. Расчет показателей технологичности изделия. МЧ00.07.00.00
5,00512
2025-05-102025-05-10СтудИзба
Лабораторная работа 2: ЛР2. Расчет показателей технологичности изделия. МЧ00.07.00.00 вариант 7
Описание
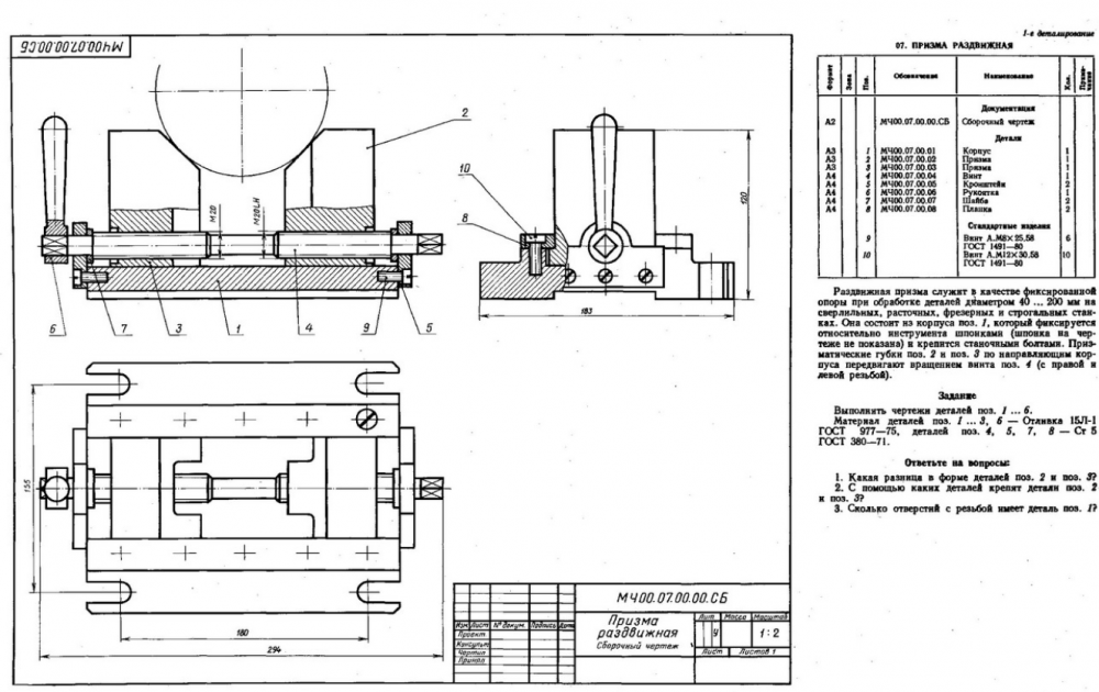
Изделие МЧ00.07.00.00 (призма раздвижная). По составленному графу конструкции изделия из ЛР1.![]()
- Граф показателей технологичности изделия
- Расчет показателей технологичности
- + Основные допуски формы и расположения поверхностей изделия

Характеристики лабораторной работы
Учебное заведение
Семестр
Номер задания
Вариант
Программы
Теги
Просмотров
7
Качество
Скан рукописных листов
Размер
2,5 Mb
Список файлов
ЛР2. МЧ00.07.00.00.pdf
Граф конструкции МЧ00.07.00.00.pdf

\\