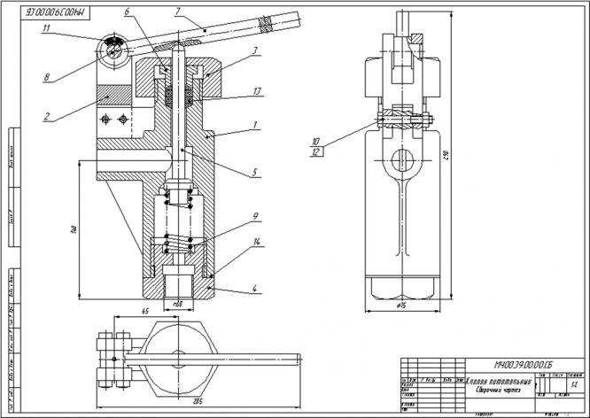
Для студентов МГТУ им. Н.Э.Баумана по предмету Основы технологии приборостроенияКлапан питательныйКлапан питательный
5,0051
2022-02-142022-02-14СтудИзба
ДЗ: Клапан питательный
Описание
Характеристики домашнего задания
Учебное заведение
Семестр
Просмотров
22
Размер
942,97 Kb
МГТУ им. Н.Э.Баумана



















