Для студентов МГТУ им. Н.Э.Баумана по предмету Основы конструирования приборов (ОКП)Следящий привод возратно-поступательного движения: Расчет валов и опор + Детальная проработкаСледящий привод возратно-поступательного движения: Расчет валов и опор + Детальная проработка
4,915693
2023-12-292023-12-29СтудИзба
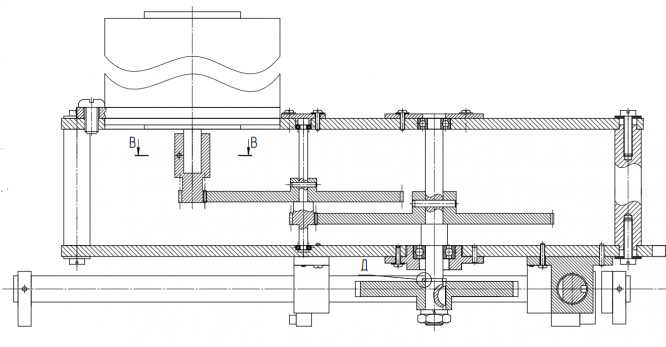
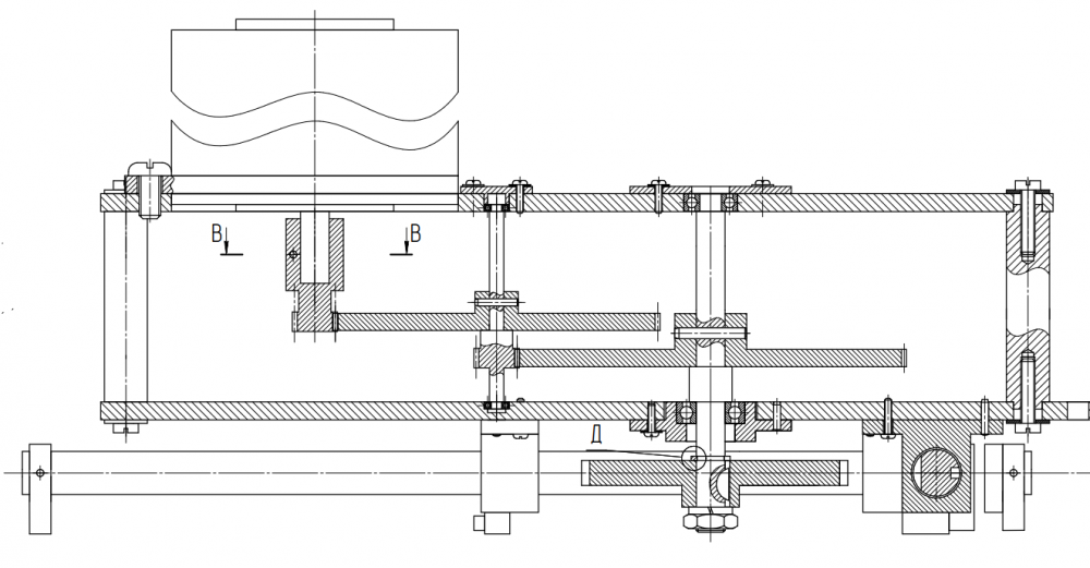
ДЗ 2: Следящий привод возратно-поступательного движения: Расчет валов и опор + Детальная проработка вариант 15
Описание
При покупке Вы можете получить подарок 20 руб.
Зачтено на максимальный балл!!!
Идеальное качество файлов, документов 💥 💥 💥
Не только копировать, а нужно понимать!
Характеристики домашнего задания
Учебное заведение
Номер задания
Вариант
Программы
Просмотров
14
Качество
Идеальное компьютерное
Размер
2,16 Mb
Список файлов
Дмитриев_детальная_проработка_10.pdf
Дмитриев_Расчёт опор_валов(2).pdf

Ваше удовлетворение является нашим приоритетом. Вставьте 5 звезд и позитивные комментарии сразу дам Вам подарок. Благодарю за использование моей службы!!