Для студентов МГТУ им. Н.Э.Баумана по предмету Метрология, стандартизация и сертификация (МСиС)Допуски и посадки и Сборочная размерная цепь + Подетальная размерная цепьДопуски и посадки и Сборочная размерная цепь + Подетальная размерная цепь
5,00542
2023-04-162024-09-30СтудИзба
Услуга: Допуски и посадки и Сборочная размерная цепь + Подетальная размерная цепь
-66%
Описание
Принимаю заказы на решение ДЗ (ДЗ №1 или ДЗ №2) по метрологии, стандартизации и сертификации. В течение трёх суток я пришлю полное ДЗ по метрологии, стандартизации и сертификации с учётом всех пожеланий.
Если вдруг по какой-то причине не будет результата - гарантируем полный возврат!
Условие ДЗ
Последовательность выполнения:
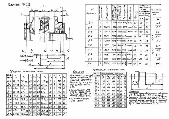
- Выбрать посадки для соединений:
- внутреннего кольца подшипника с валом (по d),
- наружного кольца подшипника с корпусом (по D),
- крышки с корпусом (по d1),
- распорной втулки с валом (по d2),
- вала с зубчатым колесом (по d3)
- Построить схемы расположения полей допусков для выбранных посадок: d, D, d1, d2, d3.
- Рассчитать числовые характеристики посадок для соединений: d1, d2, d3 и указать их значения на схемах расположения полей допусков.
- На выданном эскизе задания для всех указанных на сборке соединений проставить условные обозначения посадок.
- Начертить эскизы следующих деталей: вала, корпуса, распорной втулки, крышки и ступицы зубчатого колеса. Поставить на них размеры с условным обозначением полей допусков и с соответствующими им предельными отклонениями. На эскизах вала и корпуса указать допуски формы и параметров шероховатости поверхностей, сопрягаемых с подшипниками качения.
- Выбрать средства измерения для контроля деталей соединения по d2.

Примеры ДЗ №1 и ДЗ №2 по по метрологии, стандартизации и сертификаци, которые я решаю для студентов:

Спасибо за покупку! 🥰🥰🥰
Условие ДЗ






Примеры ДЗ №1 и ДЗ №2 по по метрологии, стандартизации и сертификаци, которые я решаю для студентов: ![]()
Спасибо за покупку! 🥰🥰🥰
Характеристики домашнего задания
Учебное заведение
Программы
Просмотров
2189
Качество
Идеальное компьютерное
Срок выполнения
3 суток

Друзья, спасибо за доверие! Если вам понравилась работа – поставьте 5⭐ и напишите отзыв. Это поможет другим студентам, а мне даст силы делать ещё больше качественных материалов для вас 🔥