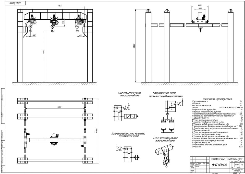
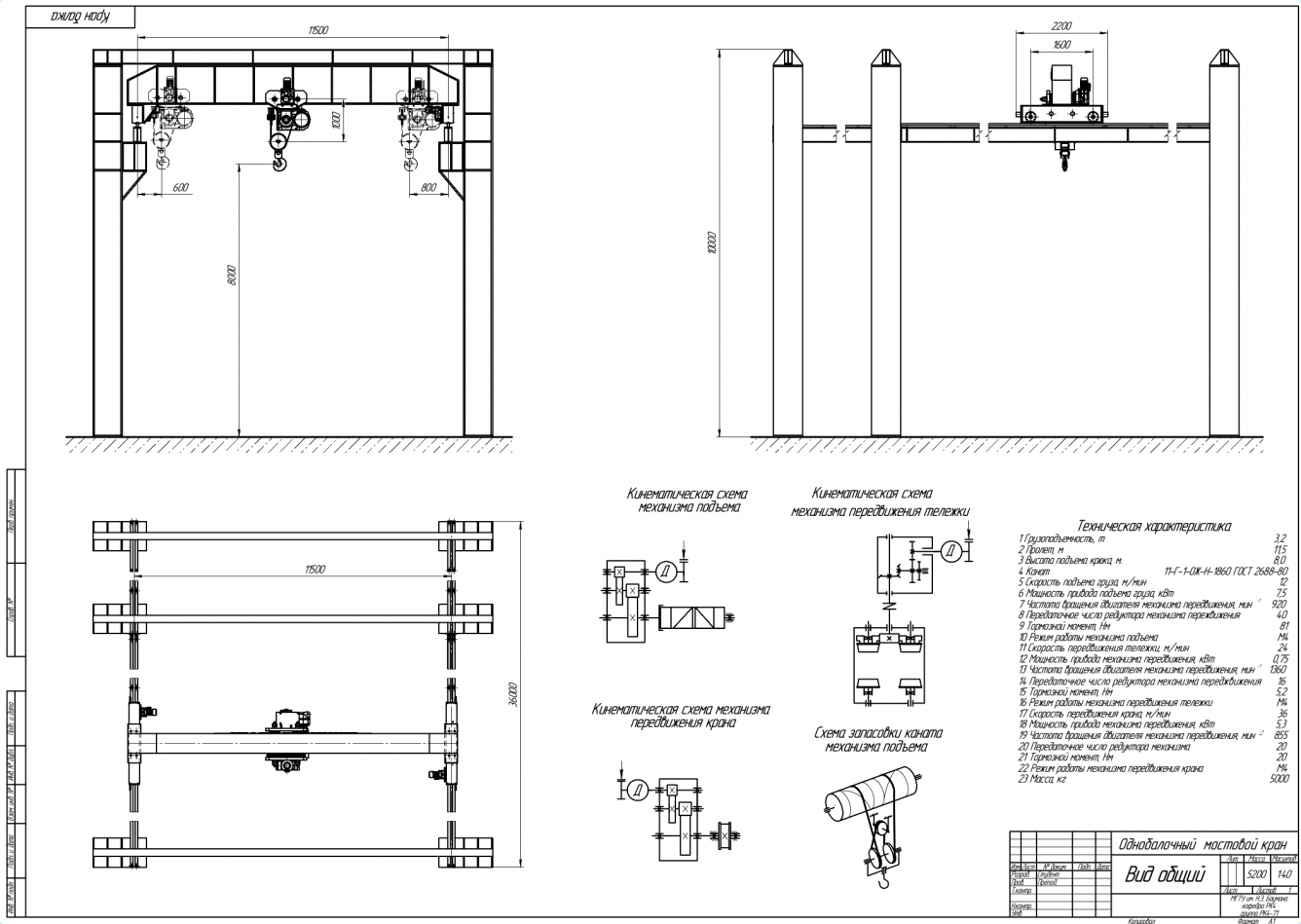
Для студентов МГТУ им. Н.Э.Баумана по предмету Методы расчета и проектирования наземных транспортно-технологических средствОднобалочный мостовой кран опорного типа: Q = 3,2 т, высота подъема 8 м, пролет 11,5 мОднобалочный мостовой кран опорного типа: Q = 3,2 т, высота подъема 8 м, пролет 11,5 м
4,9952536
2026-01-23СтудИзба

Курсовая работа: Однобалочный мостовой кран опорного типа: Q = 3,2 т, высота подъема 8 м, пролет 11,5 м

Новинка

Описание

Курсовой проект РК4 на тему «Однобалочный мостовой кран опорного типа: Q = 3,2 т, высота подъема 8 м, пролет 11,5 м»

Курсовой проект был сдан А.М. Ромашко на удовл
Что входит в стоимость:
  • 5 листов чертежей (.pdf и .cdw – для Компас 3D v23 или AutoCAD 24) 😎
  • 42 листа РПЗ (.pdf и .docx – куча расчетов и тд.) 🤯
  • Титульный лист, задание и план – удобно 😌
Что дальше?
  1. Я бы советовал Вам разобраться в том, что происходит в проекте
  2. Постепенно показывать руководителю
  3. Скорее всего, будут правки, это нормально
  4. Самостоятельно доработать проект, заодно хоть немного разобравшись)



Характеристики курсовой работы

Учебное заведение
Семестр
Теги
Просмотров
0
Качество
Идеальное компьютерное
Размер
8,8 Mb

Преподаватели

Список файлов

1_ВО_А1.cdw
2_3_ТАЛЬ_А1х2.cdw
4_МПК_А1.cdw
5_ПОДВЕСКА_А1.cdw
1 лист.pdf
2-3 листы.pdf
4 лист.pdf
5 лист.pdf
РПЗ.docx
РПЗ.pdf
Задание и план.docx
Картинка-подпись
Vladelo

Комментарии

Нет комментариев
Стань первым, кто что-нибудь напишет!
Поделитесь ссылкой:
Цена: 900 руб.
Расширенная гарантия +3 недели гарантии, +10% цены
Рейтинг автора
4,99 из 5
Поделитесь ссылкой:
Сопутствующие материалы
FREE
С.Г. Гнездилов, А.В.Масягин "Исследование двухканатного грейфера"
FREE
А.В. Масягин "Клещевые симметричные захваты"
-38%
«исследование усилий в канатах двухканатного грейфера»
Методы расчета НТТС. 1ДЗ
Домашняя работа на тему "Проектирование по курсу «Грузоподъёмные машины». Стационарный кран с верхней внешней опорой." Задание 24 Вариант 1
Домашнее задание (вариант №18.19)

Подобрали для Вас услуги

-26%
-20%
Вы можете использовать курсовую работу для примера, а также можете ссылаться на неё в своей работе. Авторство принадлежит автору работы, поэтому запрещено копировать текст из этой работы для любой публикации, в том числе в свою курсовую работу в учебном заведении, без правильно оформленной ссылки. Читайте как правильно публиковать ссылки в своей работе.
Свежие статьи
Популярно сейчас
Зачем заказывать выполнение своего задания, если оно уже было выполнено много много раз? Его можно просто купить или даже скачать бесплатно на СтудИзбе. Найдите нужный учебный материал у нас!
Ответы на популярные вопросы
Да! Наши авторы собирают и выкладывают те работы, которые сдаются в Вашем учебном заведении ежегодно и уже проверены преподавателями.
Да! У нас любой человек может выложить любую учебную работу и зарабатывать на её продажах! Но каждый учебный материал публикуется только после тщательной проверки администрацией.
Вернём деньги! А если быть более точными, то автору даётся немного времени на исправление, а если не исправит или выйдет время, то вернём деньги в полном объёме!
Да! На равне с готовыми студенческими работами у нас продаются услуги. Цены на услуги видны сразу, то есть Вам нужно только указать параметры и сразу можно оплачивать.
Отзывы студентов
Ставлю 10/10
Все нравится, очень удобный сайт, помогает в учебе. Кроме этого, можно заработать самому, выставляя готовые учебные материалы на продажу здесь. Рейтинги и отзывы на преподавателей очень помогают сориентироваться в начале нового семестра. Спасибо за такую функцию. Ставлю максимальную оценку.
Лучшая платформа для успешной сдачи сессии
Познакомился со СтудИзбой благодаря своему другу, очень нравится интерфейс, количество доступных файлов, цена, в общем, все прекрасно. Даже сам продаю какие-то свои работы.
Студизба ван лав ❤
Очень офигенный сайт для студентов. Много полезных учебных материалов. Пользуюсь студизбой с октября 2021 года. Серьёзных нареканий нет. Хотелось бы, что бы ввели подписочную модель и сделали материалы дешевле 300 рублей в рамках подписки бесплатными.
Отличный сайт
Лично меня всё устраивает - и покупка, и продажа; и цены, и возможность предпросмотра куска файла, и обилие бесплатных файлов (в подборках по авторам, читай, ВУЗам и факультетам). Есть определённые баги, но всё решаемо, да и администраторы реагируют в течение суток.
Маленький отзыв о большом помощнике!
Студизба спасает в те моменты, когда сроки горят, а работ накопилось достаточно. Довольно удобный сайт с простой навигацией и огромным количеством материалов.
Студ. Изба как крупнейший сборник работ для студентов
Тут дофига бывает всего полезного. Печально, что бывают предметы по которым даже одного бесплатного решения нет, но это скорее вопрос к студентам. В остальном всё здорово.
Спасательный островок
Если уже не успеваешь разобраться или застрял на каком-то задание поможет тебе быстро и недорого решить твою проблему.
Всё и так отлично
Всё очень удобно. Особенно круто, что есть система бонусов и можно выводить остатки денег. Очень много качественных бесплатных файлов.
Отзыв о системе "Студизба"
Отличная платформа для распространения работ, востребованных студентами. Хорошо налаженная и качественная работа сайта, огромная база заданий и аудитория.
Отличный помощник
Отличный сайт с кучей полезных файлов, позволяющий найти много методичек / учебников / отзывов о вузах и преподователях.
Отлично помогает студентам в любой момент для решения трудных и незамедлительных задач
Хотелось бы больше конкретной информации о преподавателях. А так в принципе хороший сайт, всегда им пользуюсь и ни разу не было желания прекратить. Хороший сайт для помощи студентам, удобный и приятный интерфейс. Из недостатков можно выделить только отсутствия небольшого количества файлов.
Спасибо за шикарный сайт
Великолепный сайт на котором студент за не большие деньги может найти помощь с дз, проектами курсовыми, лабораторными, а также узнать отзывы на преподавателей и бесплатно скачать пособия.
Популярные преподаватели
Добавляйте материалы
и зарабатывайте!
Продажи идут автоматически
6979
Авторов
на СтудИзбе
262
Средний доход
с одного платного файла
Обучение Подробнее
{user_main_secret_data}