Задача 10: Корпус вариант 14
Описание
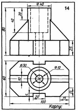
Корпус. Вариант 14 ЧЕРТЕЖ
Графическая работа 10.
По двум видам построить третий. Выполнить разрезы. Проставить размеры. Изобразить деталь в изометрии с вырезом четверти.
Чертеж выполнен на формате А3 + 3d модель + pdf (все на скриншотах показано и присутствует в архиве) выполнены в КОМПАС 3D.
Также открывать и просматривать, печатать чертежи и 3D-модели, выполненные в КОМПАСЕ можно просмоторщиком КОМПАС-3D Viewer.
Графическая работа 10. По двум видам построить третий. Выполнить разрезы. Проставить размеры. Изобразить деталь в изометрии с вырезом четверти.
Чертеж выполнен на формате А3 + 3d модель + pdf (все на скриншотах показано и присутствует в архиве) выполнены в КОМПАС 3D. Также открывать и просматривать, печатать чертежи и 3D-модели, выполненные в КОМПАСЕ можно просмоторщиком КОМПАС-3D Viewer.
Характеристики решённой задачи
Предмет
Семестр
Номер задания
Вариант
Программы
Теги
Просмотров
1
Качество
Идеальное компьютерное
Размер
85,78 Kb
Список файлов
Вариант 14 Корпус
KOMPAS - Корпус _ Вариант 14.pdf
Корпус _ Вариант 14.cdw
Корпус.m3d
Комментарии
Нет комментариев
Стань первым, кто что-нибудь напишет!
coolns



















