Задача 3.1: Кронштейн вариант 12
Описание
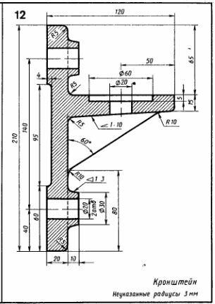
Кронштейн. Вариант 12 ЧЕРТЕЖ
Графическая работа 3 часть 1
Вычертить по заданным размерам контуры кронштейна. Линии построения уклона и конусности сохранить.
Чертеж выполнен на формате А3 + pdf (все на скриншотах показано и присутствует в архиве) выполнены в КОМПАС 3D.
Также открывать и просматривать, печатать чертежи и 3D-модели, выполненные в КОМПАСЕ можно просмоторщиком КОМПАС-3D Viewer.
Графическая работа 3 часть 1 Вычертить по заданным размерам контуры кронштейна. Линии построения уклона и конусности сохранить.
Чертеж выполнен на формате А3 + pdf (все на скриншотах показано и присутствует в архиве) выполнены в КОМПАС 3D. Также открывать и просматривать, печатать чертежи и 3D-модели, выполненные в КОМПАСЕ можно просмоторщиком КОМПАС-3D Viewer.
Характеристики решённой задачи
Предмет
Семестр
Номер задания
Вариант
Программы
Теги
Просмотров
1
Качество
Идеальное компьютерное
Размер
72,46 Kb
Список файлов
Вариант 12 Кронштейн
Кронштейн. Вариант 12.cdw
Кронштейн. Вариант 12.pdf
Комментарии
Нет комментариев
Стань первым, кто что-нибудь напишет!
coolns





















