ДЗ 3: Сборка - Пневмоаппарат
Описание
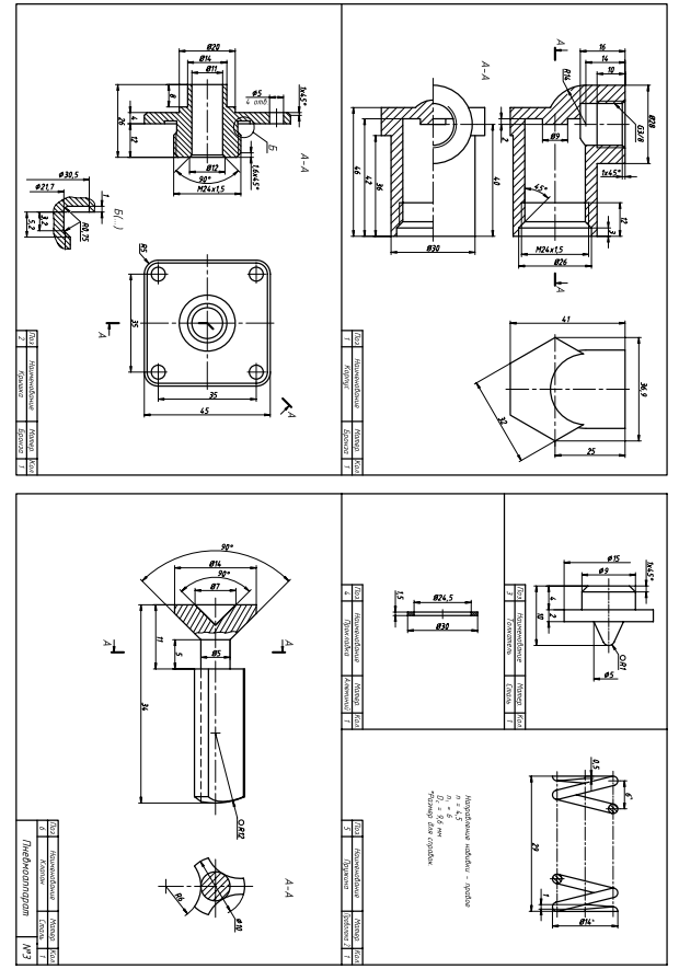
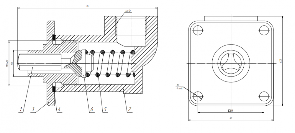
- Модели и чертежи к ДЗ по третьему модулю инженерной графики 4 семестра. Так же включены спецификация, компоновка и сборочный чертеж Пневмоаппарата.
-
![]()
-
![]()
-
![]()
Характеристики домашнего задания
Предмет
Учебное заведение
Семестр
Номер задания
Просмотров
1
Качество
Идеальное компьютерное
Размер
2,28 Mb
Преподаватели
Список файлов
3
Компоновка_3.pdf
Пневмоаппарат Спецификация.pdf
Пневмоаппарат Спецификация.spw
Пневмоаппарат Сборочный чертеж.cdw
Пневмоаппарат Сборочный чертеж.pdf
Пружина.m3d
корпус.m3d
крышка.m3d
пневмоаппарат.m3d
прокладка.m3d
Сборка_пневмоаппарат.a3d
толкатель.m3d
3.jpg
Удачи в сдаче заданий и зачётов! Успехов!
Комментарии
Нет комментариев
Стань первым, кто что-нибудь напишет!



МГТУ им. Н.Э.Баумана
Author1


















