ДЗ: Пневмоаппарат вариант 3
Описание
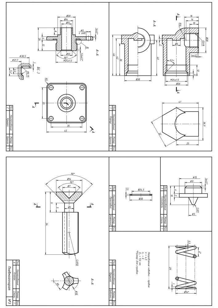
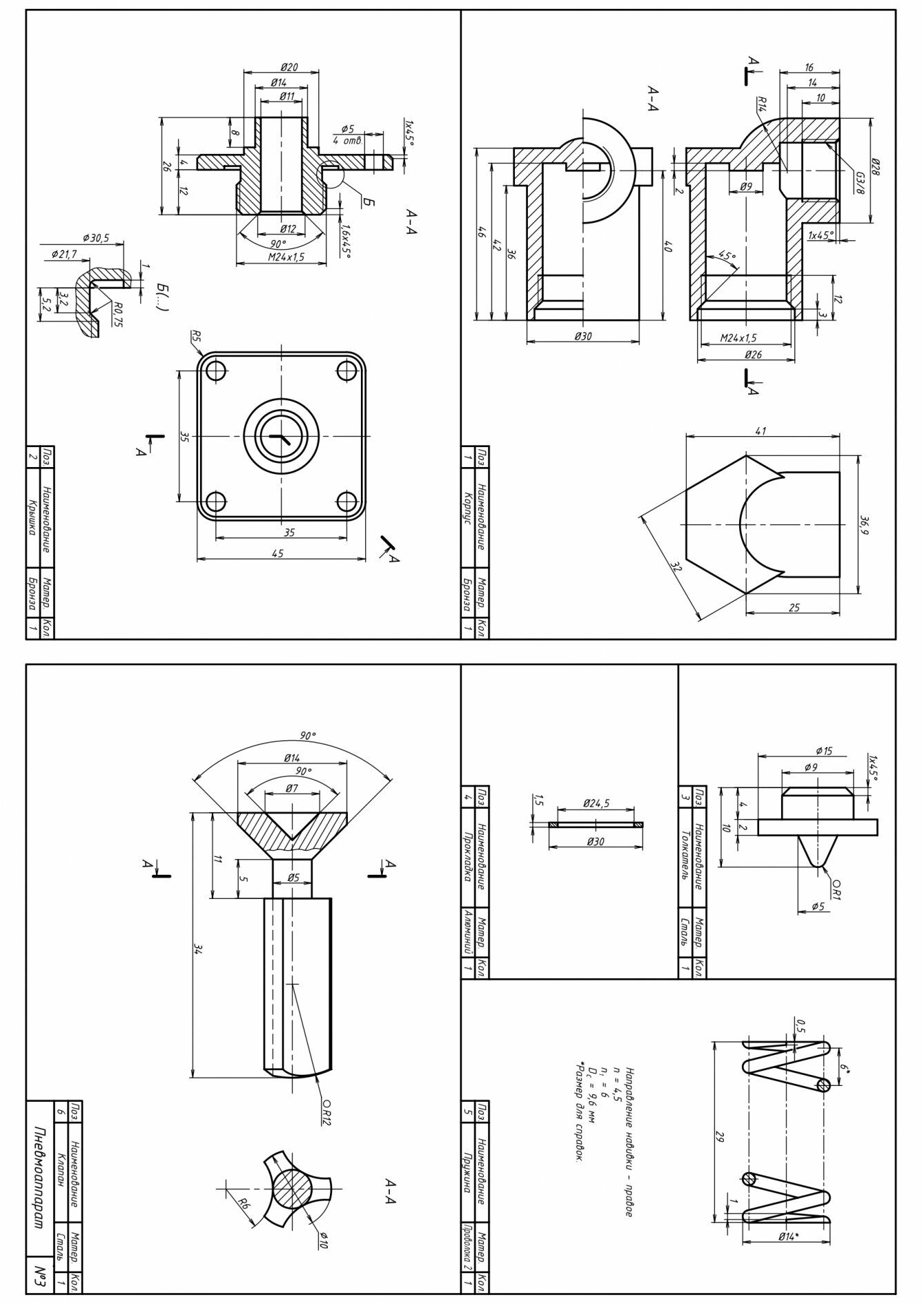
Домашнее задание по инженерной графике : создание детали по чертежу и последующая сборка. В файле присутствуют все файлы, кроме спецификации, но, думаю, это самая простая часть. ![]()
Характеристики домашнего задания
Предмет
Учебное заведение
Семестр
Вариант
Просмотров
8
Размер
1,67 Mb
Список файлов
инжа3сем3дз
Корпус-БИГЕ.m3d
Пружинаc_jhrb.m3d
корпуссборки.m3d
крышкасборки.m3d
прокладка.m3d
Сборка3.a3d
Сборка3.cdw
Сборочка3.cdw
валдлясборки.m3d
толкатель.m3d
Комментарии
Нет комментариев
Стань первым, кто что-нибудь напишет!
МГТУ им. Н.Э.Баумана
















