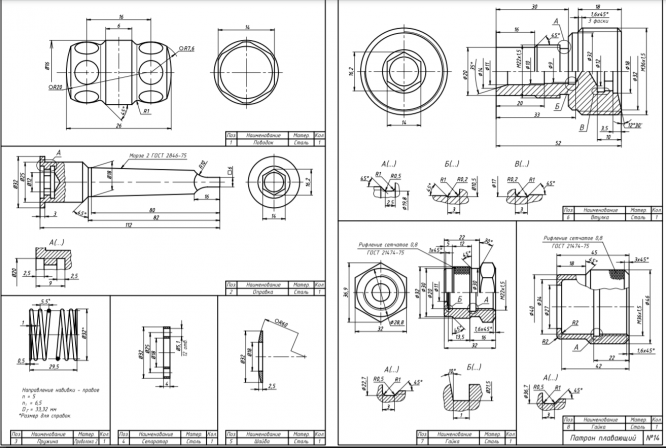
Для студентов МГТУ им. Н.Э.Баумана по предмету Инженерная графикаПатрон плавающий (14 вариант 2020)Патрон плавающий (14 вариант 2020)
4,935437
2020-12-122020-12-12СтудИзба
ДЗ: Патрон плавающий (14 вариант 2020) вариант 14
Описание
Характеристики домашнего задания
Предмет
Учебное заведение
Семестр
Вариант
Просмотров
72
Размер
5,02 Mb
Список файлов
Сборочный чертеж
Компоненты
Втулка.idw
Втулка.ipt
Гайка 7.idw
Гайка 7.ipt
Гайка.idw
Гайка.ipt
Оправка.idw
Оправка.ipt
Поводок.idw
Поводок.ipt
Пружина.idw
Пружина.ipt
Сепаратор.idw
Сепаратор.ipt
Шайба.idw
Шайба.ipt
Сборка.iam
Сборочный чертеж.idw
Спецификация.xls
Комментарии
Нет комментариев
Стань первым, кто что-нибудь напишет!
МГТУ им. Н.Э.Баумана


















