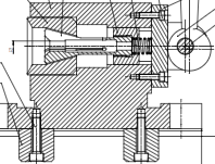
Для студентов МГТУ им. Н.Э.Баумана по предмету Инженерная графикаСборка 2 - Приспособление для фрезерованияСборка 2 - Приспособление для фрезерования
4,46550
2019-11-242019-11-24СтудИзба
ДЗ: Сборка 2 - Приспособление для фрезерования вариант 2
Описание

Характеристики домашнего задания
Предмет
Учебное заведение
Семестр
Вариант
Просмотров
233
Размер
5,27 Mb
Список файлов
Приспособление для фрезерования
OldVersions
Pz1.0002.ipt
Pz2.0002.ipt
Деталь2.0001.ipt
Пружина.0004.iam
Сборка-1.0006.dwg
Сборка.0007.iam
PZ7.ipt
Pz1.ipt
Pz2.ipt
Pz3.ipt
Pz4.ipt
Pz6.ipt
Pz8.ipt
~Сборка-1.dwg.4352.tmp
Деталь2.ipt
Пружина.iam
Сборка-1.dwg
Сборка-1.pdf
Сборка.iam
МГТУ им. Н.Э.Баумана


















