Для студентов МГТУ им. Н.Э.Баумана по предмету Инженерная графикаВентильВентиль
5,005251
2015-10-242024-10-02СтудИзба
ДЗ А: Вентиль вариант 67
-50%
Описание
3D-модели
- 1 - Гайка
- 2 - Шайба
- 3 - Шнур асбестовый
- 4 - Клапан
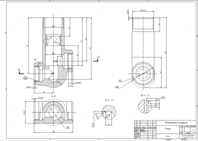
- 5 - Корпус
- 6 - Шпиндель
- 7 - Маховик
- 8 - Кольцо сальника
- 9 - Втулка сальника
- 10 - Гайка накидная
- Сборка
Эскизы
- 4 - Клапан
- 5 - Корпус
- 6 - Шпиндель
- 7 - Маховик
- 8 - Кольцо сальника
- 9 - Втулка сальника
- Сборка
Образец ![]()
Чертежи
Характеристики домашнего задания
Предмет
Учебное заведение
Семестр
Номер задания
Вариант
Программы
Просмотров
2844
Качество
Файлы различного качества
Размер
18,63 Mb
Список файлов
Inventor
1. Гайка.ipt
2. Шайба.ipt
3. Шнур асбестовый.ipt
4. Клапан.ipt
5. Корпус.ipt
6. Шпиндель.ipt
7. Маховик.ipt
8. Кольцо сальника.ipt
9. Втулка сальника.ipt
10. Гайка накидная.ipt
Корпус.idw
Корпус.pdf
Сборка.iam
Сборка.pdf
Эскизы
4 - Клапан.jpg
5 - Корпус.jpg
6 - Шпиндель.jpg
7 - Маховик.jpg
8 - Кольцо сальника.jpg
9 - Втулка сальника.jpg
Сборка.jpg

Вам все понравилось? Получите кэшбэк - 40 рублей на Ваш счёт при покупке. Поставьте оценку и напишите положительный комментарий к купленному файлу. После Вы получите деньги на ваш счет.
Комментарии

Отзыв
Супер, зачли без проблем