Для студентов МТИ по предмету Инженерная графикаИнженерная графика (Темы 1-10)Инженерная графика (Темы 1-10)
5,005272
2025-07-112025-07-11СтудИзба
Инженерная графика МТИ (Темы 1-10) Ответы на тест
Ответы к зачёту Итоговый тест: Инженерная графика (Темы 1-10)
Хит
-28%
Описание
Представлены ответы на большинство вопросов по предмету "Инженерная графика.ои(dor_БАК)" для студентов МТИ.
Результат сдачи зависит от попавшихся вопросов.
Мой итоговый набранный балл после прохождения трех попыток 93 из 100.
ВНИМАНИЕ! Покупайте работу, только убедившись, что ваши вопросы совпадают с представленными ниже. Для этого рекомендую сначала запустить тест и сверить хотя бы несколько вопросов.
УЧЕБНЫЕ МАТЕРИАЛЫ
СПИСОК ВОПРОСОВ:
А-А (см. рисунок ниже) является …
Буквой «Г» обозначается … схема
В данной детали (см. рисунок ниже) … отверстия d10
В сечении конуса от плоскости Q (см. рисунок ниже) получится …
Внутреннюю резьбу имеет …
Восстановите правильную последовательность вычерчивания эскиза (см. рисунки ниже):
1
2
3
4
Высота детали на рисунке (см. ниже) равна …
Высота прописных (заглавных) букв у чертежного шрифта №10 равна … мм
Горизонтальная плоскость уровня параллельна …
Графический документ, содержащий контурное (упрощенное) изображение изделия с габаритными, установочными и присоединительными размерами, — это … чертеж
Детали позиций 1 и 4 (см. рисунок ниже) скрепляются с помощью …
Деталь машины, вращающаяся в опорах, предназначенная для передачи крутящих моментов от одной детали к другой, — это …
Деталь, изображенная на рисунке (см. ниже), имеет … наружную резьбу
Если вращать прямую L вокруг оси i (см. рисунок ниже), то получится …
Если вращать прямую L вокруг оси i (см. рисунок ниже), то получится …
Если требуется выяснить конструкцию в отдельном, ограниченном месте детали, применяют … разрез
Зона технических требований находится …
Изображаются на чертеже не рассеченными …
Изображение фигуры, полученное при мысленном рассечении предмета одной или несколькими плоскостями, называется …
Изображенный (см. рисунок ниже) лист называется …
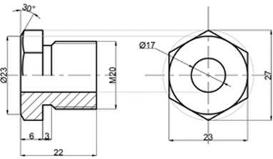
Какой размер «под ключ» У гайки (см. рисунок ниже) размер «под ключ» равен …
Кинематические схемы обозначаются буквой …
Конструкторские документы, на которых составные части изделия, их взаимное расположение и связи между ними показаны в виде условных графических изображений — это …
Левая резьба имеет обозначение …
Линии пересечения двух призматических поверхностей – это …
Линия пересечения двух соосных цилиндров одинакового диаметра образует …
Масштабом увеличения является …
Метрическая резьба правильно изображена на чертеже (см. рисунок ниже) под номером …
Метчик — это инструмент, который используется для …
Многомерный раздвижной инструмент с нониусом для измерения наружных и внутренних размеров, диаметров, глубин и высот деталей – это …
На изображении (см. ниже) точка под номером … является очерковой
На изображении (см. ниже) у осей прямоугольной изометрии … градусов
На поверхности конуса лежат (см. рисунок ниже) …
На поверхности цилиндра лежит точка (см. рисунок ниже) …
На поверхности шестигранной пирамиды лежит точка (см. рисунок ниже) …
На рисунке (см. ниже) буквой d обозначен …
На рисунке (см. ниже) вид цилиндра слева изображен под номером …
На рисунке (см. ниже) показано решение задачи на пересечение двух поверхностей методом …
На рисунке (см. ниже) показаны …
На рисунке изображён
На сборочных чертежах видимые составные части изделия и их элементы, расположенные за сеткой, а также частично закрытые расположенными впереди составными частями …
На сборочных чертежах изделия из прозрачного материала изображают как …
На чертеже (см. ниже) гайка имеет размер внутренней ресьбы, равный …
На чертеже (см. ниже) изображено соединение …
На чертеже детали число размеров должно быть …
Наклон чертежного шрифта должен быть …
Наносить размерные линии предпочтительно … изображения
Наружная резьба выполнена верно на чертеже под номером (см. рисунок ниже) …
Натуральную величину отреза АВ (см. рисунок ниже) определяет плоскость …
Неверно, что ГОСТ (межгосударственный стандарт) допускает масштаб …
Неверно, что сборочном чертеже указывают …
Неверно, что стандартным видом изделия является …
Неверно, что существует метод …
Неверно, что точка (см. рисунок ниже) … принадлежит хотя бы одной из плоскостей проекций
Неверно, что фигура под номером … является поверхностью вращения (см. рисунок ниже)
Неразъёмное соединение, выполненное сваркой, – это … соединение
Неразъемные соединения деталей …
Номера позиций на сборочном чертеже проставляют …
Определите верную последовательность выполнения эскиза детали:
1 определяется форма детали и ее основных элементов, на которые можно мысленно расчленить деталь
2 выбирается главный вид детали и устанавливается необходимое и достаточное количество изображений: видов, разрезов, сечений
3 устанавливается формат листа для эскиза по ГОСТУ (Межгосударственный стандарт) 2.301 — 68, с учетом «требований к характеристике детали на эскизе»
4 производится компоновка изображений на поле эскиза, определяются границы изображений, проводятся осевые и центровые линии
Основная надпись чертежа имеет размеры …
Ось ОХ — это пересечение плоскостей …
Ось ОY — это пересечение плоскостей …
Ось ОZ — это пересечение плоскостей …
Отношение размеров изображения к натуральным размерам предмета (детали) – это …
Отрезок линии на схеме, показывающий связь между функциональными частями изделия, — это линия …
Параметр, который характеризует соединение изделий и определяется величиной получающихся при соединении зазоров или натягов, — это …
Плавный переход от одной линии к другой, называется …
По спецификации можно определить …
Поверхность, образованную при винтовом движении плоского контура по цилиндрической или конической поверхности, называют …
Позиционное обозначение элемента на схеме наносят …
Построение схемы выполняют …
При выполнении технического проекта ставится литера…
При выполнении учебного проекта ставится литера …
При нанесении размеров ближайшую к контуру детали размерную линию проводят на расстоянии не менее …
При обозначении разреза надпись над изображением записывают как …
При сечении плоскостью B`` многогранника (см. рисунок ниже) получится …
Принципиальные схемы обозначаются цифрой …
Проставьте изображения (см. ниже) в следующем порядке: разрез, сечение, местный разрез, наложенное сечение:
1
2
3
4
Проставьте изображения (см. ниже) в следующем порядке: скрещивающиеся прямые, прямая не лежит в плоскости, прямая пересекает плоскость, прямая параллельная плоскости:
1
2
3
4
Проставьте название фигур и их изображение (см. ниже) в следующем порядке: цилиндрическая поверхность, призматическая поверхность, торовая поверхность:
1
2
3
Проставьте последовательно определения в следующем порядке: прямая пересекает конус, прямая пересекает шар, прямая не пересекает конус, прямая не пересекает шар:
1
2
3
4
Проставьте последовательность определения с изображением в следующем порядке: схема, эскиз, условное обозначение, чертеж (см. рисунок ниже):
1
2
3
4
Проставьте правильное соотношение название видов и их изображения (см. ниже):
A. Вид сверху
B. Вид снизу
C. Вид спереди
D. Вид слева
E. Вид справа
F. Вид сзади
G.
H.
I.
J.
K.
L.
Проставьте правильную последовательность (слева-направо) наименований граф в таблице перечней элементов (см. рисунок ниже):
1 позиция обозначения
2 наименование
3 количество
4 примечание
Проставьте правильную последовательность вычерчивания шпилечного соединения (см. рисунок ниже):
1 3
2 2
3 4
4 5
5 1
Проставьте типы сварных швов свариваемых деталей в следующем порядке: стыковое соединение, тавровое соединение, соединение внахлест, угловое соединение (см. рисунок ниже):
1
2
3
4
Процесс выполнения чертежей деталей по сборочному чертежу – это …
Прямая общего положения изображается на плоскостях проекций …
Прямая, параллельная горизонтальной плоскости проекций, называется …
Прямая, параллельная профильной плоскости проекций, называется …
Прямая, параллельная фронтальной плоскости проекций, называется …
Радиус основания конуса на рисунке (см. ниже) равен …
Размер проставляется на расстоянии … от чертежа предмета (детали)
Размеры внешней рамки составляют …
Размеры, необходимые для правильного монтажа составных частей изделия, например, расстояние между осями валов, — это … размеры
Разрез А-А (см. рисунок ниже) является …
Разрез А-А (см. рисунок ниже) является …
Расположение аксонометрических осей, изображенных на рисунке (см. ниже), называется …
Расположение аксонометрических осей, изображенных на рисунке (см. ниже), называется …
Расположите масштабы в порядке увеличения:
1 1:15
2 1:1
3 2:1
4 15:1
Расположите наименования позиций в следующем порядке (см. рисунок ниже): позиция 3, позиция 1, позиция 2, позиция 6:
1 чертилка
2 основание
3 стержень
4 винт зажимной
Расположите обозначения частей резьбы в следующем порядке: сбег, фаска, недовод, недорез (см. рисунок ниже):
1 #3
2 #1
3 #4
4 #2
Расположите фигуры в следующем порядке: конус, шар, тор, цилиндр (см. рисунки ниже):
1
2
3
4
Расположите части болтового соединения в следующей последовательности: болт, гайка, шайба, отверстие (см. рисунки ниже):
1
2
3
4
Расставьте размеры в следующей последовательности: количество сквозных отверстий, диаметр сквозного отверстия, высота детали, ширина детали (см. рисунок ниже):
1 1
2 20
3 70
4 50
Расставьте точки на поверхности конуса в следующем порядке: точка лежит на основании конуса, точка лежит на вершине конуса, точка принадлежит очерковой конуса, точка лежит на поверхности конуса (см. рисунок ниже):
1 точка 3
2 точка 1
3 точка 2
4 точка 4
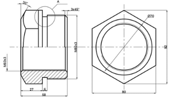
Резьба, изображенная на рисунке (см. ниже), называется …
Резьба, изображенная на рисунке (см. ниже), называется …
Сведения о деталях, входящих в состав изделия выносят в спецификацию на …
Сечение А-А правильно показано на чертеже под номером (см. рисунок ниже) …
Сечение от секущей плоскости определяется в натуральную величину на изображении под номером … (см. рисунок ниже)
Символ обозначения используется, чтобы показать …
Совокупность элементов, представляющая единую конструкцию, — это …
Соосные со сферой тела вращения пересекаются по …
Сопоставьте вид размера и его определение:
A. Габаритные размеры
B. Монтажные размеры
C. Эксплуатационные размеры
D. Прочие размеры
E. (длина, ширина, высота) указывают пространство, занимаемое изделием
F. устанавливают взаимосвязь и взаимное расположение деталей в сборочной единице, например: расстояние между осями валов и т.п.
G. характеризуют работу сборочной единицы. К ним относятся диаметры проходных отверстий вентилей и задвижек, максимальные углы поворота рукояток, расстояние между крайними положениями подвижных деталей, максимальный ход поршня и т.д.
H. для инструментов, употребляемых при сборке (размеры «под ключ» для гаек и болтов, квадратов для посадки маховиков и т.п.)
Сопоставьте изображение (см. ниже) с названием:
A. Горизонтально проецирующая плосоксть
B. Фронтально проецирующая плоскость
C. Общего положения
D. Профильно проецирующая плоскость
E.
F.
G.
H.
Сопоставьте изображение (см. ниже) с соответствующим ему определением:
A. Сечение плоскостью конуса
B. Сечение плоскостью пирамиды
C. Сечение плоскостью шара
D. Сечение плоскостью цилиндра
E.
F.
G.
H.
Сопоставьте изображения (см. ниже) и их определения:
A. Соединение муфтой
B. Соединение угольником
C. Соединение крестом
D. Соединение тройником
E.
F.
G.
H.
Сопоставьте код и вид схемы:
A. «Э»
B. «Г»
C. «В»
D. «Л»
E. схема электрическая
F. схема гидравлическая
G. схема вакуумная
H. схема оптическая
Сопоставьте название и изображение фигур (см. ниже):
A. Конус
B. Пирамида
C. Гиперболоид
D. Цилиндр
E.
F.
G.
H.
Сопоставьте названия видов и их изображения (см. ниже):
A. Вид спереди
B. Вид сверху
C. Вид сбоку
D. Аксонометрия
E.
F.
G.
H.
Сопоставьте названия измерительных приборов с их изображением (см. ниже):
A. Штангенциркуль
B. Микрометр
C. Радиусомеры
D. Штангенглубомер
E.
F.
G.
H.
Сопоставьте названия крепежных соединений с изображениями (см. ниже):
A. Винтовое соединение
B. Болтовое соединение
C. Зубчатое соединение
D. Шпоночное соединение
E. Шпилечное соединение
F.
G.
H.
I.
J.
Сопоставьте определения и их изображения (см. ниже):
A.
B.
C.
D.
E. наружная проточка
F. сбег резьбы
G. внутренняя проточка
H. фаска
Сопоставьте определения с изображением (см. ниже):
A. Прямые скрещивающиеся
B. Прямые пересекающиеся
C. Точка лежит на прямой
D. Точка не лежит на прямой
E.
F.
G.
H.
Сопоставьте плоскости конуса и то, что получается в результате их сечения (см. рисунок ниже):
A.
B.
C.
D.
E.
F. окружность
G. эллипс
H. парабола
I. прямые линии
J. гипербола
Сопоставьте положение плоскостей в следующем порядке: общего положения, горизонтальная плоскость уровня, фронтальная плоскость уровня, профильная плоскость уровня (см. рисунки ниже):
1
2
3
4
Сопоставьте понятия и их изображения (см. ниже):
A. Ступенчатый разрез
B. Ломанный разрез
C. Горизонтальный разрез
D. Наклонный разрез
E.
F.
G.
H.
Сопоставьте понятия и их определения:
A. Комплекты
B. Детали
C. Комплексы
D. Сборочные единицы
E. набор двух и более изделий, имеющих общее эксплуатационное назначение вспомогательного характера
F. изделие, изготовленное из однородного по наименованию и марке материала без применения сборочных операций (например, вал, литой корпус, зубчатое колесо и др.)
G. два и более специфицированных изделия, не соединенных на предприятии-изготовителе сборочными операциями, но предназначенных для выполнения взаимосвязанных эксплуатационных функций
H. изделие, составные части которого подлежат соединению между собой на предприятии-изготовителе сборочными операциями
Сопоставьте понятия и их определения:
A. Сборочный чертеж
B. Сборочной единицей
C. Комплекс
D. Комплект
E. два и более изделия, несоединенных на предприятии-изготовителе сборочными операциями и представляющих набор изделий, имеющих общее эксплуатационное назначение вспомогательного характера
F. называется изделие, составные части которого подлежат соединению между собой на предприятии-изготовителе сборочными операциями
G. документ, содержащий изображения изделия и другие данные, необходимые для его сборки (изготовления) и контроля
H. два и более специфицированных изделия, не соединенных на предприятии-изготовителе сборочными операциям, но предназначенных для выполнения взаимосвязанных эксплуатационных функций
Сопоставьте понятия и их определения:
A. Соединение крестом
B. Соединение угольником
C. Соединение муфтой
D. Соединение тройником
E. представляет соединение труб крест-накрест с помощью ответных фланцев
F. используется для состыковки труб одинакового диаметра
G. служит для установки манометра на муфтовом клапане
H. отвод потока рабочей среды от основного трубопровода осуществляется только под углом в 90 градусов
Сопоставьте понятия и их определения:
A. Шайба
B. Винт
C. Болт
D. Гайка
E. может подкладываться под гайку или головку другого крепёжного изделия, под шплинт и т.п. для создания большей площади опорной поверхности, предотвращения самоотвинчивания крепёжной детали
F. имеет вид стержня с наружной резьбой на одном конце и конструктивным элементом для передачи крутящего момента на другом
G. крепёжное изделие в форме стержня с наружной резьбой на одном конце, с головкой на другом
H. крепёжное изделие с резьбовым отверстием, образующее разборное соединение с помощью винта, болта или шпильки
Сопоставьте размеры с оформлением листа А3:
A. 297х420мм
B. 5мм
C. 20мм
D. 185х55мм
E. размер листа
F. поля справа, снизу, сверху
G. поле слева
H. основная надпись
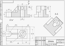
Сопоставьте составные части изделия изображенные на картинке (см. ниже) с их названиями:
A.
B.
C.
D.
E. цилиндр
F. стойка
G. призма
H. отверстия
Сопоставьте условное обозначение соединений деталей:
A. Винтовое
B. Болтовое
C. Шпилечное
D. Винтовое с потайной головкой
E.
F.
G.
H.
Сопоставьте чертеж и метод, который использовался для решения задачи:
A.
B.
C.
D. теорема монжа
E. метод секущих сфер
F. секущие плоскости
Сплав, образованный расплавленным основным и наплавленным металлами или только переплавленным основным металлом, — это … шва
Технический рисунок(эскиз) – это …
Тип линии, изображенный на рисунке (см. ниже), служит для обозначения …
Тип линии, изображенный на рисунке (см. ниже), служит для обозначения …
Тонкие стенки детали, служащие для усиления изделия, — это …
Точка А с координатами (10; 10; 20) лежит в … октане
Точки пересечения отрезка АВ с поверхностью определены с помощью вспомогательной горизонтальной плоскости уровня определены на чертеже (см. ниже) под номером …
У данной (см. рисунок ниже) пирамиды … граней
У данной призмы (см. рисунок ниже) … ребра
Узел, образованный соединительными деталями (заклепками, винтами и др.) и прилегающими частями соединяемых деталей (фланцами), форма которых подчинена задаче соединения – это …
Укажите правильный порядок заполнение полей в основной надписи чертежа: разработал, проверил, наименование предприятия, масштаб чертежа (см. рисунок ниже):
1 поле 1
2 поле 4
3 поле 2
4 поле 3
Указанные стрелками (см. рисунок ниже) части шестигранной призмы называются боковые …
Условное обозначение для записи: «болт второго исполнения, с метрической резьбой, номинальным диаметром – 16мм, с крупным шагом, с длиной 75 мм» — это …
Установите соответствие между изображением и определением резьбы:
A.
B.
C.
D.
E.
F. упорная
G. трубная цилиндрическая
H. трапецеидальная
I. метрическая
J. прямоугольная
Установите соответствие между понятием и его изображением (см. ниже):
A. Горизонтально проецирующая прямая
B. Фронтально проецирующая прямая
C. Прямая общего положения
D. Фронталь
E. Горизонталь
F.
G.
H.
I.
J.
Установите соответствие размеров листа с форматом:
A. А1
B. А2
C. А3
D. А4
E. А5
F. А6
G. 594×841 мм
H. 420×594 мм
I. 297×420 мм
J. 210×297 мм
K. 210х148 мм
L. 148х105 мм
Участок с неполноценным профилем резьбы, называется … резьбы
Формат листа А4 имеет размер …
Шплинт нужен для …
Результат сдачи зависит от попавшихся вопросов.
Мой итоговый набранный балл после прохождения трех попыток 93 из 100.
ВНИМАНИЕ! Покупайте работу, только убедившись, что ваши вопросы совпадают с представленными ниже. Для этого рекомендую сначала запустить тест и сверить хотя бы несколько вопросов.
УЧЕБНЫЕ МАТЕРИАЛЫ
- Введение
- Тема 1. Основные сведения по оформлению чертежей. Правила вычерчивания контуров технических деталей
- Тема 2. Основы начертательной геометрии
- Тема 3. Проецирование геометрических тел. Аксонометрические проекции. Сечение геометрических тел плоскостями
- Тема 4. Взаимное пересечение поверхностей тел
- Тема 5. Правила разработки и оформления конструкторской и технологической документации
- Тема 6. Изображения, виды, разрезы, сечения
- Тема 7. Винтовые поверхности и изделия с резьбой
- Тема 8. Эскизы деталей и рабочие чертежи
- Тема 9. Разъемные и неразъемные соединения. Общие сведения об изделиях и составление сборочных чертежей.
- Тема 10. Особенности чтения и порядок деталирования чертежей. Выполнение схемы электрической принципиальной
- Заключение
СПИСОК ВОПРОСОВ:
А-А (см. рисунок ниже) является …

- наклонным сечением
- горизонтальным разрезом
- фронтальным разрезом
- профильным сечением
Буквой «Г» обозначается … схема
- гидравлическая
- кинематическая
- газовая
- электрическая
В данной детали (см. рисунок ниже) … отверстия d10

- 2
- 3
- 4
В сечении конуса от плоскости Q (см. рисунок ниже) получится …

- парабола
- эллипс
- окружность
- гипербола
Внутреннюю резьбу имеет …
- шпилька
- гайка
- винт
- болт
Восстановите правильную последовательность вычерчивания эскиза (см. рисунки ниже):
1




Высота детали на рисунке (см. ниже) равна …

Высота прописных (заглавных) букв у чертежного шрифта №10 равна … мм
Горизонтальная плоскость уровня параллельна …
- горизонтальной плоскости проекций
- фронтальной плоскости проекций
- профильной плоскости проекций
- двум плоскостям сразу
Графический документ, содержащий контурное (упрощенное) изображение изделия с габаритными, установочными и присоединительными размерами, — это … чертеж
Детали позиций 1 и 4 (см. рисунок ниже) скрепляются с помощью …

- болтового соединения
- шпилечного соединения
- сварки
- склейки
Деталь машины, вращающаяся в опорах, предназначенная для передачи крутящих моментов от одной детали к другой, — это …
Деталь, изображенная на рисунке (см. ниже), имеет … наружную резьбу

- метрическую
- упорную
- дюймовую
- трубную
Если вращать прямую L вокруг оси i (см. рисунок ниже), то получится …

- конус
- шар
- тор
- цилиндр
Если вращать прямую L вокруг оси i (см. рисунок ниже), то получится …

- конус
- шар
- тор
- цилиндр
Если требуется выяснить конструкцию в отдельном, ограниченном месте детали, применяют … разрез
- местный
- дополнительный
- фрагментарный
- частичный
Зона технических требований находится …
- над основной подписью
- в основной надписи
- в верхнем правом углу формата
- в верхнем левом углу формата
Изображаются на чертеже не рассеченными …
- любые детали, находящиеся за секущей плоскостью
- любые детали, находящиеся перед секущей плоскостью
- валы, шпонки, болты, шпильки, все не пустотелые тела, когда их секущая плоскость проходит вдоль их осевой линии
- резьбы, отверстия, рёбра жесткости и все прилегающие составные части изготавливаемой детали
Изображение фигуры, полученное при мысленном рассечении предмета одной или несколькими плоскостями, называется …
- разрезанием
- местным видом
- сечением
- главным видом
Изображенный (см. рисунок ниже) лист называется …

- спецификацией
- чертежом
- титульным листом
- экспликацией
Какой размер «под ключ» У гайки (см. рисунок ниже) размер «под ключ» равен …

Кинематические схемы обозначаются буквой …
- К
- Э
- С
- Л
Конструкторские документы, на которых составные части изделия, их взаимное расположение и связи между ними показаны в виде условных графических изображений — это …
- чертежи
- схемы
- технические рисунки
- эскизы
Левая резьба имеет обозначение …
- левая
- LH
- HL
Линии пересечения двух призматических поверхностей – это …
- прямые ломанные линии
- окружности
- кривые линии
- параболы и гиперболы
Линия пересечения двух соосных цилиндров одинакового диаметра образует …
- прямые линии
- окружность
- две параболы
- два эллипса
Масштабом увеличения является …
- 2:1
- 1:100
- 1:3
- 1:1
Метрическая резьба правильно изображена на чертеже (см. рисунок ниже) под номером …

- 1
- 2
- 3
- 4
Метчик — это инструмент, который используется для …
- нарезания конусной резьбы
- нарезания внутренней резьбы
- создания отверстий
- создания фасок
Многомерный раздвижной инструмент с нониусом для измерения наружных и внутренних размеров, диаметров, глубин и высот деталей – это …
На изображении (см. ниже) точка под номером … является очерковой

На изображении (см. ниже) у осей прямоугольной изометрии … градусов

На поверхности конуса лежат (см. рисунок ниже) …

- точки А, В
- точки B, С
- точки C, А
- все точки
На поверхности цилиндра лежит точка (см. рисунок ниже) …

- А
- B
- C
На поверхности шестигранной пирамиды лежит точка (см. рисунок ниже) …

- А
- B
- C
На рисунке (см. ниже) буквой d обозначен …

- наружный диаметр стержня
- внутренний диаметр резьбы
- средний диаметр резьбы
- наружный диаметр резьбы
На рисунке (см. ниже) вид цилиндра слева изображен под номером …

- 1
- 2
- 3
- 4
На рисунке (см. ниже) показано решение задачи на пересечение двух поверхностей методом …

- секущих плоскостей
- концентрических сфер
- экцентрических сфер
- замены плоскостей
На рисунке (см. ниже) показаны …

- тор и усеченный конус
- цилиндр и гиперболоид
- два конуса
- конус и 1/4 шара
На рисунке изображён

- Шар и гиперболоид
- Шар и конус
- Шар и наклонный цилиндр
- Шар и тор
На сборочных чертежах видимые составные части изделия и их элементы, расположенные за сеткой, а также частично закрытые расположенными впереди составными частями …
- можно не показывать
- показывать частями
- нужно показывать
- нужно показывать местным разрезом
На сборочных чертежах изделия из прозрачного материала изображают как …
- непрозрачные
- прозрачные и указывают позицию
- прозрачные и указывают штриховкой
На чертеже (см. ниже) гайка имеет размер внутренней ресьбы, равный …

На чертеже (см. ниже) изображено соединение …

- штифтом
- шлицевое
- шплинтом
- муфтой
На чертеже детали число размеров должно быть …
- максимальное, позволяющее иметь размеры каждого элемента на всех изображениях чертежа
- минимальное, но достаточное для изготовления и контроля детали
- минимальное, три вида проекций позволяющие посмотреть изготовленную деталь со всех сторон
Наклон чертежного шрифта должен быть …
- 10⁰
- 25⁰
- 75⁰
- 60⁰
Наносить размерные линии предпочтительно … изображения
- вне контура
- внутри контура
- на самом контуре
Наружная резьба выполнена верно на чертеже под номером (см. рисунок ниже) …

- 1
- 2
- 3
- 4
Натуральную величину отреза АВ (см. рисунок ниже) определяет плоскость …

- П2
- П1
- П3
Неверно, что ГОСТ (межгосударственный стандарт) допускает масштаб …
- 1:1
- 1:3
- 2.5:1
- 1:1000
Неверно, что сборочном чертеже указывают …
- габаритные размеры
- размеры, необходимые для изготовления деталей
- справочные размеры
- присоединительные размеры
Неверно, что стандартным видом изделия является …
- комплект
- механизм
- сборочная единица
- деталь
Неверно, что существует метод …
- двух плоскостей-посредников
- секущих сфер
- секущих плосокстей
- экцентрических сфер
Неверно, что точка (см. рисунок ниже) … принадлежит хотя бы одной из плоскостей проекций

- 1
- 2
- 3
- 4
Неверно, что фигура под номером … является поверхностью вращения (см. рисунок ниже)

- 1
- 2
- 3
- 4
Неразъёмное соединение, выполненное сваркой, – это … соединение
Неразъемные соединения деталей …
- можно собрать и разобрать без повреждения деталей входящих в соединение
- нельзя разобрать без повреждения деталей входящих в соединения
- нельзя собрать без поломки деталей входящих в соединение
- нельзя разобрать без специального инструмента
Номера позиций на сборочном чертеже проставляют …
- по часовой стрелке
- против часовой стрелки
- по или против часовой стрелки
- в произвольном порядке
Определите верную последовательность выполнения эскиза детали:
1 определяется форма детали и ее основных элементов, на которые можно мысленно расчленить деталь
2 выбирается главный вид детали и устанавливается необходимое и достаточное количество изображений: видов, разрезов, сечений
3 устанавливается формат листа для эскиза по ГОСТУ (Межгосударственный стандарт) 2.301 — 68, с учетом «требований к характеристике детали на эскизе»
4 производится компоновка изображений на поле эскиза, определяются границы изображений, проводятся осевые и центровые линии
Основная надпись чертежа имеет размеры …
- 185х55 мм
- 40х50 мм
- 23х60 мм
- 10х15 мм
Ось ОХ — это пересечение плоскостей …
- П1 и П3
- П2 и П3
- П1 и П4
- П1 и П2
Ось ОY — это пересечение плоскостей …
- П1 и П3
- П2 и П3
- П1 и П4
- П1 и П2
Ось ОZ — это пересечение плоскостей …
- П1 и П3
- П2 и П3
- П1 и П4
- П1 и П2
Отношение размеров изображения к натуральным размерам предмета (детали) – это …
Отрезок линии на схеме, показывающий связь между функциональными частями изделия, — это линия …
Параметр, который характеризует соединение изделий и определяется величиной получающихся при соединении зазоров или натягов, — это …
Плавный переход от одной линии к другой, называется …
- уклоном
- конусностью
- выступом
- сопряжением
По спецификации можно определить …
- название детали и материал, из которого она изготовлена
- масштаб детали и её размеры
- материал изделия и порядок его изготовления
- порядок сборки изделия
Поверхность, образованную при винтовом движении плоского контура по цилиндрической или конической поверхности, называют …
- конусом
- элипсоидой
- сферой
- резьбой
Позиционное обозначение элемента на схеме наносят …
- рядом с элементом
- справа от элемента
- над графическим изображением элемента
- справа или над условным графическим изображением элемента
Построение схемы выполняют …
- без соблюдения масштаба
- с соблюдением масштаба
- в масштабе 1:1
- в масштабе 2:1
При выполнении технического проекта ставится литера…
- Т
- А
- Б
- У
При выполнении учебного проекта ставится литера …
- Т
- А
- Б
- У
При нанесении размеров ближайшую к контуру детали размерную линию проводят на расстоянии не менее …
- 10мм
- 7мм
- 5мм
- 8мм
При обозначении разреза надпись над изображением записывают как …
- а-а
- А-А
- разрез А-А
- разрез а-а
При сечении плоскостью B`` многогранника (см. рисунок ниже) получится …

- четырёхугольник
- пятиугольник
- шестиугольник
- треугольник
Принципиальные схемы обозначаются цифрой …
- 1
- 2
- 3
- 4
Проставьте изображения (см. ниже) в следующем порядке: разрез, сечение, местный разрез, наложенное сечение:
1




Проставьте изображения (см. ниже) в следующем порядке: скрещивающиеся прямые, прямая не лежит в плоскости, прямая пересекает плоскость, прямая параллельная плоскости:
1




Проставьте название фигур и их изображение (см. ниже) в следующем порядке: цилиндрическая поверхность, призматическая поверхность, торовая поверхность:
1



Проставьте последовательно определения в следующем порядке: прямая пересекает конус, прямая пересекает шар, прямая не пересекает конус, прямая не пересекает шар:
1




Проставьте последовательность определения с изображением в следующем порядке: схема, эскиз, условное обозначение, чертеж (см. рисунок ниже):
1




Проставьте правильное соотношение название видов и их изображения (см. ниже):
A. Вид сверху
B. Вид снизу
C. Вид спереди
D. Вид слева
E. Вид справа
F. Вид сзади
G.






Проставьте правильную последовательность (слева-направо) наименований граф в таблице перечней элементов (см. рисунок ниже):

1 позиция обозначения
2 наименование
3 количество
4 примечание
Проставьте правильную последовательность вычерчивания шпилечного соединения (см. рисунок ниже):

1 3
2 2
3 4
4 5
5 1
Проставьте типы сварных швов свариваемых деталей в следующем порядке: стыковое соединение, тавровое соединение, соединение внахлест, угловое соединение (см. рисунок ниже):
1




Процесс выполнения чертежей деталей по сборочному чертежу – это …
- конструирование
- деталирование
- разборка
- сборка
Прямая общего положения изображается на плоскостях проекций …
- без искажения на фронтальной плоскости
- без искажения на горизонтальной плоскости
- с искажением на обеих плоскостях проекций
- с искажением только на профильной плоскости проекций
Прямая, параллельная горизонтальной плоскости проекций, называется …
- прямой общего положения
- горизонтальной прямой уровня
- фронтальной прямой уровня
- профильной прямой уровня
Прямая, параллельная профильной плоскости проекций, называется …
- прямой общего положения
- горизонтальной прямой уровня
- фронтальной прямой уровня
- профильной прямой уровня
Прямая, параллельная фронтальной плоскости проекций, называется …
- прямой общего положения
- горизонтальной прямой уровня
- фронтальной прямой уровня
- профильной прямой уровня
Радиус основания конуса на рисунке (см. ниже) равен …

Размер проставляется на расстоянии … от чертежа предмета (детали)
- 5мм
- 6мм
- 8мм
- 10мм
Размеры внешней рамки составляют …
- 20мм слева, 5 мм с других сторон листа
- 5мм слева и справа, 20 мм снизу и сверху листа
- 20мм справа, 5 мм с других сторон листа
- 20мм со всех сторон листа
Размеры, необходимые для правильного монтажа составных частей изделия, например, расстояние между осями валов, — это … размеры
Разрез А-А (см. рисунок ниже) является …

- прямым
- ступенчатым
- простым
- профильным
Разрез А-А (см. рисунок ниже) является …

- прямым
- ступенчатым
- ломанным
- профильным
Расположение аксонометрических осей, изображенных на рисунке (см. ниже), называется …

- прямоугольная изометрия
- прямоугольная диметрия
- косоугольная горизонтальная изометрия
Расположение аксонометрических осей, изображенных на рисунке (см. ниже), называется …

- прямоугольная изометрия
- прямоугольная диметрия
- косоугольная горизонтальная изометрия
Расположите масштабы в порядке увеличения:
1 1:15
2 1:1
3 2:1
4 15:1
Расположите наименования позиций в следующем порядке (см. рисунок ниже): позиция 3, позиция 1, позиция 2, позиция 6:

1 чертилка
2 основание
3 стержень
4 винт зажимной
Расположите обозначения частей резьбы в следующем порядке: сбег, фаска, недовод, недорез (см. рисунок ниже):

1 #3
2 #1
3 #4
4 #2
Расположите фигуры в следующем порядке: конус, шар, тор, цилиндр (см. рисунки ниже):
1




Расположите части болтового соединения в следующей последовательности: болт, гайка, шайба, отверстие (см. рисунки ниже):
1




Расставьте размеры в следующей последовательности: количество сквозных отверстий, диаметр сквозного отверстия, высота детали, ширина детали (см. рисунок ниже):

1 1
2 20
3 70
4 50
Расставьте точки на поверхности конуса в следующем порядке: точка лежит на основании конуса, точка лежит на вершине конуса, точка принадлежит очерковой конуса, точка лежит на поверхности конуса (см. рисунок ниже):

1 точка 3
2 точка 1
3 точка 2
4 точка 4
Резьба, изображенная на рисунке (см. ниже), называется …

- цилиндрическая
- метрическая
- коническая трубная
- упорная
Резьба, изображенная на рисунке (см. ниже), называется …

- цилиндрическая
- метрическая
- коническая
- дюймовая
Сведения о деталях, входящих в состав изделия выносят в спецификацию на …
- сборочном чертеже
- схемах
- строительных чертежах
- всех чертежах
Сечение А-А правильно показано на чертеже под номером (см. рисунок ниже) …

- 1
- 2
- 3
- 4
- 5
Сечение от секущей плоскости определяется в натуральную величину на изображении под номером … (см. рисунок ниже)

Символ обозначения используется, чтобы показать …

- радиус
- хорду
- диаметр
- сферу
Совокупность элементов, представляющая единую конструкцию, — это …
Соосные со сферой тела вращения пересекаются по …
- кривой линии
- окружностям
- эллипсу
- параболе
Сопоставьте вид размера и его определение:
A. Габаритные размеры
B. Монтажные размеры
C. Эксплуатационные размеры
D. Прочие размеры
E. (длина, ширина, высота) указывают пространство, занимаемое изделием
F. устанавливают взаимосвязь и взаимное расположение деталей в сборочной единице, например: расстояние между осями валов и т.п.
G. характеризуют работу сборочной единицы. К ним относятся диаметры проходных отверстий вентилей и задвижек, максимальные углы поворота рукояток, расстояние между крайними положениями подвижных деталей, максимальный ход поршня и т.д.
H. для инструментов, употребляемых при сборке (размеры «под ключ» для гаек и болтов, квадратов для посадки маховиков и т.п.)
Сопоставьте изображение (см. ниже) с названием:
A. Горизонтально проецирующая плосоксть
B. Фронтально проецирующая плоскость
C. Общего положения
D. Профильно проецирующая плоскость
E.




Сопоставьте изображение (см. ниже) с соответствующим ему определением:
A. Сечение плоскостью конуса
B. Сечение плоскостью пирамиды
C. Сечение плоскостью шара
D. Сечение плоскостью цилиндра
E.




Сопоставьте изображения (см. ниже) и их определения:
A. Соединение муфтой
B. Соединение угольником
C. Соединение крестом
D. Соединение тройником
E.




Сопоставьте код и вид схемы:
A. «Э»
B. «Г»
C. «В»
D. «Л»
E. схема электрическая
F. схема гидравлическая
G. схема вакуумная
H. схема оптическая
Сопоставьте название и изображение фигур (см. ниже):
A. Конус
B. Пирамида
C. Гиперболоид
D. Цилиндр
E.




Сопоставьте названия видов и их изображения (см. ниже):

A. Вид спереди
B. Вид сверху
C. Вид сбоку
D. Аксонометрия
E.




Сопоставьте названия измерительных приборов с их изображением (см. ниже):
A. Штангенциркуль
B. Микрометр
C. Радиусомеры
D. Штангенглубомер
E.




Сопоставьте названия крепежных соединений с изображениями (см. ниже):
A. Винтовое соединение
B. Болтовое соединение
C. Зубчатое соединение
D. Шпоночное соединение
E. Шпилечное соединение
F.





Сопоставьте определения и их изображения (см. ниже):
A.




F. сбег резьбы
G. внутренняя проточка
H. фаска
Сопоставьте определения с изображением (см. ниже):
A. Прямые скрещивающиеся
B. Прямые пересекающиеся
C. Точка лежит на прямой
D. Точка не лежит на прямой
E.




Сопоставьте плоскости конуса и то, что получается в результате их сечения (см. рисунок ниже):
A.





G. эллипс
H. парабола
I. прямые линии
J. гипербола
Сопоставьте положение плоскостей в следующем порядке: общего положения, горизонтальная плоскость уровня, фронтальная плоскость уровня, профильная плоскость уровня (см. рисунки ниже):
1




Сопоставьте понятия и их изображения (см. ниже):
A. Ступенчатый разрез
B. Ломанный разрез
C. Горизонтальный разрез
D. Наклонный разрез
E.




Сопоставьте понятия и их определения:
A. Комплекты
B. Детали
C. Комплексы
D. Сборочные единицы
E. набор двух и более изделий, имеющих общее эксплуатационное назначение вспомогательного характера
F. изделие, изготовленное из однородного по наименованию и марке материала без применения сборочных операций (например, вал, литой корпус, зубчатое колесо и др.)
G. два и более специфицированных изделия, не соединенных на предприятии-изготовителе сборочными операциями, но предназначенных для выполнения взаимосвязанных эксплуатационных функций
H. изделие, составные части которого подлежат соединению между собой на предприятии-изготовителе сборочными операциями
Сопоставьте понятия и их определения:
A. Сборочный чертеж
B. Сборочной единицей
C. Комплекс
D. Комплект
E. два и более изделия, несоединенных на предприятии-изготовителе сборочными операциями и представляющих набор изделий, имеющих общее эксплуатационное назначение вспомогательного характера
F. называется изделие, составные части которого подлежат соединению между собой на предприятии-изготовителе сборочными операциями
G. документ, содержащий изображения изделия и другие данные, необходимые для его сборки (изготовления) и контроля
H. два и более специфицированных изделия, не соединенных на предприятии-изготовителе сборочными операциям, но предназначенных для выполнения взаимосвязанных эксплуатационных функций
Сопоставьте понятия и их определения:
A. Соединение крестом
B. Соединение угольником
C. Соединение муфтой
D. Соединение тройником
E. представляет соединение труб крест-накрест с помощью ответных фланцев
F. используется для состыковки труб одинакового диаметра
G. служит для установки манометра на муфтовом клапане
H. отвод потока рабочей среды от основного трубопровода осуществляется только под углом в 90 градусов
Сопоставьте понятия и их определения:
A. Шайба
B. Винт
C. Болт
D. Гайка
E. может подкладываться под гайку или головку другого крепёжного изделия, под шплинт и т.п. для создания большей площади опорной поверхности, предотвращения самоотвинчивания крепёжной детали
F. имеет вид стержня с наружной резьбой на одном конце и конструктивным элементом для передачи крутящего момента на другом
G. крепёжное изделие в форме стержня с наружной резьбой на одном конце, с головкой на другом
H. крепёжное изделие с резьбовым отверстием, образующее разборное соединение с помощью винта, болта или шпильки
Сопоставьте размеры с оформлением листа А3:
A. 297х420мм
B. 5мм
C. 20мм
D. 185х55мм
E. размер листа
F. поля справа, снизу, сверху
G. поле слева
H. основная надпись
Сопоставьте составные части изделия изображенные на картинке (см. ниже) с их названиями:
A.




F. стойка
G. призма
H. отверстия
Сопоставьте условное обозначение соединений деталей:
A. Винтовое
B. Болтовое
C. Шпилечное
D. Винтовое с потайной головкой
E.




Сопоставьте чертеж и метод, который использовался для решения задачи:
A.



E. метод секущих сфер
F. секущие плоскости
Сплав, образованный расплавленным основным и наплавленным металлами или только переплавленным основным металлом, — это … шва
Технический рисунок(эскиз) – это …
- документ вспомогательного характера, предназначенный для временного пользования
- наглядное изображение, выполненное по правилам аксонометрических проекций от руки и на глаз
- конструкторский документ, выполненный от руки, без применения чертежных инструментов, без точного соблюдения размеров, без соблюдения масштаба, но с соблюдением пропорций детали
- инженерный документ, показывающий технические задумки инженера, сделанные от руки, но с соблюдением масштаба и размеров
Тип линии, изображенный на рисунке (см. ниже), служит для обозначения …

- невидимого контура
- видимого контура
- размерной линии
- осей и центров
Тип линии, изображенный на рисунке (см. ниже), служит для обозначения …

- невидимого контура
- видимого контура
- размерной линии
- осей и центров
Тонкие стенки детали, служащие для усиления изделия, — это …
- стенки
- ребра жесткости
- усилительные ребра
- узлы крепления
Точка А с координатами (10; 10; 20) лежит в … октане
- первом
- втором
- третьем
- четвертом
Точки пересечения отрезка АВ с поверхностью определены с помощью вспомогательной горизонтальной плоскости уровня определены на чертеже (см. ниже) под номером …

- 1
- 2
- 3
У данной (см. рисунок ниже) пирамиды … граней

У данной призмы (см. рисунок ниже) … ребра

Узел, образованный соединительными деталями (заклепками, винтами и др.) и прилегающими частями соединяемых деталей (фланцами), форма которых подчинена задаче соединения – это …
Укажите правильный порядок заполнение полей в основной надписи чертежа: разработал, проверил, наименование предприятия, масштаб чертежа (см. рисунок ниже):

1 поле 1
2 поле 4
3 поле 2
4 поле 3
Указанные стрелками (см. рисунок ниже) части шестигранной призмы называются боковые …

- рёбра
- грани
- снования
- линии сгиба
Условное обозначение для записи: «болт второго исполнения, с метрической резьбой, номинальным диаметром – 16мм, с крупным шагом, с длиной 75 мм» — это …
- болт 2М16х75
- болт М16х1.5
- болт 2М16х1.5х75
- болт М16х1.5х75
Установите соответствие между изображением и определением резьбы:
A.





G. трубная цилиндрическая
H. трапецеидальная
I. метрическая
J. прямоугольная
Установите соответствие между понятием и его изображением (см. ниже):

A. Горизонтально проецирующая прямая
B. Фронтально проецирующая прямая
C. Прямая общего положения
D. Фронталь
E. Горизонталь
F.





Установите соответствие размеров листа с форматом:
A. А1
B. А2
C. А3
D. А4
E. А5
F. А6
G. 594×841 мм
H. 420×594 мм
I. 297×420 мм
J. 210×297 мм
K. 210х148 мм
L. 148х105 мм
Участок с неполноценным профилем резьбы, называется … резьбы
- шагом
- сбегом
- профилем
- длиной
Формат листа А4 имеет размер …
- 420х594 мм
- 297х420 мм
- 210х297 мм
- 148х210 мм
Шплинт нужен для …
- увеличения и предохранения опорной поверхности
- уплотнения соединения
- предотвращения самоотвинчивания
- надежного скрепления двух соединяемых деталей
Файлы условия, демо
Характеристики ответов (шпаргалок) к зачёту
Предмет
Учебное заведение
Семестр
Номер задания
Программы
Теги
Просмотров
126
Качество
Идеальное компьютерное
Размер
1,53 Mb
Список файлов
Инженерная графика. Ответы на тест.pdf

Каждая купленная работа – это шаг к вашей успешной сдаче и мой стимул делать ещё лучше. Вместе мы создаём круговорот добра в учебе 🥰
Комментарии

killer_bim_095: Все отлично спасибо большое за помощь
Пожалуйста! Рад помочь 👍️

Отзыв
Все отлично спасибо большое за помощь