Для студентов СибАДИ по предмету Газовая динамикаРасчёт газопровода для городского районаРасчёт газопровода для городского района
4,9851099
2023-09-102023-09-10СтудИзба
Курсовая работа: Расчёт газопровода для городского района
Описание
Характеристики курсовой работы
Предмет
Учебное заведение
Просмотров
1
Размер
1,16 Mb
Список файлов
1651681550_kursovaja-rabota-gazovye-seti-i-ustanovki
картинки
Гидравлический расчет газопровода.jpg
Годовой расход газа на отопление и вентиляцию жилых и общественных зданий.jpg
Годовые расходы газа на нужды предприятий торговли предприятий.jpg
Определение параметров газопровода.jpg
Определение расчетных часовых расходов газа.jpg
Расчет характеристик газового топлива.jpg
Спецификация Захаров.jpg
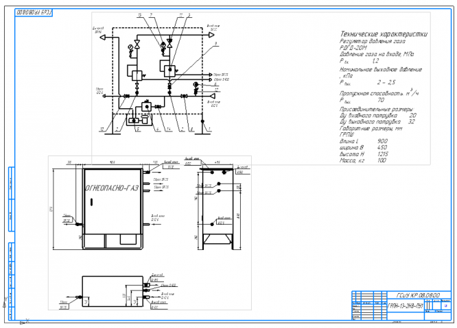
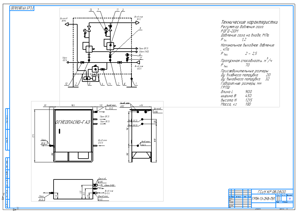
Чертёж газорегуляторный пункт шкафной.jpg
ГРПН-13-2НВ-ПУ1 _ ГСиУ КР.08.08.00.cdw
ПЗ Газовые сети.docx
Спецификация Захаров.spw

Спасибо за покупку! Я буду очень рад, если поставишь справедливую оценку купленному файлу