Для студентов по предмету Электроснабжениереконструкция токарно-револьверного станкареконструкция токарно-револьверного станка
5,0054005
2022-10-25СтудИзба

ВКР: реконструкция токарно-револьверного станка

Описание

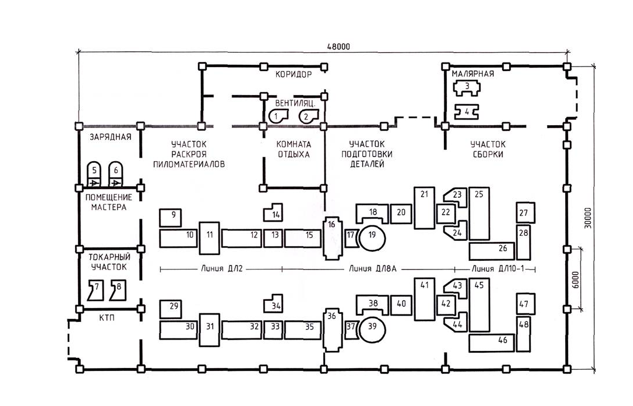
Объектом дипломной работы было предприятиеcельскохозяйственного производственного кооператива “ВЫБОР”, где проходила преддипломная практика.
Выбор темы связан с тем, что на предприятии имеется большой парк морально и физически устаревших моделей станков. Их конструкционные решения не отвечают современным требованиям, предъявляемым к станкам.
Кроме того, высокий износ узлов и потеря его точностных параметров вызывают проблемы с их эксплуатацией. Всё это требует обновления станочного оборудования. На приобретение нового станочного оборудования у предприятия нет денежных средств, но есть возможность его реконструкции.
Целью дипломной работы является реконструкция электрооборудования деревообрабатывающего цеха, а именно, реконструкция токарно-револьверного станка.
Для реализации поставленной цели в дипломной работе определены следующие задачи: ознакомление с нормативно-технической документацией по электроснабжению и электрооборудованию, выполнение расчета электрических нагрузок цеха, выбор мощности силового трансформатора цеховой подстанции, конденсаторной установки, пусковой защитной аппаратуры, расчет мощности электродвигателей станка и их выбор, проверочный расчет и выбор пускозащитной аппаратуры, расчет и выбор проводов и кабеля, расчет и выбор элементов схемы управления, расчет стоимости выполненных работ, изучение правил техники безопасности.
Практическая значимость заключается в увеличении производственных мощностей, повышении экономических и технических характеристик.
Работа состоит из четырех разделов: электроснабжение деревообрабатывающего цеха, реконструкция токарно-револьверного станка, экономическая часть и охрана труда.
Информационной базой дипломной работы являются нормативно-технические документы, паспорта оборудования, СНИПы, Правила устройства электроустановок, электротехнические справочники, материалы отчета о преддипломной практике.



РАЗДЕЛ 1. ЭЛЕКТРОСНАБЖЕНИЕ ДЕРЕВООБРАБАТЫВАЮЩЕГО ЦЕХА
1.1 Характеристика деревообрабатывающего цеха предприятия 2-й категории
1.2 Характеристика электроприемников деревообрабатывающего цеха……….6
1.3 Расчёт электрических нагрузок деревообрабатывающего цеха……………9
1.4 Расчет и выбор силового трансформатора…………………………………15
1.5 Компенсация реактивной мощности…………………………………….…17
1.6 Расчет и выбор пускозащитной аппаратуры …………..…………………..18
РАЗДЕЛ 2. РЕКОНСТРУКЦИЯ ТОКАРНО-РЕВОЛЬВЕРНОГО СТАНКА ДЕРЕВООБРАБАТЫВАЮЩЕГО ЦЕХА………………………21
2.1 Сущность реконструкции и обоснование ее необходимости……………..21
2.2 Назначение и общая характеристика электрооборудования станка……..21
2.3 Расчет мощности электродвигателей станка и их выбор………………….25
2.4 Проверочный расчет и выбор пускозащитной аппаратуры……………….28
2.5 Расчет и выбор трансформаторов питания цепей управления, местного освещения и сигнализации
2.6 Расчет и выбор проводов и кабеля………………………………………….41
2.7 Расчет и выбор элементов схемы управления……………………………..46
2.8 Организационно – технологическая часть…………………………………51
РАЗДЕЛ 3. ЭКОНОМИЧЕСКАЯ ЧАСТЬ. РАСЧЕТ СЕБЕСТОИМОСТИ И ЦЕНЫ НА РЕКОНСТРУКЦИЮ ТОКАРНО-РЕВОЛЬВЕРНОГО СТАНКА
3.1 Понятие и состав затрат на производство и реализацию продукции, работ, услуг
3.2 Понятие цены продукции, работ, услуг…………………………………….59
РАЗДЕЛ 4. ОХРАНА ТРУДА…………………………………………………...62
4.1 Общие требования по безопасной эксплуатации электрооборудования...62
4.2 Меры безопасности при осмотре и ремонте электрооборудования при снятом напряжении
4.3 Меры безопасности при осмотре и ремонте электрооборудования, находящегося под напряжением
4.4 Расчёт контура заземления ТП……………………………………………...72



Характеристики ВКР

Список файлов

Elektrosnabzhenie_derevoobrabatyvayuschego_tsekha_predpriatia_2-y_kategorii_2.docx
Обратите внимание, что данная работа уже сдавалась в университете, а также её могли покупать другие студенты, поэтому её уникальность может быть нулевой. Для получения уникальной работы воспользуйтесь услугами.
Картинка-подпись
Если нужен другой вариант работы или отдельная задача из любой работы, пишите в комментарии

Комментарии

Нет комментариев
Стань первым, кто что-нибудь напишет!
Поделитесь ссылкой:
Цена: 1 000 руб.
Расширенная гарантия +3 недели гарантии, +10% цены
Рейтинг автора
5 из 5
Поделитесь ссылкой:
Сопутствующие материалы

Подобрали для Вас услуги

Вы можете использовать ВКР для примера, а также можете ссылаться на неё в своей работе. Авторство принадлежит автору работы, поэтому запрещено копировать текст из этой работы для любой публикации, в том числе в свою выпускную квалификационную работу в учебном заведении, без правильно оформленной ссылки. Читайте как правильно публиковать ссылки в своей работе.
Свежие статьи
Популярно сейчас
Почему делать на заказ в разы дороже, чем купить готовую учебную работу на СтудИзбе? Наши учебные работы продаются каждый год, тогда как большинство заказов выполняются с нуля. Найдите подходящий учебный материал на СтудИзбе!
Ответы на популярные вопросы
Да! Наши авторы собирают и выкладывают те работы, которые сдаются в Вашем учебном заведении ежегодно и уже проверены преподавателями.
Да! У нас любой человек может выложить любую учебную работу и зарабатывать на её продажах! Но каждый учебный материал публикуется только после тщательной проверки администрацией.
Вернём деньги! А если быть более точными, то автору даётся немного времени на исправление, а если не исправит или выйдет время, то вернём деньги в полном объёме!
Да! На равне с готовыми студенческими работами у нас продаются услуги. Цены на услуги видны сразу, то есть Вам нужно только указать параметры и сразу можно оплачивать.
Отзывы студентов
Ставлю 10/10
Все нравится, очень удобный сайт, помогает в учебе. Кроме этого, можно заработать самому, выставляя готовые учебные материалы на продажу здесь. Рейтинги и отзывы на преподавателей очень помогают сориентироваться в начале нового семестра. Спасибо за такую функцию. Ставлю максимальную оценку.
Лучшая платформа для успешной сдачи сессии
Познакомился со СтудИзбой благодаря своему другу, очень нравится интерфейс, количество доступных файлов, цена, в общем, все прекрасно. Даже сам продаю какие-то свои работы.
Студизба ван лав ❤
Очень офигенный сайт для студентов. Много полезных учебных материалов. Пользуюсь студизбой с октября 2021 года. Серьёзных нареканий нет. Хотелось бы, что бы ввели подписочную модель и сделали материалы дешевле 300 рублей в рамках подписки бесплатными.
Отличный сайт
Лично меня всё устраивает - и покупка, и продажа; и цены, и возможность предпросмотра куска файла, и обилие бесплатных файлов (в подборках по авторам, читай, ВУЗам и факультетам). Есть определённые баги, но всё решаемо, да и администраторы реагируют в течение суток.
Маленький отзыв о большом помощнике!
Студизба спасает в те моменты, когда сроки горят, а работ накопилось достаточно. Довольно удобный сайт с простой навигацией и огромным количеством материалов.
Студ. Изба как крупнейший сборник работ для студентов
Тут дофига бывает всего полезного. Печально, что бывают предметы по которым даже одного бесплатного решения нет, но это скорее вопрос к студентам. В остальном всё здорово.
Спасательный островок
Если уже не успеваешь разобраться или застрял на каком-то задание поможет тебе быстро и недорого решить твою проблему.
Всё и так отлично
Всё очень удобно. Особенно круто, что есть система бонусов и можно выводить остатки денег. Очень много качественных бесплатных файлов.
Отзыв о системе "Студизба"
Отличная платформа для распространения работ, востребованных студентами. Хорошо налаженная и качественная работа сайта, огромная база заданий и аудитория.
Отличный помощник
Отличный сайт с кучей полезных файлов, позволяющий найти много методичек / учебников / отзывов о вузах и преподователях.
Отлично помогает студентам в любой момент для решения трудных и незамедлительных задач
Хотелось бы больше конкретной информации о преподавателях. А так в принципе хороший сайт, всегда им пользуюсь и ни разу не было желания прекратить. Хороший сайт для помощи студентам, удобный и приятный интерфейс. Из недостатков можно выделить только отсутствия небольшого количества файлов.
Спасибо за шикарный сайт
Великолепный сайт на котором студент за не большие деньги может найти помощь с дз, проектами курсовыми, лабораторными, а также узнать отзывы на преподавателей и бесплатно скачать пособия.
Популярные преподаватели
Добавляйте материалы
и зарабатывайте!
Продажи идут автоматически
6976
Авторов
на СтудИзбе
262
Средний доход
с одного платного файла
Обучение Подробнее
{user_main_secret_data}