Для студентов по предмету Электрические машиныДля 3-фазного двухобмоточного трансформатораДля 3-фазного двухобмоточного трансформатора
5,0053347
2025-02-142025-02-14СтудИзба
ДЗ: Для 3-фазного двухобмоточного трансформатора
Описание
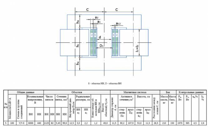
Для 3-фазного двухобмоточного трансформатора №… из таблицы 2 (первичная обмотка – обмотка ВН):
1. Определить фазные значения номинальных напряжений и токов обмоток и коэффициент трансформации.
2. Вычертить схемы соединения обмоток, обеспечивающие заданную группу соединения.
3. Определить массы стержней и ярм, потери холостого хода Р0н , среднее значение тока холостого хода I0н (А) и i0н (%), его активную I0а и реактивную I0р составляющие и коэффициент мощности для номинального напряжения и частоты 50 Гц.
4. Определить приведенные значения параметров схемы замещения r12, x12, z12 в Омах.
5. Определить массу обмоток ВН и НН и потери короткого замыкания Рк.н.
6. Определить приведенные значения параметров схемы замещения rк, xк, zк в Омах, напряжение короткого замыкания Uк.н (В) и uк.н (%) и коэффициент мощности.
![]()
1. Определить фазные значения номинальных напряжений и токов обмоток и коэффициент трансформации.
2. Вычертить схемы соединения обмоток, обеспечивающие заданную группу соединения.
3. Определить массы стержней и ярм, потери холостого хода Р0н , среднее значение тока холостого хода I0н (А) и i0н (%), его активную I0а и реактивную I0р составляющие и коэффициент мощности для номинального напряжения и частоты 50 Гц.
4. Определить приведенные значения параметров схемы замещения r12, x12, z12 в Омах.
5. Определить массу обмоток ВН и НН и потери короткого замыкания Рк.н.
6. Определить приведенные значения параметров схемы замещения rк, xк, zк в Омах, напряжение короткого замыкания Uк.н (В) и uк.н (%) и коэффициент мощности.

Файлы условия, демо
Характеристики домашнего задания
Предмет
Просмотров
3
Качество
Идеальное компьютерное
Размер
177,38 Kb
Список файлов
Трансформатор.docx

Если нужен другой вариант работы или отдельная задача из любой работы, пишите в комментарии