Для студентов МГТУ им. Н.Э.Баумана по предмету Дипломы и ВКРЭлектрогидравлический следящий привод транспортного средства на воздушной подушкеЭлектрогидравлический следящий привод транспортного средства на воздушной подушке
5,0052
2021-03-252024-09-08СтудИзба
ВКР: Электрогидравлический следящий привод транспортного средства на воздушной подушке
-67%
Описание
Характеристики ВКР
Предмет
Учебное заведение
Просмотров
38
Размер
1,99 Mb
Список файлов
Электрогидравлический следящий привод транспортного средства на воздушной подушке
Лист1_общий вид транспортного средства.pdf
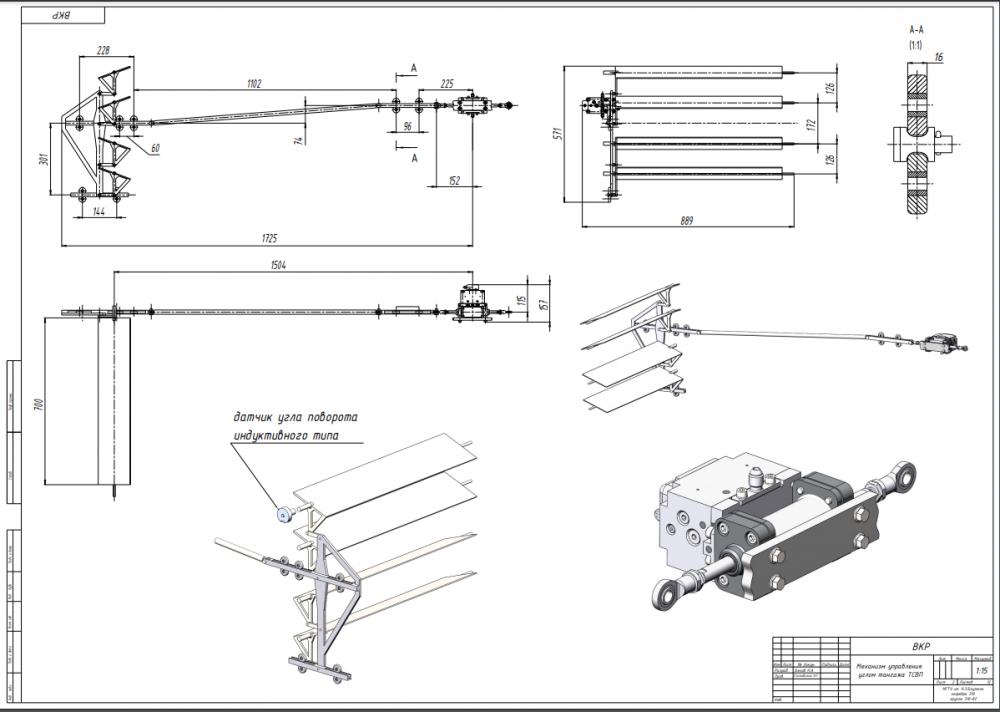
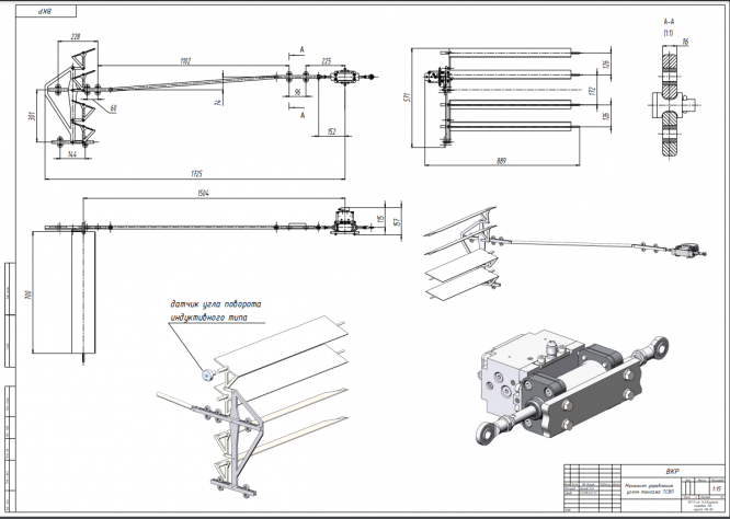
Лист2_Мехинизм управления.pdf
Лист3_Электрогидравлический усилитель привода.pdf
Лист4_Гидроцилиндр привода.pdf
Лист5_Крышка ГЦ.pdf
Лист6_Динамические характеристики привода1.pdf
Лист7_Динамические характеристики привода2.pdf
Лист8_Аксиально-поршенвой насос.pdf
Лист9_Габаритный чертеж аксиально-поршневого насоса.pdf
Лист10_Бак_Гидравлическая схема привода.pdf

Друзья, спасибо за доверие! Если вам понравилась работа – поставьте 5⭐ и напишите отзыв. Это поможет другим студентам, а мне даст силы делать ещё больше качественных материалов для вас 🔥