Для студентов МГТУ им. Н.Э.Баумана по предмету Детали машин (ДМ)Привод цепного конвеераПривод цепного конвеера
5,00541
2014-06-062025-04-07СтудИзба
Курсовая работа ДМ: Привод цепного конвеера вариант 5, 1
-50%
Описание
Привод цепного конвеера
ДМ 5-01
Содержание
Введение…………………………………………………………………………………………………………………………………………………..21.Кинематический расчет привода………………………………………………………..............................................3
1.1 Подбор электродвигателя……………………………………………………………………………………………………3
2.Анализ результатов на ЭВМ…………………………………………………………….................................................4
3.Предварительный расчёт валов…………………………………………………………..............................................5
4.Расчет соединений………………………………………………………………………...........................................................6
4.1.Соединение с натягом……………………………………………………………………………………………………………..6
4.1.1. промежуточного вала с колесом……………………………………………..........................7
4.1.2. тихоходного вала с колесом…………………………………………………..............................7
4.2.Шпоночные соединения……………………………………………………………..................................................8
4.2.1. электродвигатель быстроходный вал……………………………………………………………8
4.2.2. тихоходный вал – приводной вал …… …………………………………………………………..8
4.2.3. приводной вал – звездочка транспортера………………………………...……………..8
4.3.Сварное соединение…………………………………………………………...…………………………………………………….9
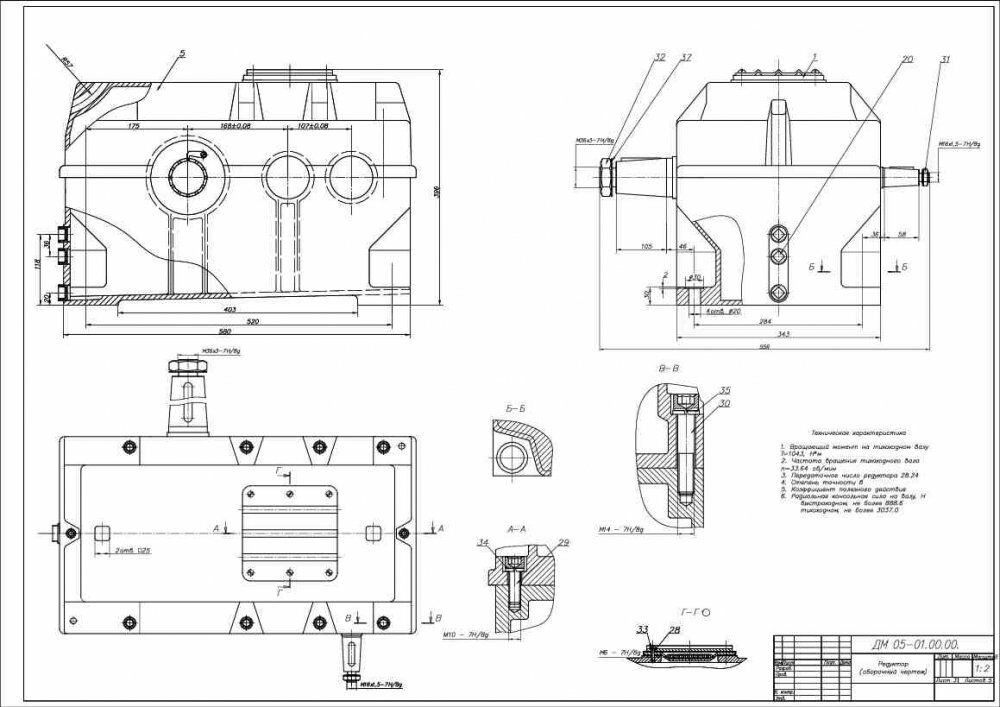
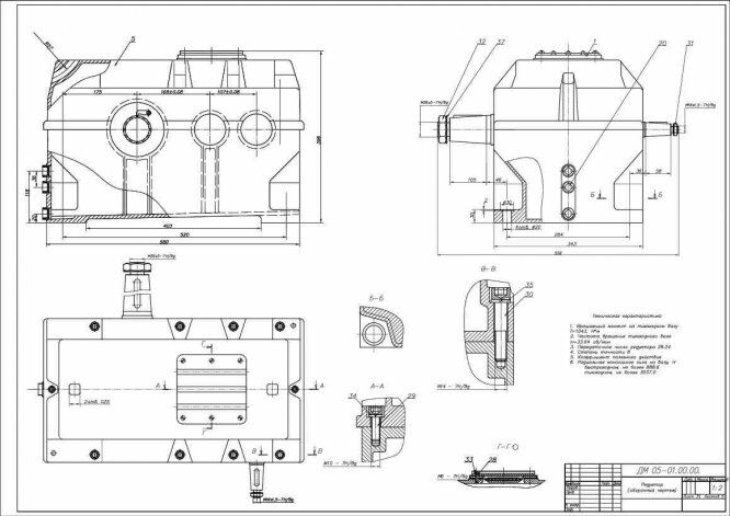
5.Конструирование корпуса…………………………………………………………….......................................................9
6.Определение сил реакций в опорах валов……………………………………………………………………………… 10
6.1.Быстроходный вал редуктора…………………………………………………...………………………………………..10
6.2.Промежуточный вал редуктора………………………………………………...……………………………………..11
6.3.Тихоходный вал редуктора………………………………………………………...……………………………………… 12
7.Подбор подшипников качения ………………………………………………………....................................................13
7.1. для опор быстроходного вала…………………………………………………...……………………………………..13
7.2. для опор промежуточного вала………………………………………………...…………………………………….14
7.3. для опор тихоходного вала……………………………………………………...……………………………………….14
8. Выбор смазочного материала ………………………………………………………...............................................15
9. Расчет комбинированной муфты…………………………………………………..……………………………………………..16
10. Уточненный расчет валов……………………………………………………..………………………………………………………18
Список используемой литературы……………………………………………………………………………………………………26
Распечатки с расчетами на ЭВМ отсутствуют!
Введение
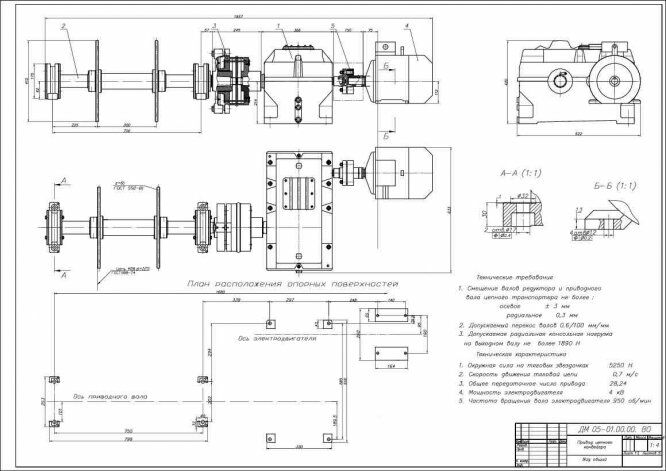
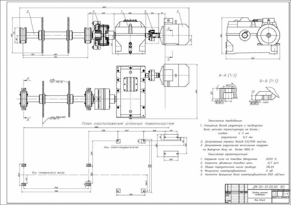
Целью выполнения данного курсового проекта является спроектировать привод цепного транспортера. Составными частями привода являются электродвигатель, зубчатый цилиндрический двухступенчатый редуктор, муфта, тяговые звёздочки.Устройство привода следующее: вращающий момент передается с электродвигателя на входной вал редуктора; с выходного вала редуктора через упруго-предохранительную муфту на приводной вал.
Требуется выполнить необходимые расчеты, выбрать наилучшие параметры схемы и разработать конструкторскую документацию, предназначенную для изготовления привода:
- Общий вид привода;
- Редуктор(2 листа)
- рабочие чертежи деталей редуктора;
- муфта.
1. Кинематический расчет
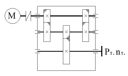
Спроектировать привод с цилиндрическим двухступенчатым редуктором с раздвоеной быстроходной ступенью.
Параметр для расчета | Вариант N 5 |
Окружная сила Ft , Н | 5250 |
Скорость цепи V , м/с | 0.7 |
Шаг цепи транспортера Р , мм | 125 |
Число зубьев звездочки z | 8 |
Цепь ( тип 1 , исполнение 1 ) | М28 |
1.1.Выбор электродвигателя.
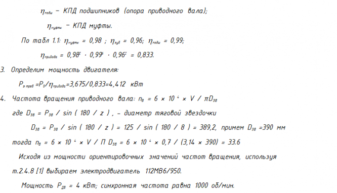
Приступая к выполнению проекта, в первую очередь выбирают электродвигатель, для этого определяют его мощность и частоту вращения.После вычисления мощности определяют потребную мощность электродвигателя. Далее определяют частоту вращения вала электродвигателя.
После этого подбирают электродвигатель с мощностью Р и частотой вращения ротора п(об/мин), ближайшими к полученным ранее. При подборе Р (кВт) допускается перегрузка двигателя до 5...8% при постоянной и до 10...12% при переменной нагрузке.


2.Анализ результата на ЭВМ.
Расчет зубчатых передач редуктора осуществлен на ЭВМ. По его итогам было получено 9 вариантов исполнения 2-х ступеней редуктора. Выбор оптимального варианта осуществляется посредством 7 параметров, характеризующих передачу.Был выбран 1 вариант по следующим причинам. Твердости колес(24,8HRC) и шестерен (28,5HRC) являются оптимальными для работы передачи, дающие хорошую защиту от износа и от излома зуба. Суммарная масса передачи 29,03 кг (механизма 99,6 кг) достаточно маленькая. Суммарное межосевое расстояние 255 мм обеспечивает оптимальные размеры редуктора.
Чертежи
Лист 1 - Привод цепного конвеера и спецификация ![]()
Лист 2 - Приводной вал ![]()
Лист 3 - Деталировка - Муфта упруго-предохранительная; Вал тихоходный; Колесо зубчатое; Крышка подшыпника
Лист 4-5 - Редуктор и спецификация ![]()




Файлы условия, демо
Характеристики курсовой работы
Предмет
Учебное заведение
Семестр
Номер задания
Программы
Просмотров
1373
Качество
Идеальное компьютерное
Размер
2,3 Mb
Список файлов
Лист 1 - Привод цепного конвеера.pdf
Лист 2 - Приводной вал.pdf
Лист 3 - Деталировка.pdf
Лист 4 - Редуктор.pdf
Лист 5 - Редуктор.pdf
РПЗ.doc
Спецификая - Привод цепного конвеера.pdf
Спецификая - Редуктор - 1.pdf
Спецификая - Редуктор - 2.pdf
Спецификая - Редуктор - 3.pdf
Чертежи.dwg

Вам все понравилось? Получите кэшбэк - 40 рублей на Ваш счёт при покупке. Поставьте оценку и напишите положительный комментарий к купленному файлу. После Вы получите деньги на ваш счет.
Комментарии

класс