Лекции (962575), страница 4
Текст из файла (страница 4)
Практика автоматизации питания заготовками сборочного оборудования в цехах предприятия ЗИЛ показала, что если при внедрении новой техники не повышается существенным образом (1.5..2 раза) производительность основного оборудования, то для
обеспечения приемлемых сроков окупаемости (менее 5 лет) необходимо высвобождение от ручного труда на загрузке-выгрузке сборочных агрегатов не менее 5 человек обслуживающего персонала в расчете на единицу современных средств автоматизации питания (на базе ПР или манипуляторов).
Лукция N 14
Примеры применения линейных направляющих по каталогу
Фирмы “Феста”
Для сравнения рассмотрим две известные установки фрезерования и сверления прототипов печатных плат.
Вариант 1.Установка фрезерования и сверления прототипов печатных плат Bungard CCD представлена на рис.1.
Рис. 1
Предназначен для сверления, координатного фрезерования и гравировки следующих материалов:
- фольгированного стеклотекстолита печатных плат;
- металлов, таких как алюминий, латунь;
- пластмасс типа поливинилхлорида, органического стекла.
Специальным применением установки является дозированное нанесение паст или жидких адгезивов на плоские заготовки. Обрабатывающий центр также может быть дополнительно оснащен фотоплоттероной приставкой, что дает возможность использовать его для изготовления фотошаблонов и для непосредственного экспонирования фоточувствительных слоев печатных плат.
Станок позволяет производить координатное сверление и фрезерование.
На установке могут обрабатываться горизонтальные плоскости, фасонные поверхности, уступы и пазы различного профиля.
Компоновочная схема станка выглядит таким образом, что шпиндель с режущим инструментом может осуществлять движение в плоскости заготовки.
Особенностью станка является применение программного управления: движение подачи (вектор, скорость) изменяются в соответствии с программой управления, которая предварительно готовится в соответствии с конфигурацией поверхности обработки, заданной чертежом..
Установка оснащена высокочастотным шпинделем, перемещаемым по двум линейным направляющим с шаговыми двигателями и зубчатой передачей.
От последней движение передается на каретку со шпинделем.
В ее комплект также входят блок управления, средство для отсоса стружки (пылесос), программные драйверы для для задания операций сверления и фрезерования. При этом для программирования и управления работой станка может быть использован любой IBM PC/AT совместимый персональный компьютер. Управляющее программное обеспечение совместимо с данными из всех распространенных программ САПР в различных файловых форматах, таких как Excellon (сверление), HP/GL (фрезерование), Gerber (изоляция).
Управляющая программа имеет простой пользовательский интерфейс и обеспечивает контроль над такими параметрами, как смещение, установка границ области перемещения инструмента, его скоростей подачи и ряда других.
Техническая характеристика станка
Площадь рабочей зоны .......................................................(X-Y) 120 x 80 мм
Габариты рабочего стола ............................................................325 х 425 мм
Дискретность перемещения инструмента поХ, У, Z оси.....0,025 мм на ось
Точность положения (позиционирования)............................ ± 0.01 мм на ось
Максимальная скорость подачи ........................................................... 1м/мин
Потребляемая мощность................................................... 230В, 50Гц, 250 ВА
Вес.............................................................................................................. 30 кг
Вариант2. Фрезерно-гравировальный, настольный станок, управляемый компьютером - СИПП-А-05.
По внешнему виду не отличается от вышеуказанного, но имеет более совершенную систему программирования и большие функциональные возможности (см. ниже техническую характеристику).
Станок позволяет изготавливать: печатные платы, детали из пластмасс, алюминиевых и медных сплавов, гравировать технические и художественные надписи и рисунки.
Программное обеспечение, поставляемое со станком, позволяет использовать следующие пакеты САПР: P-CAD, OrCAO, Protel, Auto-CAD, ADEM. Возможно использование других пакетов, совместимых с форматами HPGL или GERBER, а также системы команд для станков с ЧПУ по ГОСТ 209-99. В станке применяется комплектация ведущих мировых производителей: микроконтроллер фирм MOTOROLA, TOMSON и др.
Станок рассчитан на тяжелые условия эксплуатации: не требует периодической смазки ( смазка заложена в герметизированные узлы на весь срок службы), а также регламентных регулировок защищенных подшипниковых узлов и безлюфтовых винтовых передач.
Техническая характеристика
Площадь рабочей зоны (X-Y) ......................................................290 х 260 мм
Габариты рабочего стола............................................................. 410 х 310 мм
Дискретность перемещения инструмента поХ, У, Z оси..........0,01 мм на ось
Точность положения (позиционирования)............................ ± 0.01 мм на ось
Наибольшая скорость на отдельную ось...................................... 0,8 - 35 мм/с
Потребляемая мощность....................................................................... 200 ВА
Вес.............................................................................................................. 48 кг
Табл. 3.Cравнительный анализ установок фрезерования и сверления прототипов печатных плат.
| Вариационные параметры Тип установки | Число рабочих инструментов | Количество обрабатываемых поверхностей | Тип передачи | Тип направляющих прямолинейн. движения |
| Вариант1 | ++ | ++ | + | - |
| Вариант2 | + | + | + | + |
Последовательность выбора:
Из табл. 3 можно сделать вывод, что вариант 1 имеет преимущество над вариантом 2, так как возможности установки Bungard CCD более широкие (трех координатная обработка, возможность нанесения жидких паст или адгезивов).
Структурно-компоновочные схемы вакуумных
напылительных установок
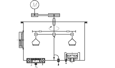
На рис.2 представлена вакуумная напылительная установка периодического действия с колпаковой рабочей камерой. В камере используется поворотно-планетарный механизм, размещенный в вакууме.
Механизм привода подложек представляет собой мотор-редуктор, который через ремённую передачу передаёт движение на манжетный ввод вращения. Ввод вращения соединен с валом поворотно-карусельного механизма с держателями кремниевых подложек. Согласно схемы рис.2 подложкодержатели совершают два вида движений: вращательное и планетарное, (которое обусловлено вращением от внешнего источника центрального диска, несущего подложкодержатели).
В варианте исполнения в данной схеме есть возможность подведения электрического потенциала к карусели, т.к. подложкодержатели могут быть легко изолированы от несущего диска карусели.
Неравномерность напыленного покрытия составляет не более 5%. На карусели можно закрепить до 4-х подложкодержателей диаметром 80…100 мм..
В этой конструкции карусели не предусмотрен механизм наклона подложек относительно испарителей.
Однако, имеются модификации внутри камерных карусельных механизмом,- рис.3, в которых зона испарителя охватывается подложкодержателями за счет наклона их осей вращения, например, в установке Оратория –5М и др.
Рис.3 Модуль рабочей камеры установки
Вакуумного напыления типа “Оратория 5М”
Механизм привода подложек в этом варианте представляет собой мотор-редуктор, который через коническую зубчатую передачу передаёт движение на манжетный ввод вращения. Ввод вращения соединяется с валом карусели.
Подложкодержатели совершают вращательное движение как вместе с каруселью, так и вокруг собственной оси, которая наклонена к оси карусели на угол β.
Ниже дано описание установки ионно-лучевого травления и напыления, которая выполнена в виде двух отдельных модулей: 1-й-рабочая камера с вакуумным постом и 2-й - стойка питания и управления.
Рис.3. Вакуумно-кинематическая схема установки. 1- пластинчато-роторный насос 2НВР-5Д; 2- обратный клапан; 3, 5, 8,10,13,14 - клапаны электромагнитные; 4 - термопарный датчик; 6 - турбомолекулярный насос ВМН-500; 7 – затвор; 9,17 – регулятор расхода газа; 11 - ловушка; 12 - магниторазрядный датчик; 15 – магнетрон; 16 - автономный источник ионов (АИИ) «Радикал»; 18 – мотор-редуктор; 19 – ременная передача; 20 – манжетный ввод вращения; 21 – карусель; 22 – пневмоподъемник и пневматическая система; 23- смотровое окно.
Рассмотрим конструкцию внутрикамерного механизма промышленной напылительной установки (того же плоского планетарного механизма), который проектировался с учетом показателей надежности и следующих дополнительных критериев:
- электроизоляция механизма от рабочей камеры (нужно для подачи на подложки смещающего напряжения до 200в);
- разгрузка вала ввода вращения механизма от осевых перемещений (заклинивания подшипников) из-за нагрева карусели в цикле напыления;
- плавность вращений обрабатываемых изделий в рабочей камере;
-удобство в обслуживании(загрузка-выгрузка изделий из камеры ) и проведении профилактических работ, в том числе планово-предупредительного ремонта.
На рис.4а,б представлен сборочный чертеж карусельного механизма для вакуумного напыления светоотражающей микропленки на изделие ТНП (козырек шлема мотоциклиста).
На рис.4а механизм выполнен с верхним расположением ввода вращения
На рис.4б – с нижним вводом вращения, что считается предпочтительным в случае повышенных осевых нагрузок на механизм (одновременная обработка большого количества заготовок)
Пример синтеза конструкции целевого механизма (Выбор структурно-компоновочного варианта шлюзового устройства вакуумной напылительной установки)
















