Метода - Исследование влияния качества очистки на адгезию тонких пленок (953832)
Текст из файла
Лабораторная работа №2
Исследование влияния качества очистки на адгезию тонких пленок
Цель лабораторной работы – исследование влияния качества очистки стеклянных подложек на адгезию пленок никеля, полученных методом магнетронного распыления
Метод магнетронного распыления
Для нанесения тонких пленок применяют различные методы, которые можно разделить на две группы: испарение и ионное распыление. В первом случае осаждение плёнки происходит посредством нагрева материала до температуры испарения, а во втором за счет передачи импульса налетающих ионов частицам поверхности мишени из распыляемого материала.
С появлением и развитием магнетронного распыления ионное распыление прочно вошло в практику современного производства. С середины 1970-х годом магнетронные распылительные системы (МРС) применяют для нанесения проводящих слоёв при производстве микросхем и нанесения различных оптических покрытий, а также упрочняющих покрытий на режущие инструменты. В настоящее время МРС широко распространены в нанотехнологии. С их помощью наносят различные наноструктурированные покрытия, имеющие от нескольких десятков до нескольких тысяч слоев из различных материалов с толщиной слоя от единиц до десятков нанометров. Такая популярность метода обосновывается такими конкурентными преимуществами как [1]:
-
Высокие скорости нанесения покрытия
-
Невысокие тепловые нагрузки на подложку, что важно при нанесении покрытий на подложки с полимерными слоями
-
Возможность нанесения покрытий сложного состава из сплавов
-
Возможность использовать МРС в технологических линиях с непрерывным нанесением покрытий благодаря большому запасу материала в распыляемом катоде.
Основными элементами устройства являются катод-мишень, анод и магнитная система (рис. 1). Силовые линии магнитного поля замыкаются между полюсами магнитной системы. Поверхность мишени, расположенная между местами входа и выхода силовых линий магнитного поля, интенсивно распыляется и имеет вид замкнутой дорожки, геометрия которой определяется формой магнитной системы.
Рисунок 1 – Схема магнетрона
При подаче постоянного напряжения между мишенью (отрицательный потенциал) и анодом (положительный или нулевой потенциал) возникает неоднородное электрическое поле и зажигается аномально тлеющий разряд. Наличие замкнутого магнитного поля у распыляемой поверхности мишени позволяет локализовать плазму разряда непосредственно у мишени.
Эмитированные с катода под действием ионной бомбардировки электроны совершают движение по замкнутым траекториям у поверхности мишени. Электроны совершают циклическое движение в этой ловушке до тех пор, пока не произойдет несколько ионизирующих столкновений с атомами рабочего газа, в результате которых электрон потеряет полученную от электрического поля энергию и диффундирует на границу плазмы по направлению к аноду [2].
Методы измерения адгезии
Наиболее распространёнными способами контроля адгезии являются отрыв и скрайбирование. Отрыв выявляет количественное значение адгезии в МПа, а скрайбирование дает качественную оценку адгезионной прочности.
При исследовании покрытия на отрыв к образцу с пленкой наклеивают специальные элементы – грибочки, которые впоследствии отрывают адгезиметром (рис. 2, а), и в итоге регистрируют приложенную для отрыва силу.
Результатом контроля покрытия скрайбированием является пленка, оставшаяся после снятия с нее клейкой ленты (рис. 2, б). Оставшиеся после скрайбирования сегменты пленки показывают качественную картину проведенного контроля, которую оценивают по классификации ISO (табл. 1).
Таблица 1 – Классификация адгезии ISO
| Поверхность | Описание | ISO |
|
| Покрытие полностью осталось на подложке | 0 |
|
| Не более 5 % покрытия было удалено | 1 |
|
| 5–15 % покрытия было удалено | 2 |
|
| 15–35 % покрытия было удалено | 3 |
|
| 35–65 % покрытия было удалено | 4 |
| – | Более 65 % покрытия было удалено | 5 |
Рисунок 2 – а) адгезиметр Elcometer 106, б) адгезиметр Elcometer 107
Описание лабораторного оборудования
Лабораторная вакуумная установка ВУП-11М (рис. 3) позволяет формировать различные тонкопленочные структуры в едином вакуумном цикле. На данный момент на ней реализованы методы нанесения тонкопленочных покрытий дуговым методом и магнетронным распылением, а также метод ионно-лучевой обработки. Конструкция вакуумной системы позволяет дросселировать откачку камеры – регулировать давление в камере с помощью вакуумного затвора.
Рисунок 3 – Внешний вид ВУП-11М
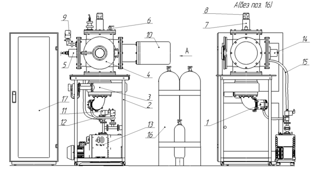
В состав вакуумного универсального поста (рис.4) входят следующие основные узлы и системы: турбомолекулярный насос Edwards nEXT400D (1), рама (2), высоковакуумный затвор (3), рабочая камера (4), магнетрон (5), клапан напуска атмосферы (6), ввод вращения (7), двигатель РД-09 (8), датчики измерения вакуума WRG (9), дуговой источник ИД-200-01 (10), электромагнитные клапана (11, 12), форвакуумный механический насос Edwards E2M40 (13), автономный источник ионов (14), байпасная магистраль (15), баллоны (16), шкаф управления (17) .
Рисунок 4 – Общий вид ВУП-11М
Технические характеристики ВУП:
1. Предельное остаточное давление в рабочей камере: не более 10-3 Па;
2. Время получения высокого (4·10-3 Па) вакуума: 30 мин;
3. Количество технологических источников: 3;
4. Тип источников: - магнетрон с ВЧ источником (МРС);
- автономный источник ионов (АИИ);
- дуговой источник ИД-200-01;
5. Мощность источника ВЧ магнетронного распыления: 1 кВт;
6. Рабочее напряжение дугового источника: 20…40 В;
7. Максимальное ускоряющее напряжение АИИ: 1 кВ;
8. Расход холодной воды 15±1˚С при давлении 0,3…0,4 МПа: 550 л/час;
9. Максимальная потребляемая мощность в установившемся режиме: 5 кВт;
Задачи и порядок проведения лабораторной работы
Задачи эксперимента:
-
Нанести тонкую плёнку никеля на подложки, полученные в результате проведения лабораторной работы по жидкостной очистке
-
Измерить адгезию плёнок на полученных образцах
-
Сопоставить результаты измерения адгезии со средним краевым углом смачивания
-
Сформулировать выводы
Описание эксперимента
Исходные образцы закрепить на подложкодержателе, который устанавливается в рабочую камеру установки ВУП-11М. Схема эксперимента изображена на рисунке 5
1 – вакуумная камера, 2 – магнетрон, 3 – источник ионов, 4 – дуговой испаритель, 5 – подложкодержатель с образцами
Рисунок 5 – Схема эксперимента
Провести процесс магнетронного распыления на режиме, указанном в таблице 2
Таблица 2 – Режимы нанесения никелевого покрытия
| Параметр | Значение |
| Остаточное давление выдерживать в диапазоне, Па | 5,2∙10-3 – 6,5∙10-3 |
| Рабочее давление выдерживать в диапазоне, Па | 0,2 – 0,4 |
| Рабочий газ | Ar |
| Поток газа, л/ч | 1,0 |
| Мощность, Вт | 200 |
| Время, мин | 10 |
С помощью прибора Elcometer 107 провести качественную оценку адгезии методом скрайбирования согласно классификации ISO. Сопоставить результаты измерения адгезии с режимами жидкостной очистки. По полученным данным сформировать выводы о выполненной работе.
Вопросы для самоконтроля и подготовки к защите лабораторной работы
-
Из каких основных частей состоит магнетрон?
-
Как называется прибор для измерения адгезии методом “отрыв”?
-
Для чего предназначена установка ВУП-11М?
-
Какие задачи ставятся перед выполнением эксперимента?
-
Каким методом необходимо оценить адгезию в эксперименте?
Список использованных источников и литературы
-
Магнетронные распылительные системы: учеб. пособие: в 2 ч. — Ч. 1: Устройство, принципы работы, применение / Д.В. Духопельников. — М. : Изд-во МГТУ им. Н. Э. Баумана, 2014. — 53, [2] с. : ил.
-
Е.Берлин, С.Двинин, Л.Сейдман Вакуумная технология и оборудование для нанесения и травления тонких пленок. – М.: Техносфера, 2007. -176 с.
ФИО студента________________________________________группа___________________
ИССЛЕДОВАНИЕ ВЛИЯНИЯ КАЧЕСТВА ОЧИСТКИ НА АДГЕЗИЮ ТОНКИХ ПЛЕНОК
Цель работы __________________________________________________________________
_____________________________________________________________________________
Общий вид установки ВУП-11М
1 – __________________________________ 10 – ____________________________________
2 – __________________________________ 11 – ____________________________________
3 – __________________________________ 12 – ____________________________________
4 – __________________________________ 13 – ____________________________________
5 – __________________________________ 14 – ____________________________________
6 – __________________________________ 15 – ____________________________________
7 – __________________________________ 16 – ____________________________________
8 – __________________________________ 17 – ____________________________________
9 – __________________________________
Измерение адгезии полученных образцов
Значение основных параметров процесса
| Параметр | Значение |
| Остаточное давление, Па | |
| Рабочее давление, Па | |
| Рабочий газ | |
| Поток газа, л/ч | |
| Мощность, Вт | |
| Время, мин |
Сводная таблица результатов
| № образца | Режим очистки | Средний γ, гр. | Оценка адгезии по ISO |
| Образец №1 | |||
| Образец №2 | |||
| Образец №3 | |||
| Образец №4 | |||
| Образец №5 | |||
| Образец №6 |
*Классификация адгезии ISO приведена в таблице 1
Характеристики
Тип файла документ
Документы такого типа открываются такими программами, как Microsoft Office Word на компьютерах Windows, Apple Pages на компьютерах Mac, Open Office - бесплатная альтернатива на различных платформах, в том числе Linux. Наиболее простым и современным решением будут Google документы, так как открываются онлайн без скачивания прямо в браузере на любой платформе. Существуют российские качественные аналоги, например от Яндекса.
Будьте внимательны на мобильных устройствах, так как там используются упрощённый функционал даже в официальном приложении от Microsoft, поэтому для просмотра скачивайте PDF-версию. А если нужно редактировать файл, то используйте оригинальный файл.
Файлы такого типа обычно разбиты на страницы, а текст может быть форматированным (жирный, курсив, выбор шрифта, таблицы и т.п.), а также в него можно добавлять изображения. Формат идеально подходит для рефератов, докладов и РПЗ курсовых проектов, которые необходимо распечатать. Кстати перед печатью также сохраняйте файл в PDF, так как принтер может начудить со шрифтами.















