tv (774325), страница 2
Текст из файла (страница 2)
Внешний фотоэффект (А.Г. Столетов, 1890) – появление электронной эмиссии с освещаемой поверхности некоторых металлов и их окислов. Внутренний фотоэффект – изменение проводимости некоторых веществ при их освещении.
Пусть в плоскости фотокатода (тонкая полупрозрачная пленка из металла с внешним фотоэффектом) сформировано оптическое изображение, так что энергетическое состояние каждого элемента фотокатода определено освещенностью Ei и его спектральным составом. Значит, с каждого элемента фотокатода эмиттируют электроны, плотность которых j вблизи поверхности пропорциональна освещенности:
ji Ei ,
а поле электронов отображает освещенность элемента изображения. Если теперь полностью отбирать ток электронов, то он тоже пропорционален средней освещенности:
ii Ei
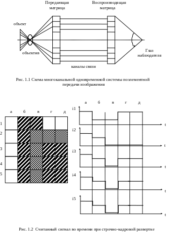
Если осуществляется поочередная выборка элементов электронного изображения (временная развертка), то получается сигнал изображения i(t), величина которого в каждый момент пропорциональна освещенности разворачиваемого элемента изображения.
Каким образом осуществить развертку изображения? В качестве примера рассмотрим механическую систему, позволяющую осуществить последовательное освещение фотокатода с помощью подвижной диафрагмы, равной по площади одному элементу изображения (диск Нипкова).
Диафрагмы в виде прозрачных отверстий в непрозрачном диске перемещаются в плоскости оптического изображения, а фоточувствительный элемент (один!) располагается за диском (рис. 1.5).
Отверстия в диске размещены по спирали так, чтобы была сплошная развертка (смещены по радиусу на свой диаметр). Диск Нипкова представляет собой оптический коммутатор. В телевизионной системе этого типа (в Москве, 1931 г.) было 30 строк (z=30), частота кадров – 12,5 Гц. Частота кадров равна ¼ частоты сети, что удобно для синхронизации. Полоса частот была малой, что позволяло передавать сигнал по радиовещательному каналу.
Второй способ осуществления временной развертки изображения – это перемещение электронного изображения относительно диафрагмы – ловушки по определенному закону. И в этом случае, как и системе с диском Нипкова, в образовании фототока принимает участие только та часть света от данного элемента изображения, которая в этот момент развертывается.
Если полный световой поток изображения Fo (отраженный световой поток от объекта), то средний поток одного элемента составит:
а средний ток электрического сигнала i = iср = E F`o = E
, где Е – чувствительность преобразователя
.
Если N = kz2, где k – формат кадра (k =
), z – число строк кадра, то
Такие системы называются системами мгновенного действия. Чувствительность этих систем обратно пропорциональна квадрату числа строк разложения, это их главный недостаток. Количество света (экспозиция)
, т.е. произведение светового потока на время его использования за время прохождения одного элемента изображения
В силу малости сигнала, представляют интерес способы его увеличения. Известны и используются два таких способа.
-
Если есть возможность, то можно использовать весь имеющийся в наличии световой поток для поочередного освещения деталей объекта, соответствующих отдельным элементам изображения. Это так называемые системы с бегущим лучом – например, при передаче изображений с кинопленки, в факсимильной связи. Весь необходимый для работы системы свет здесь сосредоточен в одном луче (т.е.
), который перемещается по носителю изображения в соответствии с законом развертки изображения. Это тоже система мгновенного действия. -
При невозможности освещения объекта световым бегущим лучом (что обычно и имеет место) используют накопление сигнала в течение всего кадра и последующего его полного считывания (использования) во время коммутации данного элемента. Из общих соображений ясно, что энергетически оба способа эквивалентны, хотя система с накоплением более универсальна.
1.4. Обобщенная структурная схема телевизионной системы
Телевизионная система (ТВС) – комплекс технических средств, обеспечивающих передачу визуальной информации путем ее прямого и обратного преобразования через электрические сигналы.
Обобщенные, обязательные для любой системы устройства и их функциональная взаимосвязь показаны на рис. 1.6. С помощью объектива формируется плоское оптическое изображение на фотокатоде преобразователя свет-электрический сигнал (ПСС). В ПСС лучистая энергия преобразуется в электрическую в ходе развертки изображения, так что на выходе ПСС получается временной сигнал, называемый исходным сигналом яркости Ec, мгновенные значения которого пропорциональны значениям яркости передаваемого в данный момент элемента изображения.
Сигнал с выхода ПСС усиливается, и в него вводятся дополнительные (служебные) импульсные сигналы, предназначенные для запирания обратного преобразователя сигнал-свет в перерывах между разверткой строк и кадров (сигналы гашения). Исходный сигнал вместе с сигналом гашения называется сигналом яркости.
Для обеспечения синхронности и синфазности используется принудительная синхронизация – 1 раз на период строки и 1 раз на период кадра с помощью специальных сигналов синхронизации, подмешиваемых в сигнал во время передачи гасящих импульсов. Строчные и кадровые синхроимпульсы больше по амплитуде, чем гасящие импульсы, поэтому они выделяются из полного телевизионного сигнала с помощью амплитудных селекторов. Между собой строчные и кадровые синхроимпульсы различаются по длительности. Сигнал, состоящий из сигналов яркости вместе с синхронизацией, называется полным телевизионным сигналом.
Полный ТВ сигнал далее поступает в канал связи. Это может быть кабельная, радиорелейная, вещательная, волноводная, спутниковая линия связи, удовлетворяющая требованиям неискаженной передачи ТВ сигнала. В канале связи сигнал может неоднократно подвергаться различным преобразованиям, но на выходе должен восстанавливаться исходный сигнал, который и поступает на усилитель-селектор. Усилитель обеспечивает уровень сигнала, необходимый для управления обратным преобразователем сигнал-свет. В селекторе выделяются синхронизирующие импульсы, которые подаются на управление разверткой ТВ-приемника (синтезатора изображения).
Качество ТВ изображения определяется параметрами и характеристиками ТВ системы. Воспроизведение мелких деталей и резких границ участков изображения с разной яркостью (контуров изображения) определяется в первую очередь количеством строк разложения, т.е. количеством элементов изображения. Слитность восприятия импульсных по своей природе сигналов яркости и плавность движений определяются количеством кадров в единицу времени. Число воспроизводимых градаций яркости зависит от динамического диапазона системы. Геометрическое подобие передаваемого и воспроизводимого изображений зависит от точности синхронизации, а также от дифференциального подобия разверток передающей и приемной сторон ТВ системы.
Таким образом, выбор параметров системы зависит от качества изображения. С другой стороны, повышение качества влечет за собой усложнение и удорожание системы. Поскольку вещательная ТВ система сделана для зрителя, получателя информации, то ее показатели должны быть компромиссом между приемлемым качеством и приемлемой стоимостью. Еще лучше, если есть выбор из нескольких возможностей, хотя этого в телевидении пока нет (в отличие от радиоприема, где качество звучания и приема в основном зависит от качества приемника, а в эфир «выпускается» сигнал очень высокого качества).
Для дальнейшего грамотного, осознанного рассмотрения телевизионных систем необходимо обратиться прежде всего к зрительной системе человека.
-
ОПТИЧЕСКОЕ ИЗОБРАЖЕНИЕ И ЕГО ВОСПРИЯТИЕ
-
Глаз человека
Глаз – один из сложнейших органов человека, «световое окно» в мозг. Глаз вместе с мозгом образуют зрительную систему, через которую поступает по разным оценкам от 70 до 90% всей информации из внешнего мира к человеку.
Блоки зрительной системы (рис. 2.1) охвачены прямыми и обратными связями, которые создают возможность адаптивной перестройки оптической системы и светочувствительного блока.
Оптическая система глаза показана на рис. 2.2.
Диаметр глаза составляет 25 мм. Зрачок может менять свой диаметр от 2 до 8 мм (адаптация), что позволяет приспосабливаться в широких пределах световых потоков.
Роговица образует переднюю камеру, которая заполнена влагой. Передняя камера и хрусталик образуют оптическую систему с аккомодацией, образующей действительное перевернутое изображение на сетчатке. Плотность хрусталика немного больше плотности воды. Хрусталик состоит из нескольких слоев и может менять свою форму (кривизну передней поверхности), так что меняется действующее фокусное расстояние глаза как оптической системы от 22,8 до 18,9 мм, т.е. глаз обладает способностью менять свою оптическую силу от 60 диоптрий при рассматривании удаленных объектов до 70 диоптрий (близкие предметы).
Сетчатая оболочка (ретина) – переплетение волокон зрительного нерва (8105 волокон), которые заканчиваются палочками и колбочками. Количество колбочек - 7106, палочек – 130106; те и другие объединяются в группы и узлы, а потом уже присоединяются к нервным волокнам. В палочках происходят фотохимические реакции на органическом пигменте – родопсине (зрительный пурпур), который поглощает кванты лучистой энергии и создает импульсы в нервном волокне. В темноте пурпур восстанавливается. В колбочках процесс фотохимии не совсем известен.
Абсолютный порог чувствительности глаза определяется палочковыми рецепторами (сумеречное, скотопическое зрение) – при больших углах зрения и длительном наблюдении в условиях почти полной темноты глаз чувствует энергию, эквивалентную 1 фотону на 5000 палочек в 1 сек. (1 фотон (=507нм)=3,9210-19Дж). В ряде случаев глаз регистрирует единичные фотоны («поющие электроны», черенковское излучение). Палочки расположены с уменьшением концентрации от зоны максимальной чувствительности (1,7105 1/мм2) к периферии и к центру. Зона максимальной чувствительности находится на расстоянии (10-12)0 от оси глаза.
Колбочки имеют диаметр 13 мкм. Это рецептор дневного (фотопического) зрения. Наиболее плотно они располагаются в центральном участке ретины – в желтом пятне, имеющем овальную форму. В центре желтого пятна есть углубление – центральная ямка (фовеа), диаметром 0,4 мм. В фовея есть только колбочки, и плотность их максимальна. Поэтому это место сетчатки образует наиболее чувствительную по остроте зону, там плотность 1,5105 колб/мм2.















