151288 (732971), страница 3
Текст из файла (страница 3)
Граничные условия на границе металл - оправка при нагреве.
Граничные условия в области раздела деформируемый металл - оправка задаются через плотность теплового потока с учетом теплоты, выделяемой при работе сил трения и температурного сопротивления слоя окалины:
; 228\* MERGEFORMAT (.)
,229\* MERGEFORMAT (.)
где
- плотность кондуктивного теплового потока в системе металл - окалина - заготовка;
- плотность кондуктивного теплового потока в системе металл - воздух - оправка;
- плотность лучистого теплового потока от металла к оправке в воздушном зазоре;
- коэффициент контакта, равный отношению площади контакта ко всей площади поверхности оправки в данном сечении и определяемый экспериментально (в нашем случае на I участке
, на II участке 0 <
< 1 (
), а на III и IV участках -
);
- плотность теплового потока за счет сил трения;
- коэффициент, учитывающий долю теплоты, поступающей на оправку
. 230\* MERGEFORMAT (.)
Граничные условия при охлаждении оправки (граничные условия третьего рода).
При расчете охлаждения оправки между прошивками применяются граничные условия третьего рода (используется температура окружающей среды
и коэффициент теплоотдачи
):
. 231\* MERGEFORMAT (.)
- плотность теплового потока с поверхности оправки при охлаждении, которая рассчитывается в зависимости от условий охлаждения. Например, при охлаждении на воздухе:
,232\* MERGEFORMAT (.)
где
- коэффициент теплоотдачи свободной конвекцией;
- температура поверхности оправки;
- температура охлаждающей среды (в данном случае воздуха).
При интенсивном охлаждении оправки
. 233\* MERGEFORMAT (.)
В этом случае
- коэффициент теплоотдачи при вынужденной конвекции от поверхности оправки к потоку охладителя. Расчет коэффициента теплоотдачи выполняется по известным критериальным зависимостям.
Граничные условия на четвертом участке.
Граничные условия вдоль оси Oz на четвертом участке задаются при допущении отсутствия теплообмена на этой границе:
. 234\* MERGEFORMAT (.)
2.2 Математическая формулировка задачи расчета температурного поля оправки
В общем виде уравнение теплопроводности записывается так:
,235\* MERGEFORMAT (.)
где
- температура,
- теплоемкость удельная массовая теплоемкость,
- коэффициент теплопроводности и
- плотность источников тепла.
Поскольку внутренних источников тепла нет, то уравнение записывается так:
. 236\* MERGEFORMAT (.)
Поскольку прошивная оправка представляет собой тело вращения, то удобно использовать цилиндрическую систему координат. На первом участке для повышения точности решения применена сферическая система координат. Уравнение теплопроводности для сферической системы координат (участок I):
. 237\* MERGEFORMAT (.)
Для цилиндрической системы координат (участки II, III и IV):
. 238\* MERGEFORMAT (.)
В уравнениях
- цилиндрические координаты;
- сферические координаты;
- температура;
- время;
- удельная объемная теплоемкость;
- плотность материала оправки;
- удельная массовая теплоемкость.
Для центра сферы уравнение теплопроводности записывается следующим образом:
. 239\* MERGEFORMAT (.)
Для оси центра:
. 240\* MERGEFORMAT (.)
Для выделения единственного решения дифференциального уравнения применяются описанные выше условия однозначности [3], [4].
3. Метод и алгоритм решения уравнений теплообмена
Equation Chapter (Next) Section 3
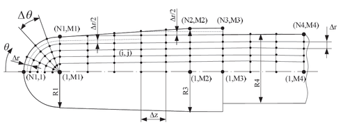
Для решения дифференциального уравнения теплопроводности (2.36) с соответствующими начальными и граничными условиями применяется метод конечных разностей. Конечно-разностная сетка изображена на рис.3.1 Каждый узел сетки нумеруется в виде
, где
- номер узла по направлению
для полусферы и цилиндра, a
- номер узла по направлению
для полусферы и по направлению
для цилиндра. Нумерация узлов начинается от центра сферы и оси цилиндра. Коническая поверхность оправки заменена ступенчатой, кратной шагу
. Дискретные моменты времени обычно нумеруются индексами:
- предыдущий, а
- последующий моменты времени. Номер предыдущей и последующей итерации обозначается верхними индексами
и
соответственно.
Для аппроксимации дифференциальных уравнений теплопроводности (2.37) - (2.40) применяется неявная консервативная итерационная разностная схема, реализуемая методом Гаусса-Зейделя. Суть этого метода заключается в том, что при расчете температуры
в узле
на
-й итерации используются температуры
и
из предыдущей итерации и вновь вычисленные температуры
и
на расчетной
-й итерации. Неявность разностной схемы достигается применением итерационной процедуры на каждом временном слое.
Рис.3.1 Конечно-разностная сетка, применяемая в численном методе конечных разностей при решении задачи теплопроводности оправки.
Конечно-разностные аналоги дифференциального уравнения теплопроводности для всех характерных участков оправки записываются так:
а) внутренние узлы сферы
:
31\* MERGEFORMAT (.)
б) внутренние узлы конической и цилиндрической частей оправки
:
32\* MERGEFORMAT (.)
в) температура в узлах, расположенных на поверхности сопряжения: полусфера - конус, рассчитывается следующим образом. Поскольку поверхность сопряжения одновременно принадлежит полусфере и конусу, то вторая производную по координатам
и
аппроксимируется по формулам, приведенным далее. Для полусферы принимается составляющая второй производной по углу
в сферических координатах, а для конической части - составляющая второй производной по
в цилиндрических координатах. Узлы, расположенные на поверхности сопряжения полусфера - конус, пронумерованы
. На поверхности сопряжения при использовании равномерной сетки уравнения записываются так:
33\* MERGEFORMAT (.)
г) узлы, расположенные на оси полусферы
34\* MERGEFORMAT (.)
д) узлы, расположенные на оси конической и цилиндрической частей оправки
35\* MERGEFORMAT (.)
При аппроксимации дифференциальных уравнений (2.39) и (2.40) конечно-разностными аналогами (3.3) и (3.4) учитывается, что в силу симметрии
и
. В вышеприведенных формулах (3.1) - (3.4) принимаются следующие обозначения:
; 36\* MERGEFORMAT (.)
; 37\* MERGEFORMAT (.)
; 38\* MERGEFORMAT (.)
; 39\* MERGEFORMAT (.)
,310\* MERGEFORMAT (.)
где
- шаг по координате
.
На поверхности оправки граничные условия II рода при нагреве (2.28) и охлаждении (2.31) аппроксимируются по трем приграничным узлам с учетом поглощения (выделения) теплоты в приграничном узле толщиной
:
,311\* MERGEFORMAT (.)
где
- плотность теплового потока, поступающего на оправку при прошивке или уходящего с нее при охлаждении. Из последнего уравнения получается формула для определения температуры поверхности оправки в узлах
:
. 312\* MERGEFORMAT (.)
Граничное условие (2.58) на торцевой границе стержня также аппроксимируется по значениям температуры в трех приграничных узлах сетки
,313\* MERGEFORMAT (.)
откуда получается
. 314\* MERGEFORMAT (.)
При расчете температуры в "центральной" точке сферы и усеченного конуса
возникают трудности, связанные с тем, что эта точка принадлежит одновременно центру полусферы и оси плоскости сопряжения полусфера - цилиндр. Температура в этой "центральной" точке определяется по балансу тепловой энергии в объеме, прилегающем к этой точке (рис.3.2):
,315\* MERGEFORMAT (.)
где
- удельная объемная теплоемкость;
- объем тела вращения ABDSA;
- тепловой поток, поступающий в выделенный объем
.
Рис.3.2 Пояснение к расчету температурного поля в центре сферического участка.
Тепловой поток равен
,316\* MERGEFORMAT (.)
где составляющие теплового баланса определяются по формулам
. 317\* MERGEFORMAT (.)
Объем тела вращения ABDSA (см. рис.3.2) рассчитывается по формуле
. 318\* MERGEFORMAT (.)
В общем случае все конечно-разностные уравнения приводятся к виду:
,319\* MERGEFORMAT (.)
где
- коэффициенты разностного уравнения,
- свободный член. Эти величины рассчитываются по формулам, приведенным в табл.3.1 и табл.3.2. Выражение для искомой температуры
из уравнения (3.19), записывается так:
. 320\* MERGEFORMAT (.)
Для увеличения скорости сходимости итерационного процесса на каждом временном слое в расчет вводится коэффициент верхней релаксации
. В этом случае:
. 321\* MERGEFORMAT (.)
Таблица 3.1 Коэффициенты конечно-разностных уравнений.
| Уравнения |
|
|
|
| (3.1) |
|
|
|
| (3.2) |
|
|
|
| (3.3) |
|
|
|
| (3.4) |
|
|
|
| (3.5) |
|
|
|
Таблица 3.2 Коэффициенты конечно-разностных уравнений.
| Уравнения |
|
|
|
| (3.1) |
|
|
|
| (3.2) |
|
|
|
| (3.3) |
|
|
|
| (3.4) |
|
|
|
| (3.5) |
|
|
|
Погрешность расчета температуры на первой
и последующих
итерациях равна:
; 322\* MERGEFORMAT (.)















