146839 (730305)
Текст из файла
С
ОДЕРЖАНИЕ
Введение 4
1. Разработка эскизного проекта конструкций контактора 5
1.1 Устройство и принцип работы контактора КПВ-604 5
1.2 Разработка кинематической схемы подвижной части
аппарата 6
2. Расчет и построение механических характеристик 9
2.1 Определение параметров контактов 9
2.2 Определение величины рабочего воздушного зазора 10
2.3 Расчет моментов сопротивления движению якоря в
характерных точках 11
2.4 Построение механической характеристики 12
3. Расчет основных параметров магнитной цепи 13
3.1 Определение значений магнитного потока 13
3.2 Расчет магнитной проводимости воздушного зазора для
различных положений якоря 13
3.3 Расчет МДС 14
3.4 Определение магнитной индукции и напряженности поля 15
3.5 Расчет характеристик магнитной цепи 16
4. Расчет электромагнитной катушки 17
4.1 Определение размеров катушки и параметров обмотки 17
4.2 Тепловой расчет обмотки 19
Вывод 21
Литература 22
ВВЕДЕНИ
Электрические аппараты имеют следующие конструктивные элементы: проводники – части цепи тока, обеспечивающие соединение отдельных частей аппаратов друг с другом; катушки – детали аппаратов, создающие магнитный поток; контакты – детали, обеспечивающие замыкание или размыкание электрических цепей; дугогасительные устройства – элементы аппаратов, осуществляющие гашение электрической дуги, возникающей между контактами при их размыкании; приводы – части аппаратов, осуществляющие рабочее перемещение подвижных деталей, т. е. срабатывание аппаратов.
В данном проекте разработана конструкция аппарата коммутации электрических цепей ПС ГЭТ. Для расчета был взят контактор – прототип КПВ-604.
1 . РАЗРАБОТКА Э
СКИЗНОГО ПРОЕКТА КОНСТРУКЦИЙ
КОНТАКТОРА
1.1 Устройство и принцип работы контактора КПВ-604
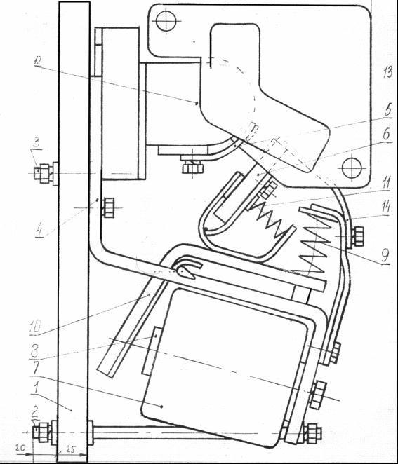
На рисунке 1.1 изображен контактор КПВ-604. Он имеет магнитопровод клапанного типа.
Рисунок 1.1 – Общий вид контактора КПВ-604
На рисунке 1.1 показано устройство и принцип работы контактора КПВ-604. Крепление к конта
кторной панели 1 производится при помощи болтов 2 и 3. Роль основного связующего элемента выполняет ярмо 4, к которому крепится неподвижный контакт 5 с дугогасящим устройством, а также система подвижного контакта 6 с электромагнитным приводом. При возбуждении катушки 7 ее сердечник 8 преодолевает сопротивление возвращающей пружины 9 и притягивает якорь 10, обеспечивая замыкание подвижного контакта с неподвижным. Держатель подвижного контакта обеспечивает возможность некоторого его поворота и скольжения относительно неподвижного контакта, благодаря чему при помощи пружины 11 достигается необходимое притирание. Размыкание контактов происходит при помощи возвращающей пружины после прекращения питания втягивающей катушки. Дугогасительное устройство состоит из дугогасительной катушки 12, дугогасительной камеры 13 и дугогасительных рогов 14.
1.2 РАЗРАБОТКА КИНЕМАТИЧЕСКОЙ СХЕМЫ ПОДВИЖНОЙ ЧАСТИ АППАРАТА
Вычерчиваем в масштабе упрощенную кинематическую схему контактора (рисунок 1.1).
Рисунок 1.2 – Кинематическая схема подвижной части контактораКПВ-604.
Размеры подвижной части контактора определяем из кинематической схемы.
l1=0,065м,
l2=0,13м,
l3=0,112м,
l4=0,092м,
l5=0,042м.
Расчетная схема контактора КПВ-604 представлена на рисунке 1.3.
Рисунок 1.3 – Расчетная схема контактора КПВ-604
2 . РАСЧЕТ И ПОСТРОЕНИЕ МЕХАНИЧЕСКИХ ХАРАКТЕРИСТИК
2.1 Определение параметров контактов
Сила нажатия в силовом контакте контактора определяется из условия
Pc = Ik/5 = 190/5 = 38 H.
Ширина контакта силовой части контактора выбирается исходя из выражения
, принимаем
,
b = Ik/15000 = 190/15000 = 0,0126 м.
Раствор контактов принимается в зависимости от максимального коммутируемого напряжения и условий работы (принимаем
м).
Размер катушки определяем по зависимости (принимаем dk= 0,085 м).
Длина катушки контактора может быть определена из соотношения
тогда
lk = 1,5dk = 1,5·0,085 = 0,1275 м.
, принимаем
,
hk = lk /5 = 0,1275 /5 = 0,0255 м.
С учётом необходимости изоляции обмотки от корпуса (принимаем hk=0,028 м).
Диаметр сердечника катушки к
онтактора dc, м, определяется по следующей формуле
dc = dk – 2hk =0,085 – 2·0,028 = 0,029 м.
Диаметр наконечника сердечника dн, м, определяется по следующей формуле
dн = dc+0,011=0,04 м.
Высота наконечника сердечника катушки hн= 0,006 м.
2.2 Определение величины рабочего воздушного зазора
Провал силового контакта контактора
, м, равен
м.
Воздушный зазор между якорем и наконечником сердечника
,м,
определяется из кинематической схемы контактора:
м.
Величина воздушного рабочего зазаора, соответствующая провалу
= 0,003 м.
Деформация возвращающей пружины
,
м, в характерных точках
м;
м.
Деформация притирающей пружины
, м, равна
м.
Принимаем предварительную затяжку пружин и их жёсткость.
Для возвращающей
пружины:
Принимаем С1= 500 Н/м
Для притирающей пружины:
Принимаем С2= 3000 Н/м
2.3 Расчет моментов сопротивления движению якоря в
характерных точках
Определим моменты сопротивления в характерных точках
Mb=P1·l3=7,6·0,112=0,85 H·м;
Mc=(P1+C1·c)·l3=(7,6+500·0,0172)·0,112=1,81 H·м;
Md= Mc +P2·l5·l2/l4=1,81+83·0,042·0,13/0,092=6,736 H·м;
Me=Md+C1·( -c)·l3+C2·n·l5·l2/l4=6,736 +
+500·(0,0224-0,0172)·0,112+3000·0,0027·0,042·0,13/0,092=7,51 H·м;
Определяем силы притяжения между якорем и сердечником катушки, необходимые для преодоления моментов сопротивления в характерных точках:
2.4 Построение механической характеристики
Механическую характеристику строим по значениям моментов в характерных точках, рассчитанных в
пункте 2.3 в зависимости от изменения рабочего воздушного зазора.
Рисунок 2.2 – механическая характеристика.
3 Расчет основных параметров магнитной цепи
3.1 Определение значений магнитного потока
Вычислим значения магнитного потока Ф, Вб, необходимого для реализации притяжения якоря к сердечнику в характерных точках, с помощью формулы Максвелла:
,
где
,
Тогда
,
3.2 Расчет магнитной проводимости воздушного зазора для различных положений якоря
Проводимость воздушного зазора G, В×с/А, для различных положений якоря
,
таким образом: Gb =
В×с/А,
Gd =
В×с/А.
3.3 Расчет МДС
Магнитодвижущая сила F, А, для проведения магнитопотока через воздушный зазор
Fi = Фi / Gi,
3.4 Определение магнитной индукции и напряженности поля
Сечение ярма контактора
fя = а·b,
где а – ширина ярма контактора, принимается из условия
(принимаем а = 0,08 м);
b – толщина ярма контактора, b = (0,005 – 0,015) м; (принимаем b = 0,0075 м);
fя = 0,08·0,0075 = 6·10-4 м2.
Сечение сердечника катушки контактора
fс = π·d2c / 4= 3,14·0,0292 /4 = 6,6·10-4 м2.
Магнитная индукция в ярме
Вiя = Фi / fя,
Вbя = 20,2·10-5 / 6·10-4 = 0,33 Тл,
Вся = 29,6·10-5 / 6·10-4 = 0,49 Тл,
Вdя = 57,1·
10-5 / 6·10-4 = 0,95 Тл,
Вeя = 60,4·10-5 / 6·10-4 = 1,01 Тл.
Индукция в сердечнике катушки
Вiс = Фi / fс,
Вbс = 20,2·10-5 / 6,6·10-4 = 0,30 Тл
Вcс = 29,6·10-5 / 6,6·10-4 = 0,45 Тл
Вdс = 57,1·10-5 / 6,6·10-4 = 0,86 Тл
Вeс = 60,4·10-5 / 6,6·10-4 = 0,92 Тл,
По справочнику [2] находим значения напряженности поля в ярме и сердечнике катушки для характерных точек:
Hbя = 150 А/м; Hся = 300 А/м; Hdя = 870 А/м; Hея = 980 А/м;
Hbc = 140 А/м; Hсс = 265 А/м;Hdc = 740 А/м; Hec = 830 А/м.
3.5 Расчет характеристик магнитной цепи
Длина средней силовой линии равна
-
в ярме контактора хя, м:
хя = 2·l1 + lk + hн+b = 2·0,065+0,1275+0,0075+0,006 = 0,271 м,
-
в сердечнике катушки контактора xc, м:
xc = lk + hн = 0,1275 + 0,006 = 0,1335 м.
Cуммарные намагничивающие силы ΣFb и ΣFd , А:
ΣFb = Fb+ Hbя· хя+Hbc·xc = 1929+150·0,271+140·0,1335=1990 А,
ΣFd =Fd+Hdя·хя+Hdc·x = 1300+870·0,271+740·0,1335=1635 А.
Для дальнейшего расчета катушки контактора принимаем наибольшую намагничивающую силу ΣF = 1990 А.
4 Расчет электромагнитной катушки
4.1 Определение размеров катушки и параметров обмотки
Принимаем рабочий ток катушки контактора IП = 0,25 А.
Число витков W катушки контактора
W = ΣF / IП = 1990 / 0,25 = 7960.
Диаметр провода катушки контактора dпр, м, определяется по формуле
dпр = 1,13
,
где Δ, А/мм2 – плотность тока в проводнике (для расчета принимаем: Δ = 4 А/мм2);
dпр = 1,13
= 0,2825 мм.
Согласно справочнику [2] принимаем диаметр провода катушки ближайший к стандартным значениям. В нашем случае dпр = 0,29 мм, а с учетом изоляции d`пр = 0,325 мм, Sпр=0,0661мм2.
Расчетное значение сечения окна S0, м2, определяется по формуле
S0 =
,
где fk – коэффициентзаполнения, для катущек электрических
аппаратов fk=0,4;
Характеристики
Тип файла документ
Документы такого типа открываются такими программами, как Microsoft Office Word на компьютерах Windows, Apple Pages на компьютерах Mac, Open Office - бесплатная альтернатива на различных платформах, в том числе Linux. Наиболее простым и современным решением будут Google документы, так как открываются онлайн без скачивания прямо в браузере на любой платформе. Существуют российские качественные аналоги, например от Яндекса.
Будьте внимательны на мобильных устройствах, так как там используются упрощённый функционал даже в официальном приложении от Microsoft, поэтому для просмотра скачивайте PDF-версию. А если нужно редактировать файл, то используйте оригинальный файл.
Файлы такого типа обычно разбиты на страницы, а текст может быть форматированным (жирный, курсив, выбор шрифта, таблицы и т.п.), а также в него можно добавлять изображения. Формат идеально подходит для рефератов, докладов и РПЗ курсовых проектов, которые необходимо распечатать. Кстати перед печатью также сохраняйте файл в PDF, так как принтер может начудить со шрифтами.
ОДЕРЖАНИЕ
, принимаем
,
b =
c =
d =
e =
огда Fb =
d =
10-5 / 6·10-4 = 0,95 Тл,















