146141 (729253), страница 5
Текст из файла (страница 5)
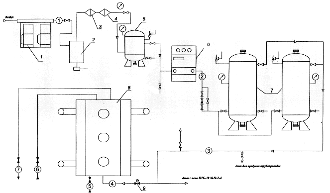
(95-96 % об., V-25мэ ,Р=4,5-5,5 кГс/см2) [2шт.].
8. Печь ПТБ-10 №1.
9
. Клапан с электроприводом
и дистанционным управлением
Технологические линии:
Воздух с компрессора. (Ду50)
Азот в ресиверы. (Д/25-50)
Азот из ресиверов в азотную
линию. (Ду 100-150)
Азот в печь ПТБ-10. (Ду 100-150)
Природный газ в печь ПТБ-10.
Вход нефти в печь ПТБ-10.
Выход нагретой нефти.
Позитивные особенности использования
установок азотного пожаротушения:
-
Разрешения и рекомендации ГПС МВД РФ и Госгортехнадзора РФ.
Применение азота для пожаротушения разрешено нормами пожарной безопасности Государственной противопожарной службы МВД РФ (НПБ-22-96; 54-96; 51-96).
Мембранные азотные установки рекомендованы Госгортехнадзором РФ к применению на нефтегазо- добывающих предприятиях. Исполнение узлов установки АПТ не требует регистрации органами Госгортехнадзора (ПБ-10-115-96).
-
Изменяет ли использование азота для тушения картину возникновения
причин пожара при проведении расследования?
Не изменяет абсолютно.
-
Возможность нанесения объекту тушения дополнительного ущерба в
процессе ликвидации пожара?
Отсутствует.
-
Экологическая чистота.
Отсутствуют вредные выбросы, твердые и жидкие отходы.
-
Обеспечение специальной безопасности для персонала.
Не требуется применения специальных средств защиты персонала при работе
установки.
-
Уровень квалификации персонала для допуска к эксплуатации установки.
Обычные требования допуска к работе на нефтегазодобывающем предприятии,
обучение персонала производится в ходе пуско-наладки установки на площадке
Заказчика.
-
Простота эксплуатации.
Не требуется постоянное присутствие оператора, отсутствуют движущиеся части
и механизмы (кроме компрессоров).
-
Возможность автоматизации.
Установка АГТТ обеспечена типовыми приборами автоматизации, сигнализации
и контроля. Режим работы установки поддерживается автоматически.
-
Возможность увеличения производительности установки АПТ по азоту.
Достигается простым увеличением числа аппаратов и легко модернизи-
руется на действующей установке.
VIII. Извлечения из « Правил пожарной безопасности
в нефтяной промышленности (ППБО-85) » ( глава 7)
7.5.7. Установки с огневым подогревом
(трубчатые печи, блочные огневые нагреватели)
7.5.7.1. Площадка перед форсунками должна иметь твердое покрытие и уклон в сторону лотка, соединенного с промышленной канализацией через гидравлический затвор.
Для смыва пролившегося жидкого топлива должен быть устроен водопроводный стояк.
7.5.7.2. Пуск печей может быть разрешен только лицом, ответственным за эксплуатацию.
7.5.7.3. Система, подводящая газ к горелкам, должна быть испытана в соответствии с Правилами безопасности в газовом хозяйстве.
7.5.7.4. Запрещается при разжигании форсунок факелом пропитывать его ЛВЖ.
Тушить факел, используемый для растопки, следует в несгораемом ящике или в ведре с сухим песком.
7.5.7.5. На топливном трубопроводе должны быть установлены задвижка (на расстоянии не менее 10 м от фронта форсунок), позволяющая одновременно прекратить подачу топлива ко всем форсункам; редуцирующее устройство, отрегулированное на давление необходимое для горения горелок, а также конденсатосборник предупреждения попадания конденсата в систему автоматики, КИП и горелки.
Аварийная сигнализация автоматических устройств должна выведена в операторную.
7.5.7.6. Если установка не работает, топливный газопровод необходимо герметически отключить от печи и поставить заглушку. При отключении газопровода от печи нельзя открывать продувочные свечи, прежде чем будут надежно закрыты задвижки на всех горелках. Задвижки на продувочной свече должны быть открыты полностью.
7.5.7.7. Стационарная система паротушения печей всегда должна быть в исправном состоянии. Работа печи с неисправной системе паротушения не разрешается.
Коллектор пожаротушения должен быть расположен в удобном для подхода месте и окрашен в красный цвет.
7.5.7.8. Запрещается зажигать потухшие горелки печи от раскаленных панелей или кладки топки печи.
7.5.7.9. Запрещается разжигать горелки без предварительной продувки топки печи паром. Продувочные свечи обвязки печей должны быть выведены в безопасное место по согласованию с органами пожарного надзора.
Газопроводы, идущие к форсункам (горелкам), должны быть оборудованы продувочной линией с выбросом газа в факельную линию.
7.5.7.10. Устройства, предназначенные на случай аварии или пожара для слива нефти, должны быть исправными. Задвижки линий аварийного слива должны иметь опознавательные знаки, а подступы к ним должны быть свободными.
Аварийный слив можно производить только по указанию начальника цеха, установки или ответственного руководителя работ по ликвидации аварии (пожара). Последовательность операций при осуществлении аварийного слива должна предусматриваться инструкцией.
7.5.7.11. Из аварийной емкости перед началом спуска в нее из печи горячей жидкости необходимо тщательно удалить остатки воды и обводненного продукта. До начала спуска жидкости в аварийную емкость должен быть подан водяной пар, предварительно освобожденный от конденсата. Включать устройства пожаротушения следует дистанционно.
7.5.7.12. При возникновении пожара у фронта форсунок печей, в камерах двойников, при горении сажи в борове и дымовой трубе, необходимо пустить пар через линии паротушения и вызвать пожарную охрану.
7.5.7.13. Во время эксплуатации трубчатой печи должен быть обеспечен контроль за состоянием ее труб (во избежание прогара их). Работа печи при отдушинах и свищах в трубах, а также при превышении допустимых пределов износа труб запрещается.
7.5.7.14. Запрещается эксплуатация трубчатых печей с неисправными двойниками, пропускающими нефть, а также открытие дверок камер двойников во время работы печи.
7.5.7.15. Не допускается эксплуатация паропроводов для подачи пара в змеевик печи и другие аппараты при отсутствии устройств, обеспечивающих предварительный спуск конденсата из паропровода.
7.5.7.16. Нагреватели печи должны быть снабжены сигнализацией, срабатывающей при прекращении подачи жидкого или газообразного топлива к горелкам (форсункам) или снижении давления ниже установленных норм.
7.5.7.17. На печах следует устанавливать сигнализаторы погасания пламени, автоматические устройства, прекращающие подачу топлива к форсункам (горелкам) при их погасании, сигнализацию предельно допустимой температуры на перевале печи.
Приложение 1.
Пожаровзрывоопасные свойства нефтей
таблица №1
Нефть | Температура, °С | Нижн. конц. предел распр. плам. распр. | Темп. предел распр. пламени,°С | БЭМЗ, мм | ||
| вспыш. | воспл. | % (об.) | нижн. | верхн. | ||
Азизбековская
Бавлинская
Байтуганская
Балаханская сырая
тяжелая
Барсагельмесская (гельмесская)
Биби-эйбатская:
легкая
тяжелая
Бинагадинская сырая
Бурунская
Верхозимская
Дагаджикская
Девонская с
наливной эстакады
Западно-сургутская
Зимницкая
Зольнинская сырая
Каменноложская
Кара-арнанская
Кара-дагская
Кара-чухурская
Карловосытовская
Качановская
Киенгопская
Комаровская
Коробковская (угленосного горизонта)
Котур-тепинская
(центрального участка) Кудиновская
Куединовская
Кумдагская (восточного
и западного участков) Лебяженская
Лудошурская
Мегионская
Мишкинская
Мухановская
Ново-аманакская
Ново-елоховская
Новозапруднйнская и
алакаевская
Окаремская
Ольховская
| — 7 | 237 | 1,4 | — — 0,96 |
| -25 | 240 | 1,1 | — — 0,97 |
| 6 | — | — | —— __ __ |
| 23 | 310 | — | 23 50 - |
| 12 | 239 | 1,4 | — — 0,96 |
| 5 | 260 | 2 26 — | |
| 27 | 310 | — | 26 57 — |
| 18 | 300 | — | 12 39 — |
| —8 | 252 | 1,7 | — — 0,93 |
| 25 | — | — | — — — |
| <-17 | 243 | 1,3 | — — 0,97 |
| <-17 | 226 | 1,2 | — — 0,93 |
| -18 | 233 | 1,1 | — — 0,97 |
| 27 | — | — | —— __ __ |
| -35 | — | — | -35 -14 — |
| —7 | 233 | 1,2 | — — 0,96 |
| 130 | —— | _ | __ __ __ |
| — 21 | 320 | — | -21 19 — |
| 34 | 290 | — | 31 80 — |
| <-21 | 231 | 1,2 | — — 0,97 |
| <— 22 | 235 | — | — — 0,95 |
| 19 | — | — | — — — |
| 22 | — | _ | _ _ _ |
| -15 | 235 | 1,1 | — — 0,97 |
| -3 | 250 | 2,1 | — — 0,98 |
| <-17 | 233 | 1,3 | — — 0,97 |
| <— 29 | 232 | 1,3 | — — 0,97 |
| 18 | 237 | 2,4 | — — 0,96 |
| <-21 | 225 | 1,2 | — — 0,93 |
| 23 | — | — | — — — |
| — 18 | 227 | 1,1 | — — 0,97 |
| 22 | — | — | —— __ __ |
| <-15 | 231 | 0,9 | — — 0,96 |
| -16 | 227 | 1,3 | — — 0,98 |
| -23 | 224 | 0,9 | — — 0,96 |
| <— 20 | 231 | 1,2 | — — 0,97 |
| 5 | 290 | 2,2 | — — 0,94 |
| <-28 | 223 | 1,3 | — — 0,95 |













