krim01 (695964), страница 3
Текст из файла (страница 3)
5) Копия со следа обуви___________________________________________________________
6) Копии следов рук (2 шт.)_______________________________________________________
7) Окурки сигарет (2 шт.)_________________________________________________________
При осмотре производилось фотографирование фотоаппаратом Зенит ТТL L
с объективом _ «Индустар-61» ____________________________________ на пленку
чувствительностью 65 ___________________ единиц ГОСТ с применением фото-
вспышки _«Фил-11 М» _____________________________. Измерения производились _____________рулеткой, линейкой, микрометром _
(чем производились)
П
ротокол прочитан всем участникам осмотра следователем. От участников осмотра по поводу порядка производства осмотра, содержания протокола поступили следующие замечания:
-
.
-
.
Никаких замечаний не поступило. В протоколе все записано правильно.
Следователь
_Зареченского РОВД, г. Тулы _
(наименование органа)
_Следователь_______________ Иванов _Иванов______
(должность) (подпись) (фамилия)
Специалист Андреев _Андреев_____
(подпись) (фамилия)
Понятые Белоусова _Белоусова___
(подпись) (фамилия)
Федоров _Федоров_____
(подпись) (фамилия)
Подозреваемый _______________ _____________
(подпись) (фамилия)
Иные участники Троицкий _Троицкий____
осмотра (подпись) (фамилия)
_______________ _____________
(подпись) (фамилия)
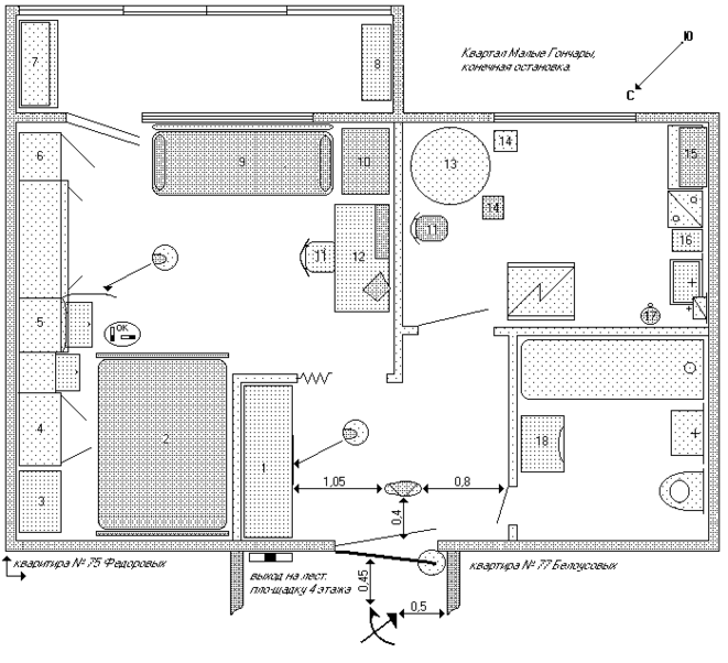
3-а. Схематический план.
СХЕМА
Квартиры № 76, расположенной на четвертом этаже дома № 11, Квартал Малые Гончары (г. Тула), принадлежащей гр. Троицкому Геннадию Владимировичу.
Приложение к протоколу осмотра места происшествия от 10 сентября 2001 года. Дело № ____________.
ОБОЗНАЧЕНИЯ
Следователь: | 1.шкаф | 10.тумбочка |
| Иванов _ | 2.кровать | 11.стулья |
| 3.стол | 12.письменный стол | |
| Понятые: | 4.платяной шкаф | 13.обеденный стол |
| Белоусова _ | 5.бар | 14.табуретки |
| | 6.пенал | 15.навесной шкаф |
| _______________ | 7.буфет | 16.кухонный пенал |
| _ | 8.книжный шкаф | 17.мусорное ведро |
| ----------------------- | 9.диван-кровать | 18.стиральная машина |
ЗАДАНИЕ №2.
1. Возбуждение уголовного дела.
Уголовное дело должно быть возбуждено по статье 105 УК РФ, поскольку налицо признаки умышленного убийства. Диспозиция части 1 данной статьи гласит: «Убийство, то есть умышленное причинение смерти другому человеку, - наказывается лишением свободы на срок от шести до пятнадцати лет». В дальнейшем, при обнаружении квалифицирующих признаков, перечисленных в части 2 ст. 105 формулировка может быть уточнена более детально. 1
Убийство, т.е. умышленное причинение смерти другому человеку (ст. 105-108 УК РФ), является тяжелым преступлением против личности. Поводом для возбуждения уголовного дела стало заявление заместителя директора школы Петренко. Основанием является обнаружение на территории средней общеобразовательной школы 21 сентября 199… в 7 часов 30 мин автомашины ГАЗ-51 МАК 66-14, в кузове которой находился труп мужчины с признаками насильственной смерти.
2. Обстоятельства, подлежащие доказыванию.
Согласно статье 68 УПК РСФСР, подлежат доказыванию по уголовному делу следующие обстоятельства:
1) событие преступления (время, место, способ и другие обстоятельства совершения преступления);
2) виновность обвиняемого в совершении преступления и мотивы преступления;
3) обстоятельства, влияющие на степень и характер ответственности обвиняемого, указанные в статьях 61 и 63 Уголовного кодекса Российской Федерации, а также иные обстоятельства, характеризующие личность обвиняемого;
4) характер и размер ущерба, причиненного преступлением.
Подлежат выявлению также причины и условия, способствовавшие совершению преступления.1
При расследовании убийства в данном случае подлежат доказыванию следующие обстоятельства:
-
имело ли место убийство;
-
когда, где и при каких обстоятельствах было совершено преступление;
-
кто совершил убийство; не совершено ли оно группой лиц, если да – какова степень участия в преступлении каждого из них; как характеризуется преступник; имеются ли обстоятельства, отягчающие или смягчающие ответственность обвиняемого;
-
кто является потерпевшим; как характеризуется потерпевший;
-
каковы характер и размер ущерба, причиненного преступлением (в частности, при убийстве с ограблением, при убийстве единственного кормильца семьи и т.д.);
-
если налицо умышленное убийство (кроме убийства с превышением пределов необходимой обороны или совершенного в состоянии сильного душевного волнения), имело ли место заранее обещанное укрывательство;
-
какие обстоятельства способствовали совершению преступления.
3-а. Общий план расследования.
В нашем случае неясны мотивы убийства, поэтому первоначальные следственные действия вытекают непосредственно из сложившихся обстоятельств.
-
В первую очередь произведем тщательный осмотр места нахождения трупа, т.е. автомашины, с целью обнаружения следов, оставленных преступником или преступниками, следы борьбы, орудия преступления и другие вещественные доказательства, их обнаружение, фиксация и изъятие, с последующим направлением на экспертизы.
-
Произведем безотлагательно допрос заместителя директора школы Петренко, первым обнаружившего автомашину и гр. Стоцкого, видевшего автомашину в 4 часа утра из своей комнаты. В ходе допроса составим протокол, в котором подробно опишем все следственные действия, зафиксируем показания осведомленных лиц. Протокол подписывается всеми участниками осмотра с указанием даты и времени осмотра.
-
Осмотр места происшествия производится в присутствии судебно-медицинского эксперта, а при его отсутствии – иного врача. Эксперт выявляет все повреждения на трупе, посмертные явления (температура, окоченение), загрязнения; разжимает и осматривает ладони, берет соскобы из-под ногтей, образцы грязи с обуви. Производятся также другие необходимые виды осмотра трупа. Затем труп оправляют на судебно-медицинскую экспертизу для разрешения следующих вопросов:
а) какова причина смерти;
б) когда наступила смерть;
в) какие повреждения имеются на трупе, каков их характер, расположение и механизм образования, каким орудием причинены повреждения, каковы последовательность и время их нанесения;
г) наступила ли смерть сразу после причинения повреждений или через определенный промежуток времени;
д) в каком положении находился потерпевший в момент нанесения ему повреждений;
е) способен ли был потерпевший после причинения ему телесных повреждений совершать какие-либо самостоятельные действия;
ё) не изменялась ли поза трупа;
ж) какова группа крови потерпевшего;
з) принимал ли потерпевший незадолго до смерти алкоголь, наркотики.
-
По адресу проживания потерпевшего Голутвина Виктора Ивановича необходимо расспросить соседей, взять показания у сожительницы А.И. Ионовой. Следует внести в протокол ответы на следующие вопросы:
-
не враждовал ли убитый с кем-либо?
-
не высказывал ли угроз в чей-либо адрес?
-
не опасался ли мести?
-
каков был его образ жизни, а также поведение, особенно незадолго до гибели?
-
выяснить, где находилась и чем была занята Ионова А.И. в предполагаемое время убийства; при допросе установить связи погибшего, гражданки Ионовой.
-
На левой бортовой скамейке были найдены два скомканных, грязных листа бумаги с типографским текстом, прочесть который трудно. Эти вещественные доказательства должны быть незамедлительно направлены на криминалистическое исследование документов.
-
Произвести и внести в протокол допрос водителя Шишкова П.С., работника ЖЭКа Перовского района, с выяснением следующих вопросов:
-
Знал ли Шишков потерпевшего?
-
где находился Шишков в предполагаемое время убийства?;
-
кто еще знал код наборного замка?;
-
каким образом вверенная ему автомашина очутилась во дворе школы?
-
Необходимо снять отпечатки пальцев рук для дактилоскопического исследования; получить характеристику с места работы.
-
Носовой платок, выпачканный веществом оранжевого цвета, обнаруженный в кармане одежды – отправить на криминалистическое исследование, чтобы выяснить, что это за вещество.
-
Выяснить, принадлежат ли два билета в летний сад «Эрмитаж» на 10 сентября 199… г. потерпевшему Голутвину и связанные с этим обстоятельства.
-
На правой бортовой скамейке обнаружены несколько седых волос и 2 пятна бурого цвета, похожие на кровь. В ходе криминалистической экспертизы необходимо выяснить следующее:
-
принадлежат ли волосы человеку, вырваны они или выпали, принадлежат ли они мужчине или женщине, сходны ли они с волосами потерпевшего;
-
являются ли обнаруженные пятна кровью человека, какова группа, тип и другие особенности крови, какова давность образования следов.
-
-
Следует выяснить, где находится обувь и носок желтого цвета, принадлежавшие убитому Голутвину В.И.
-
Попытаться определить по следам шин автомашины направление ее движения (откуда она прибыла во двор школы).
3-б.Форма общего плана расследования.
План расследования
по уголовному делу № _3501__ по обвинению в умышленном убийстве__
по статье 105 УК РФ
| Следственные версии | Следственные действия и другие мероприятия, подлежащие проведению (по каждой версии) | Сроки проведения | Исполнители Ф.И.О. | Отметка об исполнении |
| Общая версия – имело место убийство | 1) Осмотр места обнаружения трупа 2) Допрос Петренко, Стоцкого, Шишкова, Ионовой | 21сентября 199… г. | исполнено 21.09. | |
| Мотив убийства – 1) корыстная заинтересованность; 2) убийство в ссоре. |
Выяснить: а) не враждовал ли убитый с кем-либо? б) не высказывал ли угроз в чей-либо адрес? в) не опасался ли мести? г) каковы были его образ жизни и поведение? д) где находилась и чем была занята гр-ка Ионова в предполагаемое время убийства? е) установить связи погибшего, Ионовой | 21 сентября 199… г. |
| |
| Место убийства - 1) квартира Ионовой; 2) иное место | 1) Допрос Стоцкого, Шишкова, Ионовой; 2) Обыск квартиры Ионовой (при наличии санкции). | 21-22 сентября 199… г. | 1)исполнено 21.09. 2)исполнено 22.09. |
Старший следователь прокуратуры Перовского р-на г. _ Санкт-Петербурга_________
Федоров _
______________














