148044 (692173)
Текст из файла
Министерство транспорта Российской Федерации
Федеральное агентство железнодорожного транспорта
Самарский Государственный университет путей сообщения
Кафедра «Безопасность перевозок пассажиров и грузов»
Курсовая работа по дисциплине: « Автотормоза»
на тему: Ремонт автоматического регулятора
Разработал:
студент 561 гр. Дзюба О.В.
Проверил:
Киселев Г.Г.
Самара 2010
Реферат
В данном курсовом проекте рассмотрен и описан процесс ремонта и испытания автоматического регулятора ТРП. Он состоит из пояснительной записки и графической части.
В пояснительной записке затронуты такие вопросы, как: характеристика и описание автоматического регулятора, их основные неисправности, АКП, требования охраны и техники безопасности при ремонте тормозного оборудования. В целом пояснительная записка состоит из 29 листов, 1 таблицы, 5 рисунков.
Графическая часть состоит из 3-х листов: формата А1 и А2, на которых изображены карта неисправностей авторегулятора, схема АКП и карта технологического процесса авторегулятора.
В конце данной работы, для более полного и подробного изучения авторегуляторов, представлен список использованных источников.
Содержание
Введение
-
Контрольный пункт автотормозов (АКП) и автоматные цеха
-
Краткое описание конструкции ремонта автоматического регулятора ТРП №574Б, условия работы и ремонта
-
Разработка карты неисправностей
-
Разработка карты технологического процесса
-
Требования техники безопасности и охрана труда
5.1 Общие положения
5.2 Требования к технологическому оборудованию
5.3 Требования к инструментам и приспособлениям
5.4 Требования организации рабочего места
5.5 Требования при ремонте ТРП
5.6 Требования к персоналу и применению средств индивидуальной защиты
Заключение
Библиографический список
ВВЕДЕНИЕ
Исходя из реальных условий эксплуатации тормозных приборов принята планово - предупредительная система их ремонта. Цель этой системы устранить естественные износы трущихся пар, предупредить возможность отказов приборов в работе и обеспечить безотказную их работу в эксплуатации в течение установленного срока.
Установлены следующие виды ремонта и осмотра тормозного оборудования вагонов: заводской, деповской, ревизия и текущий.
Заводской и деповской ремонты тормозов выполняют на вагоноремонтных заводах и в вагонных депо при соответствующих видах ремонта вагонов. При этих видах ремонта снимают с вагона воздухораспределители, электровоздухораспределители, авторежимы, авторегуляторы, концевые и разобщительные краны, краны экстренного торможения, соединительные рукава, выпускные клапаны и направляют в контрольный пункт автотормозов (АКП) или тормозное отделение завода для осмотра, ремонта и испытания. Взамен снятых приборов устанавливают исправные из оборотного запаса.
Тормозные цилиндры, все воздушные резервуары и воздухопровод осматривают, ремонтируют и испытывают при деповском ремонте без снятия с вагонов, а при заводском – со снятием.
Цилиндры разбивают, очищают, их детали осматривают и обмеряют. После устранения неисправностей рабочие поверхности корпуса цилиндра, манжету, войлочное кольцо поршня и сальник смазывают тормозной смазкой, а также производят сборку.
Рычажную тормозную передачу разбирают, все детали тщательно осматривают и обмеряют для определения величины износов и выявления дефектов. Негодные детали ремонтируют или заменяют. Неисправные предохранительные устройства восстанавливают до альбомных размеров. Для повышения эксплуатационной надежности предохранительные скобы ставят на резиновых прокладках, а на длинные тормозные тяги устанавливают ограничители вибрации – дополнительные скобы с резиновыми и деревянными прокладками. Автоматические регуляторы выхода штока тормозного цилиндра ремонтируют с проверкой действия на специальном стенде.
При заводском ремонте запасные и рабочие ревервуары очищают и подвергают гидравлическому испытанию. После выполнения наносят трафарет с указанием даты и ремонтного пункта.
Ревизия тормозного оборудования выполняется через каждые шесть месяцев при отцепочном ремонте вагонов и на пунктах отстоя. При ревизии осматривают и проверяют: тормозные цилиндры, рычажную передачу, предохранительные устройства, прочность крепления тормозных цилиндров, резервуаров, скоб, воздухопровода, соединительных рукавов и их подвесок. Изношенные тормозные колодки заменяют. Воздухораспределители без бирок и с неявными клеммами на бирках заменяют.
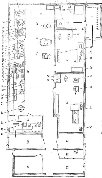
1. КОНТРОЛЬНЫЕ ПУНКТЫ АВТОТОРМОЗОВ И АВТОМАТНЫЕ ЦЕХИ
Ремонт пневматического оборудования тормозов подвижного состава производится в автоматных цехах или отделениях депо, заводов и контрольных пунктах автотормозов (АКП) (рис.1).
АКП организуют в депо, ремонтирующих грузовые и пассажирские вагоны, а также на вагоноремонтных заводах. АКП специализируют на ремонте тормозного оборудования либо грузовых, либо пассажирских вагонов, а отдельных случаях – грузовых и пассажирских вагонов.
Имеющаяся на АКП компрессорная установка (станция), кроме обеспечения своих потребностей, снабжает сжатым воздухом пункты технического обслуживания вагонов, а также других потребителей узла.
В АКП имеются отделения наружной очистки, разборки тормозных приборов, ремонта воздухораспределителей и авторежимов, авторегуляторов, тормозной арматуры и междувагонных соединений, поршневых узлов тормозных цилиндров, механическое отделение, а также кладовая и при необходимости – служебно-бытовые помещения. Суточная программа ремонта для типового АКП (рис.1) составляет около 100 воздухораспределителей.
Тормозное оборудование в АКП ремонтируют в соответствии с типовым технологическим процессом, технологическими картами, техническими нормами и требованиями инструкций.
Тормозные приборы очищают и обмывают в специальной машине с использованием моющего раствора, подогретого до температуры 70-800С, после чего приборы разбирают и комплектно укладывают в специальные поддоны или корзины из проволочной сетки и направляют в машину для вторичной обмывки. Затем тормозные приборы направляют в ремонтное отделение, оборудованное конвейерным транспортером и стойками с оснасткой для ремонта и испытания подкомплектов магистральных и главных частей воздухораспределителей, авторежима. Ремонтные позиции размещены последовательно вдоль потока с расчётом, чтобы с любой из них было удобно брать перемещающиеся по конвейеру узлы. Здесь же установлены специальные станки для притирки и полгонки уплотнительных металлических колец, гидравлические и пневматические прессы, устройство для проверки пружин тормозных приборов, стеллажи и шкафы для инструмента. На рабочих местах вывешивают выписки из действующих правил и технологических процессов ремонта соответствующих узлов.
При поточно-узловом методе ремонта неисправные части заменяются новыми или заранее отремонтированными при строгом соблюдении очередности и максимальной параллельности ремонтных операций.
Все воздухораспределители и авторежимы после ремонта обязательно испытывают на стендах в специально оборудованном отделении, расположенном рядом с отделением ремонта.
Для испытания воздухораспределителей применяют двухпозиционные стенды с электропневматическим управлением, которые обеспечивают быстроту, высокое качество и точность выполнения операций в соответствии с установленными нормами и правилами.
Приёмку тормозных приборов при испытании на стендах производит бригадир или мастер АКП.
На принятом после испытания тормозном приборе ставят пломбу и бирку, на которой ставят клеймо-дату ремонта и условный номер АКП. При этом номер отремонтированного прибора и результаты испытаний записывают в специальный журнал с подписью работников, сдавших и принявших тормозной прибор.
На привалочные фланцы принятых и опломбированных приборов устанавливают предохранительные щитки (резиновые, пластмассовые, картонные) и сдают в кладовую. Авторегуляторы рычажных передач ремонтируют в отделении, находящемся, как правило, рядом с отделением наружной обмывки. После обмывки их разбирают, очищают от грязи внутренние полости и поверхности деталей регулировочного механизма, а затем ремонтируют и испытывают с применением типовой оснастки. На принятом после испытания авторегуляторе, так же как и на тормозном приборе, закрепляют бирку с клеймами.
Концевые, разобщительные краны и краны экстренного торможения ремонтируют в отделении тормозной арматуры. Вдоль поточной линии установлены типовые столы – верстаки с приспособлениями и оснасткой для разборки, ремонта и испытания. На рабочих местах расположены выписки из правил и технологического процесса выполнения операций.
Отделение ремонта соединительных рукавов оснащено приспособлениями для очистки, ремонта и испытания. Неисправный рукав раскомплектовывают, негодные элементы заменяют исправными. Соединительные головки, хомутки, резинотканевые трубки, снятые головки и штуцера очищают, проверяют контрольными шаблонами, ремонтируют и передают для комплектования новых рукавов на специальных стендах. Перед гидравлическим и пневматическим испытаниями скомплектованный рукав выдерживают не менее 24 часов для высыхания резинового клея, которым смазывают наконечники головки и штуцера. После испытания на соединительных рукавах закрепляют бирки с клеймами.
Тормозное оборудование пассажирских вагонов отличается от оборудования грузовых в основном конструкцией воздухораспределителей, а также применением электропневматической системы управления. Пневматическое и электропневматическое оборудование пассажирских вагонов ремонтируют также в АКП.
Все тормозное оборудование, отремонтированное и испытанное в АКП, должно быть зафиксировано в журнале формы ВУ-47.
Хранение отремонтированного и испытанного тормозного оборудования необходимо производить на специальных стеллажах и в кладовой готовой продукции
Экспликация
/ — отделение для наружной очистки; // — отделение для разборки и очистки; /// — место для осмотра и определения объема ремонта; IV — отделение для ремонта приборов; V — отделение для ремонта арматуры; VI — механическое отделение; VII — отделение для контроля и испытания приборов; VIII — кладовая; IX — гальваническое отделение; X — контора мастера; XI — котельная; XII — бытовая комната
2. КРАТКОЕ ОПИСАНИЕ КОНСТРУКЦИИ АВТОРЕГУЛЯТОРА ТРП №574Б, УСЛОВИЯ РАБОТЫ И РЕМОНТА
Все грузовые вагоны, построенные с 1974 г. оборудованы автоматическими регуляторами одностороннего действия № 574Б (рис.2), предназначенными для стягивания рычажной передачи и компенсации износа тормозных колодок. Применение регуляторов позволяет устранить ручную регулировку рычажных передач и поддерживать выход штока ТЦ в установленных пределах. Тем самым обеспечивается правильное взаимное расположение рычагов и тяг, достигается стабильность коэффициента полезного действия рычажной передачи и высокая тормозная эффективность. Наибольшее передаваемое через регулятор усилие составляет 80 кН.
Автоматический регулятор состоит из корпуса 14 с крышкой 16 и головкой 3, защитной трубы 2 с наконечником, возвращающей пружины 13, тягового стакана 7 со стопорным кольцом 12 и крышкой стакана 4, тягового стержня 17 с ушком 19, регулирующей 8 и вспомогательной 5 гаек с упорными подшипниками 9, пружинами 6 и 11 и втулкой 10, а также регулирующего винта 1 с несамотормозящейся трехзаходной трапециедальной резьбой и предохранительной гайкой 15.
При нормальных зазорах между колодками и колесами в процессе торможения упор 18 приближается к корпусу регулятора, но не достигает его или только соприкасается с ним. Усилие от тягового стержня передается на тяговый стакан 7, который входит в сцепление с регулирующей гайкой 8 и через нее на регулирующий винт 1 и в рычажную передачу.
Если зазоры между колодками и колесами увеличены, то при торможении упором 18 корпус 14 регулятора перемещается влево по отношению к винту 1, сжимая возвращающую пружину 13 и освобождая из закрепления вспомогательную гайку 5. Последняя под действием пружины 6 навернется на винт 1, достигая левым торцом конусной поверхности головки 3. Если перемещение корпуса 14 по отношению к винту 1 произошло на величину более 8—11 мм, то вспомогательная гайка 5 выступом упрется в крышку 4 тягового стакана 7, не достигая поверхности головки 3. Усилие от штока тормозного цилиндра передается в рычажную передачу так же, как и при нормальных зазорах между колодками и колесами.
При отпуске, когда усилие ТЦ окажется меньше разности между усилием сжатия возвращающей пружины 13 и пружины регулирующей гайки (около 1,0 кН), тяговый стержень 17 вместе с тяговым стаканом 7 начнут перемещаться влево по отношению к корпусу 14. Конусные поверхности тягового стакана 7 и регулирующей гайки 8 размыкаются, и последняя за счет пружины 11 навернется на винт 1 до упора в правый торец вспомогательной гайки 5. После этого все детали регулятора займут исходное положение, а винт 1 будет перемещен внутрь тягового стержня 17 на величину, соответствующую износу колодок, или максимум на 8—11 мм. Если за одно торможение это значение будет превышено, то необходимое сокращение рычажной передачи произойдет за несколько последующих циклов торможения-отпуска. Стягивание рычажной передачи на 8—11 мм соответствует износу колодок грузового вагона в 0,5—0,7 мм. Полный рабочий ход регулятора составляет 550 мм.
При установке регулятора № 574Б на грузовом вагоне используется рычажный привод, который передает ему при торможении запас энергии, вызывающей сжатие пружин и необходимо для стягивания рычажной передачи. После установки на вагоне всех новых тормозных колодок размер а (от контрольной риски на стержне г до конца защитной трубы д) для регулятора № 574Б должен быть не менее 500 мм. Расстояние А определяет величину выхода штока ТЦ и ориентировочно должно составлять при композиционных колодках 35—50 мм, а при чугунных колодках — 40—60 мм.
Регулировку размеров а и А осуществляют вращением корпуса регулятора за выступы головки (один оборот изменяет длину на 30 мм), перестановкой валиков, а также винтом е. Нарушение работы регулятора при отсутствии видимых повреждений возможно из-за поломки одной из его пружин, завышения расстояния А или отсутствия запаса рабочего хода регулирующего винта.
Чтобы уменьшить влияние пружины авторегулятора на снижение передаваемого в ТРП усилия, особенно ощутимое при небольших давлениях в ТЦ при порожнем и среднем режимах ВР грузовых вагонов, на них применяют рычажные приводы, а на пассажирских с высоким давлением — стержневые. Они служат для передачи усилия от штока ТЦ к автоматическому регулятору при износе тормозных колодок, которым обеспечивается стягивание рычажной передачи.
3. РАЗРАБОТКА КАРТЫ НЕИСПРАВНОСТЕЙ
Для повышения эффективности контроля целесообразно разработать карту неисправностей. Такая карта представляет собой чертеж, рисунок узла или отдельных деталей, на котором стрелками указаны листы появления неисправностей, сопровождающий каждую стрелку надписи: в верхней строке указывается характер неисправности, а под чертой наиболее характерные признаки, по которым можно определить наличие данной неисправности. Или же делается анализ неисправностей в виде таблицы, где указываются признаки неисправности, причины вызвавшие эту неисправность и способы устранения.
Характеристики
Тип файла документ
Документы такого типа открываются такими программами, как Microsoft Office Word на компьютерах Windows, Apple Pages на компьютерах Mac, Open Office - бесплатная альтернатива на различных платформах, в том числе Linux. Наиболее простым и современным решением будут Google документы, так как открываются онлайн без скачивания прямо в браузере на любой платформе. Существуют российские качественные аналоги, например от Яндекса.
Будьте внимательны на мобильных устройствах, так как там используются упрощённый функционал даже в официальном приложении от Microsoft, поэтому для просмотра скачивайте PDF-версию. А если нужно редактировать файл, то используйте оригинальный файл.
Файлы такого типа обычно разбиты на страницы, а текст может быть форматированным (жирный, курсив, выбор шрифта, таблицы и т.п.), а также в него можно добавлять изображения. Формат идеально подходит для рефератов, докладов и РПЗ курсовых проектов, которые необходимо распечатать. Кстати перед печатью также сохраняйте файл в PDF, так как принтер может начудить со шрифтами.















