126306 (691002), страница 2
Текст из файла (страница 2)
4.Технология производства
Синтез карбамида из аммиака и двуокиси углерода протекает по суммарной реакции
2NH3 + CO2 → CO(NH2)2 + Н2О
и состоит из стадии образования карбамата аммония:
2NH3 + СО2 → NH4–COO–NH2
и дегидратации карбамата аммония:
NH4–COO–NH2 → CO(NH2)2 + Н2O
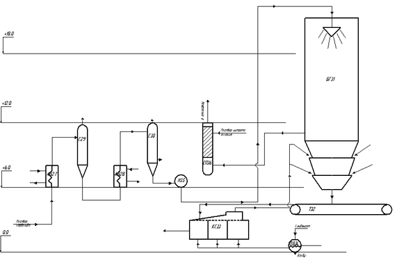
Согласно технологической схеме, рассмотренной в данном курсовом проекте, газообразный CO2 сжимается в четырехступенчатом компрессоре 1 от 1 до 200 атм. при 35°C, а оттуда подается в смеситель 4. В смеситель также под давлением 200 атм. подается жидкий аммиак, а плунжерным насосом 14 – раствор УАС, в виде которого возвращаются в цикл не превращенные в карбамид NH3 и CO2. В смесителе образуется карбомат аммония при давлении 200атм. и температуре 175 °C. Из смесителя реакционная смесь поступает в колонну синтеза 5, в которой при 200 °C и 280 атм. протекает образование карбамида.
Образовавшийся в колонне синтеза плав, содержащий 30-31% карбамида, 21-22% карбамата аммония, 33-34% избыточного аммиака, 14-16% воды направляются на двухступенчатую дистилляцию. Агрегат дистилляции каждой ступени состоит из трех аппаратов: ректификационной колонны, подогревателя и сепаратора.
Плав карбамида, выходящий из колонны синтеза 5, дросселируется от 200 до 20 атм. и поступает в ректификационную колонну 7 агрегата дистилляции первой ступени. Здесь происходит выделение в газовую фазу избыточного аммиака. Затем в подогревателе 8 температура плава повышается до 165 °C. При этом почти полностью выделяется избыточный аммиак и разлагается большая часть карбамата аммония. Образовавшаяся парожидкостная смесь разделяется в сепараторе 9. Газовая фаза из него возвращается в ректификационную колонну 7, а жидкая фаза дросселируется до 3 атм. и направляется на дистилляцию второй ступени.
Газовая фаза из ректификационной колонны 7, содержащая 76% NH3, 21-22% CO2 и около 3% воды, направляется в промывную колонну 6. Здесь NH3 и CO2 поглощаются аммиачной водой с образованием раствора аммонийных солей, а газообразный аммиак очищается от двуокиси углерода и направляется в конденсатор первой ступени 13, где конденсируется и возвращается через танк 2 в цикл.
Жидкая фаза, представляющая собой концентрированный раствор аммонийных солей, с температурой 100 °C плунжерным насосом 14 подается под давлением 200 атм. в смеситель 4.
Раствор, поступающий на дистилляцию второй ступени содержит 60-61% карбамида, 4-5% карбамата аммония, 6-7% избыточного аммиака и 29-30% воды. Дистилляция второй ступени протекает также, как и в первой, т. е. вначале раствор проходит через ректификационную колонну 10, а затем в подогревателе 11 нагревается до 145 °C и поступает в сепаратор 12, где происходит разделение газообразной и жидкой фаз. Во второй ступени дистилляции происходит окончательное разложение карбамата аммония и завершается отгонка аммиака и двуокиси углерода.
Остающийся раствор, содержащий 70-72% карбамида, из сепаратора 12 дросселируется и поступает в вакуум-испаритель 15, в котором при остаточном давлении 300 мм. рт. ст. происходит его концентрация до 74-76% за счет самоиспарения. Далее этот раствор через сборник 16 и маслоотделитель 17 направляется на переработку в готовый продукт.
Газовая фаза из ректификационной колонны 19, содержащая 55-56% NH3, 24-25% CO2 и 20-21% воды, направляется в конденсатор второй ступени 19 для конденсации водяных паров. Образовавшийся здесь слабый раствор УАС через напорный бак 20 центробежным насосом 21 подается в промывную колонну 6. Газовая фаза из конденсатора 19 и другие отходящие газы, содержащие NH3 и CO2, направляются в абсорбер 22, в котором NH3 и CO2 при 40 °C поглощаются раствором аммонийных солей, циркулирующим через холодильник 25.
Образовавшийся в абсорбере 22 раствор УАС подогревается в теплообменнике 26 до 95 °C и подается в десорбер 24. Здесь при 3 атм. и 135 °C с помощью острого пара происходит полное разложение аммонийных солей на NH3 и CO2. Газообразные NH3 и CO2 вместе с водяными парами направляются в конденсатор второй ступени, а оставшаяся вода удаляется в канализацию.
Колонна синтеза 5 размещена на открытой площадке, остальное оборудование – в здании.
Рисунок1 – технологическая схема производства карбамида
Полученный раствор карбамида последовательно упаривают в выпарных аппаратах первой и второй ступени 27 и 28 соответственно при температуре 120–125°С и давлении 30–40 кПа и 130–140°С и давлении около 3–5 кПа. Полученный плав карбамида концентрацией 99,7–99,8 масс. % поступает в грануляционную башню 31 и распыляется в ней. Образующиеся мелкие частицы при падении вниз охлаждаются в полом объеме башни потоком воздуха, идущим снизу вверх, и превращаются в гранулы. В нижнюю часть башни засасывается атмосферный воздух, и подается воздух из аппарата для охлаждения гранул «КС» 33. Образовавшиеся гранулы нитрата аммония из нижней части башни поступают на транспортер 32 и в аппарат кипящего слоя 33 для охлаждения гранул, в который через подогреватель 34 подается сухой воздух. Из аппарата 33 готовый продукт направляется на упаковку.
Товарный карбамид в виде гранул размером 1–4 мм применяют в сельском хозяйстве. Кристаллический карбамид получают в кристаллизаторах.
На современных установках поток воздуха из грануляционных башен
промывается для удаления мелких частиц карбамида и затем выбрасывается в атмосферу.
Рисунок2 – технологическая схема производства карбамида
5. Конструкция аппарата
Конструкция аппарата приведена на рисунке
1-корпус; 2- крышка плоская; 3-днище эллиптическое; 4-опора; 5-тарелки ситчатые; 6-термопара
Рисунок3 – колонна синтеза карбамида.
6. Технологические расчеты
6.1 Материальный баланс
CO2 + 2 NH3 = NH2COOONH4 + 38ккал (1)
NH2COOONH4 = H2O + NH2CONH2 (2)
1.Теоретический расход аммиака и двуокиси углерода на 1 т 100% - ой мочевины
m(NH3) = n ∙MNH3 ∙m(CONH2)2/MCO(NH2)2 [1 c.244]
где MNH3 - молярная масса аммиака MNH3 = 17 кг/кмоль
m(CONH2)2 – масса карбамида m(CONH2)2 = 1000кг
n – стехиометрический коэффициент n = 2
MCO(NH2)2– молярная масса карбамида, MCO(NH2)2 = 60кг/кмоль
m(NH3)= 2 ∙17 ∙1000/60 = 566,67 кг
m(CO2) = MCO2 ∙m(CONH2)2/MCO(NH2)2 [1 c.244]
где ΜCO2 – молярная масса углекислого газа, ΜCO2 = 44 кг/кмоль.
Следовательно
m(СО2) = 44 ∙1000/60 = 733,33 кг
2. Расход на 1 т. 98% - ой мочевины
m(NH3) = 2 ∙17 ∙1000∙0,98/60 = 555,34 кг
m(CO2) = 44 ∙1000∙0,98/60 = 718,66 кг
3. В колонне синтеза с учетом потерь на 1 т. готовой продукции должно получиться мочевины
980∙1,15 = 1127 кг.
На образование этого количества мочевины необходимо
m1(NH3) = m(NH3) ∙1,15 = 555,34∙1,15 = 638,64 кг
m1(CO2) = m(CO2) ∙1,15 = 718,66∙1,15 = 826,46 кг
4. Практический расход аммиака и углекислоты на 1 т. мочевины (без учета примесей в аммиаке и двуокиси углерода)
m2(NH3) = m(NH3) ∙1,15∙n∙100/MCO(NH2)2 = 555,34∙1,15∙2∙100/60 = 2128,8 кг
m2(CO2) = m(CO2) ∙1,15∙100/MCO(NH2)2 = 718, 66∙1,15∙100/60 = 1377,43 кг
5. В колонне образуется карбамата аммония
m(NH2COOONH4) = m2(CO2) ∙ MNH2COOONH4/ MCO2 [1 c.244]
где MNH2COOONH4 – молярная масса карбамата аммония
MNH2COOONH4 = 78 кг/моль
m(NH2COOONH4) = 1377,43 ∙78/44 = 2441,8 кг
6. На образование карбамата расходуется аммиака
m3(NH3) = m(NH2COOONH4) ∙ n ∙ MNH3/ MNH2COOONH4 [1 c.245]
m3(NH3) = 2441,8 ∙2 ∙17/78 = 1064,37 кг
Остается непрореагировавшего аммиака
m2(NH3) - m3(NH3) = 2128,8 – 1064,4 = 1064,4 кг
7. Образуется мочевины из карбамата аммония
m(CONH2)2 = m(NH2COOONH4) ∙ MCO(NH2)2/ MNH2COOONH4 ∙MCO(NH2)2/100
m(CONH2)2 = 2441,8∙60∙60/78∙100 = 1127 кг
Остается непрориагировавшего карбамата аммония
m1(NH2COOONH4) = m(NH2COOONH4) ∙ (100- MCO(NH2)2/100) [1 c.245]
m1(NH2COOONH4) = 2441,8 ∙ (100-60/100) = 976,74 кг
8. При превращении карбамата аммония в мочевину по реакции (2) выделится вода
m(H2О) = m(NH2COOONH4) ∙(МH2О/MNH2COOONH4) ∙(MCO(NH2)2/100) [1 c.245]
m(H2О) = 2441,8 ∙18/78 ∙600/100 = 388,09 кг
| Приход | Расход | |||||
| кг/т | кг/ч | кг/т | кг/ч | |||
| Аммиак | 2128 | 22167,4 | Мочевина | 1127 | 11740 | |
| Углекислота | 1377,43 | 14348,7 | Карбамат аммония | 976,74 | 10174,7 | |
| Вода | 338,09 | 3521,88 | ||||
| Аммиак избыточный | 1064,4 | 11087,85 | ||||
| 3506,23 | 36516,1 | 3506,23 | 36524,4 | |||
9. Выделившаяся в колонне вода взаимодействует с избыточным аммиаком с образованием гидрата аммония в количестве:
m(NH4OH) = m(H2О) ·MNH4OH/ МH2О [1 c.245]
m(NH4OH) = 338,09 ·35/18 = 657,4 кг
10. На образование гидрата аммония затрачивается аммиака:
m4(NH3) = m(NH4OH) ·МNH3/ MNH4OH [1 c.245]
m4(NH3) = 657,4 ·17/35 = 319,31 кг
Остается избыточного аммиака:
mизб(NH3) = m3(NH3) - m4(NH3) [1 c.245]
mизб(NH3) = 1064,4 – 319,31 = 745,09 кг
6.2 Тепловой баланс
1.Приход тепла
1.1 Тепло, поступающее с СО2:
Q1 = m2(CO2)·C(CO2)·T [1 c.249]
где C(CO2) – теплоемкость СО2 при Т
C(CO2) = 0,208 ккал/кг ·град; Т = 35°С
Q1 = 1377,4 ·0,208 ·35 = 10080 ккал
1.2 Тепло, поступающее с жидким аммиаком:
Q2 = m2(NH3) ·С(NH3) ·Т [1 c.249]
где С(NH3) – теплоемкость NH3 при Т
С(NH3) = 1,054 ккал/кг ·град; Т = 25 °С
Q2 = 2128,8 ·1,054 ·25 = 56093,9 ккал
1.3 Тепло образования карбамата аммония:
Q3 = m1(NH2COOONH4)/ MNH2COOONH4 ·(q1 – q2) [1 c.249]
где q1 – теплота образования твердого карбамата аммония из газообразных NH3 и CO2
q1 = 38000 ккал/кг ·моль
q2 – теплота плавления карбамата
















