125990 (690814)
Текст из файла
1. Определение расчетной подачи насосной станции
В соответствии с требованиями СНиП 2.06.03-85 расчетная подача насосной станции для польдерного осушения определяется максимальной ординатой графика откачки
Qн.с=qmax , м3/с (1)
где qmax – максимальная ордината графика расходов воды по периодам , м3/с
Qн.с=qmax =4,9 м3/с
2. Выбор схемы гидроузла насосной станции
Под схемой гидроузла НС понимается последовательное расположение его сооружений от водоисточника до водопотребителя.
В проекте принимается схема НС на тупиковом канале, как наиболее часто используемый в мелиоративном строительстве. Схема представлена на рис.1.
Рис. 2.1. Схема насосной станции на тупиковом канале:
1 – водоподводящий канал; 2 – аванкамера; 3 – водоприемные сооружения; 4 – здание насосной станции; 5 – напорные трубопроводы; 6 – водовыпуски; 7 – водоотводящие каналы; 8 – труба-регулятор; 9 – трубопровод для самотечного сброса воды; 10 – водоприемник; 11 – ограждающая дамба.
3. Проектирование и гидравлический расчёт водоподводящего канала
Водоподводящий канал осуществляет подвод воды от источника к водозаборному сооружению насосной станции.
Исходные данные к расчёту:
1.
2.коэффициент заложения откосов
, т.к. супесь;
3.коэффициент шероховатости русла
;
4.допускаемая неразмываемая скорость воды v=0,67 м/с;
5.уклон дна канал i=0,0003
Определяем глубину наполнения канала hmax:
(3.1)
В зависимости от
и
принимаем
Принимаем глубину канала h= 1,5 м, находим отношение
(3.2)
По таблицам 1. III находим b методом интерполяции:
(3.3)
Находим ширину канала:
, (3.4)
принимаем b=2,5 м,
Для построения графической связи h=f(Q) выполняем расчёт в табличной форме:
Таблица 1. Параметры для построения графической зависимости Q-H.
| b, м | h, м | ωк, м | Χ=b+2h м | R=ωк/Χ, м | C=R1/6 ·1/n, м0,5/с |
| Q=ωкC м3/с |
| 2,5 | 0,3 | 0,89 | 3,58 | 0,25 | 35,21 | 0,30 | 0,27 |
| 2,5 | 0,6 | 2,04 | 4,66 | 0,44 | 38,72 | 0,44 | 0,90 |
| 2,5 | 0,9 | 3,47 | 5,74 | 0,60 | 40,85 | 0,55 | 1,90 |
| 2,5 | 1,2 | 5,16 | 6,83 | 0,76 | 42,42 | 0,64 | 3,30 |
| 2,5 | 1,5 | 7,13 | 7,91 | 0,90 | 43,68 | 0,72 | 5,12 |
| 2,5 | 1,6 | 7,84 | 8,27 | 0,95 | 44,05 | 0,74 | 5,82 |
Чтобы обеспечить забор расчетного расхода воды в водоподводящий
Проверяем на неразмываемость:
(3.5)
(3.6)
Так как расчётная скорость меньше исходной, то размыв отсутствует.
Отметка дна канала
определяется по минимальной отметке уровня воды
в водохранилище:
(3.7)
Рис. 3.1 График зависимости h=f(Q) водопроводящего сооружения.
4. Определение расчетного напора насосной станции
Расчетный напор насосной станции определяем по формуле:
Hp =Hг.ср + hl + hм, м (4.1)
где, Hг.ср – средневзвешенная геодезическая высота подъема воды :
Hг.ср = ΣQi ·Hг.i · ti / ΣQi · ti , м (4.2)
hl - потери напора по длине напорного трубопровода, м
hм – местные потери напора, м
Расчет ведем в табличной форме.
Таблица 2. К расчёту средневзвешенной геодезической высоты подъема воды
| период работы насосной станции | число суток в периоде ti | подача насосной станции Qi,м3/с | отметка уровня воды, м | геодези-ческая высота подъема, м | Qi Hг.i ti | Qi ti | ||||
| в верхнем бьефе | в нижнем бьефе | |||||||||
| 01.01…31.01 | 31 | 2,0 | 149,4 | 149,02 | 0,38 | 23,56 | 62 | |||
| 01.02…15.03 | 43 | 2,2 | 150,5 | 149,15 | 1,35 | 127,71 | 94,6 | |||
| 16.03…31.05 | 76 | 4,9 | 152,0 | 149,58 | 2,42 | 901,21 | 372,2 | |||
| 01.06…15.08 | 76 | 3,2 | 149,2 | 150,42 | - | - | - | |||
| 16.08…31.10 | 76 | 3,9 | 149,6 | 150,95 | - | - | - | |||
| 01.11…31.12 | 61 | 2,1 | 149,8 | 150,73 | - | - | - | |||
| Сумма | Σti = 363 | Σti =1052,48 | Σti =528,8 | |||||||
Hг.ср =
=
=1,99 м;
hl = iхlтр = 3,5
0,043 =0,15 м
Тогда расчетный напор будет равен:
Hp =Hг.ср + hl + hм = 1,99+0,15+0,9=3,04 м.
5. Подбор основных насосов
В состав основных насосов входят рабочие насосы и резервные.
Рабочий насос подбирают по расчетному напору, который равняется напору насосной станции (параллельное включение насосов) и расчетной подаче
.
Расчетная подача насоса определяется из выражения
, (12)
где
– количество рабочих насосов.
Количество рабочих насосов определяем из условия лучшего покрытия графиков водопотребления (откачки) с учетом получения при этом максимальной экономической эффективности.
При этом необходимо учитывать следующее:
– увеличение количества насосов приводит к возрастанию строительного объема здания насосной станции;
– при совместной работе на общий напорный трубопровод подача насоса уменьшается по сравнению с подачей при индивидуальной его работе, и чем больше насосов работают вместе, тем больше снижение их подачи;
– чем менее мощный насос, тем ниже его КПД.
Предварительный подбор насоса выполняется по сводным графикам полей
Q-H [2], а затем, установив тип и марку насоса, по рабочим характеристикам, находим более подробные сведения о насосе и его параметрах.
При этом рабочая точка должна находиться в области максимального К.П.Д. (рабочая область насоса). Допускается отклонение величины расчетного напора насоса от напорной характеристики 3%.
Исходя из выше перечисленных условий выбираем насос ОП6-87.
Рис.5.1 Характеристики насоса ОП6-87
6. Проектирование и расчет подводящих трубопроводов
Подводящие трубопроводы предназначены для транспортирования воды от водозаборного сооружения к насосам.
При проектировании подводящих трубопроводов необходимо соблюдать следующие требования:
– число всасывающих трубопроводов должно быть равно числу насосов, при необходимости допускается устройство общего всасывающего коллектора;
– трубопроводы следует устраивать стальными; соединения труб вне здания станции устраиваются сварными, а в пределах здания станции на фланцах или сварными;
– всасывающие трубопроводы прокладывают с непрерывным подъемом не менее 0,005 в сторону насоса;
– соединение всасывающего трубопровода и всасывающего парубка насоса осуществляется с помощью ассиметричного перехода с горизонтальной верхней образующей;
Рис. 6.1. Схема всасывающего трубопровода
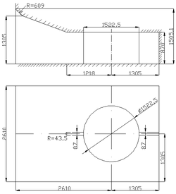
7. Проектирование водозаборных сооружений
Водозаборное сооружение насосной станции предназначено для приема воды из источника и подачи ее к всасывающим трубопроводам основных насосов. В состав водозаборного сооружения входят аванкамера и водоприемник.
Поскольку подача насоса 4,9 м3/с и высота всасывания положительная – применяют камерный тип водозаборного сооружения, (рис.2).
Всасывающие трубопроводы насосов располагаются на торцевом откосе ковша. Расстояние между осями всасывающих трубопроводов (3…4) Двх (диаметра входного отверстия приемного конуса);
.
Заглубление верхней кромки входного отверстия приемного конуса под минимальный уровень принимают
, но не менее 0,5м. Входное отверстие целесообразно устраивать в вертикальной плоскости.
Сороудерживающую решетку предпочтительнее делать выносной и располагать ее вначале аванкамеры. На входных отверстиях всасывающих трубопроводов также должны быть предусмотрены решетки.
Прямой уклон дна аванкамеры рекомендуется принимать i=0,2. Аванкамеру следует устраивать с центральным углом конусности 40…45о.
Определяем длину аванкамеры:
Характеристики
Тип файла документ
Документы такого типа открываются такими программами, как Microsoft Office Word на компьютерах Windows, Apple Pages на компьютерах Mac, Open Office - бесплатная альтернатива на различных платформах, в том числе Linux. Наиболее простым и современным решением будут Google документы, так как открываются онлайн без скачивания прямо в браузере на любой платформе. Существуют российские качественные аналоги, например от Яндекса.
Будьте внимательны на мобильных устройствах, так как там используются упрощённый функционал даже в официальном приложении от Microsoft, поэтому для просмотра скачивайте PDF-версию. А если нужно редактировать файл, то используйте оригинальный файл.
Файлы такого типа обычно разбиты на страницы, а текст может быть форматированным (жирный, курсив, выбор шрифта, таблицы и т.п.), а также в него можно добавлять изображения. Формат идеально подходит для рефератов, докладов и РПЗ курсовых проектов, которые необходимо распечатать. Кстати перед печатью также сохраняйте файл в PDF, так как принтер может начудить со шрифтами.















