125972 (690807), страница 2
Текст из файла (страница 2)
Розраховуємо модуль за формулою:
,мм (3.5)
мм
Розраховуємо коефіцієнт діаметру черв’яка за формулою:
(3.6)
= 10,6
12,5 > 10,6 – умова виконується.
Підбираємо m і q по таблиці 2.3 за умовою -1 ≤ X ≤ 1, де
(3.7)
-1 < 0,95 < 1 – умова виконується.
Приймаємо m = 2,5 мм; q =10.
При х > 0
(3.8)
(3.9)
Розраховуємо начальний діаметр черв’яка за формулою:
(3.10)
мм
мм
Розраховуємо ділильний діаметр черв’ячного колеса за формулою:
d2=m · z2
,мм (3.11)
d2= 2,5 · 50 = 125 мм.
Розраховуємо діаметр впадини черв’яка за формулою:
, мм (3.12)
мм
Розраховуємо діаметр впадини черв’ячного колеса за формулою:
,мм (3.13)
мм
Розраховуємо діаметр вершини витків черв’яка за формулою:
, мм (3,14)
мм
Розраховуємо діаметр вершини витків черв’ячного колеса за формулою:
, мм (3.15)
Розраховуємо найбільший діаметр черв’ячного колеса за формулою:
, мм (3.16)
Розраховуємо довжину нарізаної частини черв’яка :
При z1=4;
, мм (3.17)
мм
(3.18)
(3.19)
(3.20)
UГОСТ=12,5
0 < 4% - умова виконується.
Розраховуємо коефіцієнт корисної дії передачі:
(3.21)
де
кут тертя, вибираємо з табл. 2.4
Таблица 3.1 – Кут тертя
між стальним черв’яком і венцем колеса
| Vs, м/с | | Vs, м/с | |
| 0,5 | 3°10' - 3°40' | 3 | 1°30' - 2°00' |
| 1,0 | 2°30' - 3°10' | 4 | 1°20' - 1°40' |
| 1,5 | 2°20' - 2°50' | 7 | 1°00' - 1°30' |
| 2,0 | 2°00' - 2°30' | 10 | 0°55' - 1°20' |
| 2,5 | 1°40' - 2°20' | 15 | 0°50' - 1°10' |
Приймаємо
=3°20'
Розраховуємо колову швидкість черв’яка за формулою:
(3.22)
м/с
(3.23)
Визначаємо швидкість ковзання за формулою:
(3.24)
=0,95
σ
=280МПа
Розраховуємо колову, радіальну і осьову сили в зачепленні:
(3.25)
(3.26)
(3.27)
Мал. 3.1. Схема зачеплення черв’ячної передачі
3.4 Перевірний розрахунок
Розраховуємо дійсне контактне напруження за формулою:
(3.28)
254 МПа < 400 МПа – умова виконується.
Розраховуємо максимальне дійсне контактне напруження за формулою:
(3.29)
Т2Н max= Тт / 0,8 =310 / 0,8 = 387,5 Н·м
284 МПа < 400 МПа – умова виконується.
Розраховуємо дійсне напруження згину за формулою:
(3.30)
YFN – вибираємо з таблиці 3.1 в залежності від
(3.31)
(3.32)
Приймаємо YFN=1,4
29,6 МПа < 400 МПа – умова виконується.
Розраховуємо максимальне дійсне напруження згину за формулою:
(3.33)
37 МПа < 400 МПа – умова виконується.
4. Проектування валів
4.1 Розрахунок валів з умови кручення
Розрахунок виконується за умов:
-
міцність на кручення
;
(4.1)
-
зниженого умовного допустимого напруження кручення в межах
пропорційно відносної навантаженості вала -
забезпечення осьової фіксації деталей, що розміщуються на валу.
Швидкохідний вал
Діаметр консольної ділянки
(4.2)
де Тш – момент на швидкохідному валу редуктора
мм.
Округляємо до d=17мм.
Діаметр вала під підшипник
(4.3)
де t=2мм – розмір висоти бурта.
dП=17+2·2=21мм
Приймаємо dп=20мм.
Діаметр бурта під підшипник
(4.4)
де r=1,6мм – радіус галтельного переходу
dбп=20+3,2·1,6=25,12 мм
Приймаємо dбп=25мм.
Так як діаметр вершин зубців черв’яка dа1=34,75 мм, менше за 2dбп, то черв’як виконуємо сумісно з валом.
Тихохідний вал
Діаметр консольної ділянки
(4.5)
де Тт – момент на тихохідному валу редуктора
Округляємо до d=40мм.
Діаметр вала під підшипник
(4.6)
де t=1,7мм – розмір висоти бурта
dП=40+2·1,7=43,4 мм
Приймаємо dп=45мм.
Діаметр бурта під підшипник
(4.7)
де r=3мм – радіус галтельного переходу
dбп=45+3,2·3=53,6 мм
Приймаємо dбп=55мм.
Діаметр вала під колесо
(4.8)
Приймаємо dк=55мм.
Діаметр бурта під колесо
(4.9)
де f=1,6мм – розмір факи
dбк=55+3·1,6=59,8 мм
Приймаємо dбп=60мм.
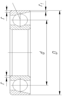
4.2 Вибір типа та схеми розташування підшипників
В опорах валів встановлюємо роликові радіально-упорні конічні однорядні підшипники. На швидкохідному валу встановлюємо підшипники середньої серії за схемою "у розпір. На тихохідному валу встановлюємо підшипники легкої серії за схемою "у розпір".
Мал. 4.1. Ескіз підшипників кочення
Таблиця 4.1.Вибір підшипників
| Вал | № | D | d | B | r | r1 | Сr | Соr |
| Швидкохідний | 46304 | 52 | 20 | 19 | 2 | 1,0 | 14,0 | 9,17 |
| Тихохідний | 36209 | 85 | 45 | 19 | 2,0 | 1,0 | 32,3 | 25,6 |
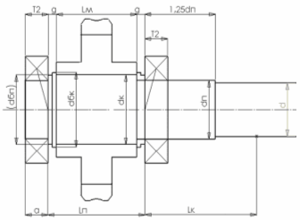
4.3 Ескізна компоновка редуктора
Відстань між колесом і внутрішньою поверхнею корпуса редуктора
Відстань між маточиною колеса і внутрішньою поверхнею корпуса приймаємо g=8мм
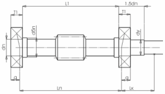
Відстань між опорами черв’яка приймаємо
l1=daм2=137мм
Довжина консольної ділянки швидкохідного вала по ГОСТ 12081-72 приймаємо l=36мм
Довжина консольної ділянки тихохідного вала по ГОСТ 12081-72 приймаємо l=82мм
Довжина маточини черв’ячного колеса
lм=1,2dк2=1,2·55=66мм
приймаємо lм=70мм
Мал. 4.2. Ескізна компоновка швидкохідного валу
Мал. 4.3. Ескізна компоновка тихохідного валу
Мал. 4.4. Схема сил у зачепленнях
4.4 Вибір матеріалу валів
Швидкохідний вал виконаний заодно ціле з черв’яком.
Матеріал виготовлення: сталь 40Х ГОСТ 4543-71 з послідуючою термообробкою – поліпшення (НВ270…320) та гартування СВЧ до отримання твердості HRC 48…53. В цьому випадку σт=750МПа;
σв=900МПа; τт=450МПа; σ-1=410МПа; τ-1=240МПа; ψτ=0,10
Тихохідний вал виготовляємо зі сталі 40Х ГОСТ 4543-71 з послідуючим поліпшенням до отримання твердості НВ270…320. В цьому випадку σт=750МПа; σв=900МПа; τт=450МПа; σ-1=410МПа; τ-1=240МПа; ψτ=0,10
4.5 Розрахунок валів на статичну міцність та опір втомі та розрахунок підшипників на витривалість
Розрахунок на статичну міцність
Швидкохідний вал
Реакції опор
В вертикальній площині
∑М3=0
∑М1=0
Перевірка
∑У=0
RBУ-Fr1-Raу=0
874,87-138,72-(-512,32)=0
MX1=0
MX3=0
Реакції опор
В горізонтальній площині
∑М3=0
∑М1=0
RBX =[-Ft1·(lБ/2)+FМ·(lМ+lБ)]/ lБ
RBX=[-4080·134/2+970·(41,3+134)]/134=-771,189
Перевірка
∑Х=0
RАX- RBX- Ft1+ FМ=2338,84-(-771,189)+970-4080=0
Будуємо епюру згинаючих моментів
МУ1=0
МУ2=- RАX(lБ/2)=-2338,84·134/2=-156700
МУ3= - FМ·l=-4080·175,279=-170021
Будуємо епюру згинаючих моментів
МК=( Ft1·d1)/2=4080·29,8/2=60690
Сумарні опорні реакції
Подбіраємо підшипник по перший опорі.
Підшипник шариковий радіально-упорний 46304.
d=20мм, D=52мм, В=15мм, r=2,0 r1=1,0, Cr=14, Cor=9,17
Визначаємо еквівалентне навантаження.
Рэ=(XVFr1+YFa)·Кб·Кт (4.10)
де- Fr1=816; Fa= 3400; V=1; Кб=1; Кт=1.
Відношення
- величина соответствует е=0,68
Відношення
>е; Х=0,41; Y=0,87
Рэ=(0,41·1·816+0,87·3400)·1·1=2958Н
Розрахункова довговічність, млн.об
(4.11)
, млн.об
Розрахункова довговічність, ч
(4.12)
, ч
Тихохідний вал.
Вертикальна площа
∑М4=0
Перевірка
∑У=0
Fу-Rcу- Fr2- FD2=0
1996,1-4390,33-1387+3781,44=0
Будуємо епюру.
Мх2= Fу·Lon
Мх2=1996·175,28=349858
Мх4=0
Горизонтальна площа
Fх-Rcх- Ft2+ FDx=0
3457,3-4756,79-4080+5379,44=0
Строємо епюру
Му2 = - Fx ∙ lоп
Му2 = - 3457 ∙ 175,88 = - 293873
Му3 = - Fx ∙ (lоп +
) + Rсх
Му3 = - 3457 ∙ (175,88 +
) + 4756,72
= - 236696
Му4 = 0
Строємо епюру крутних моментів
Мк = Мr =
Мк = Мr =
= 255000
Визначаємо реакціі
Rc =
Rc =
= 6473.18
RD =
RD =
= 6575,658
Сумарні згинальні моменти
М2 =
М3 =
Вибираємо підшипник – радіально упорний по ГОСТ 831-75 легкоі серіі 36209. d = 45мм D = 85 мм B = 19 мм α = 12° Cr = 32,3 Co = 25,6
Відношення
=
= 0,059
Відношення
=
= 0,248 < l тому X = 1 Y = 0
Рэ = Rd ∙ V ∙ Кб ∙ Кт = 6575,685 ∙ 1 ∙ 1 ∙ 1 = 6575,685
Розрахунок довговічності, мм
L = (
)3 =
= 137 мм
Розрахунок довговічності в годинах
Lh =
=
= 30000 год.
Для зубчастих редукторів приймаємо ресурс роботи підшипників від 30 тис (такий ресурс самого редуктора) до 10 тис ( такова допустима довговічность підшипника).
Перевірка міцності шпонкових з’єднань.
В редукторі застосовуємо шпонки призматичні з округленими торцями. Розміри перерізу шпонок і пазів; довжина шпонок по СТ СЭВ 189-75.















