125922 (690761)
Текст из файла
РАЗРАБОТКА КОНСТРУКЦИИ КОРПУСА БУКСИРА
Курсовой проект
Введение
Буксирские суда – обширная и разнообразная категория судов морских и внутреннего плавания. Они служат для линейной и внутрипортовой транспортировки несамоходных судов и плавучих сооружений, для ввода в порты, вывода, перестановок в портах крупных транспортных судов, для формирования и проводки через шлюзы и каналы крупнотоннажных толкаемых и буксируемых составов из барж или секций, для оказания помощи судам, терпящим бедствие, для тушения пожаров и многих других целей.
Буксирские суда эксплуатируются на водных бассейнах всех стран мира. Акватории, на которых они работают, включают все виды водных путей от океанов и малых рек. Разнообразны гидрометеорологические условия, в которых приходиться работать буксирным судам.
Разнохарактерность выполняемых работ и разнообразие условий плавания вызывает потребность в буксирных судах, имеющих различные мореходные качества и эксплуатационные технические характеристики. Это в свою очередь привело к появлению судов с разными архитектурными и конструктивными решениями.
Наиболее распространенным буксирными судами являются океанские и морские буксиры спасатели, линейные и многоцелевые буксиры, портовые и рейдовые буксиры транспортно – маневрового назначения, а также буксиры с функциями ледоколов и буксировщиков.
Портовые буксиры транспортно – маневрового назначения – суда относительно небольшой мощности с малыми размерами корпуса, с минимальной величиной надводного борта и высокими маневренными качествами. Эти особенности обусловлены тем, что портовые буксиры должны достаточно свободно маневрировать между судами, судами и причалами, проходить под натянутыми швартовными концами, под кормовыми подзорами транспортных судов, т.е. работать в сложной обстановке, характерной для стеснённых портовых акваторий.
Буксиры – кантовщики. Рост в последние годы численности и размерений судов морского и промыслового флота, а также всё возрастающий объём торговли с зарубежными странами повлекли за собой увеличение числа судозаходов в порты страны, а также количества судов, одновременно находящихся в портах.
В результате значительно возросло и усложнилось выполнение кантовочных кормовых буксиров – кантовщиков, обладающих наряду со значительными тяговыми характеристиками более высокими маневренными качествами и малыми габаритами.
Буксиры – кантовщики имеют, как правило, гладкую палубу для удобной работы с буксирными канатами, которые приходиться часто принимать, отдавать и перетаскивать от места подачи их с буксируемого судна, т.е. практически с любой точки палубы к буксирному гаку или битенгам. По той же причине на буксирах – кантовщиках часть палубы в корме и районе буксирного гака предусматривают свободной.
Рейдовые буксиры выполняют буксировочные работы прибрежных морских районах с удалением от порта – убежища до 20 – 50 миль, что не редко обуславливает продолжительное пребывание судна в отрыве от порта. Поэтому при проектировании рейдовых буксиров предусматривается всё необходимое для постоянного проживания экипажа на судне – жилые помещения, камбуз, кладовые провизии и санитарно – бытовые помещения.
Морские линейные буксиры. В нашей стране регулярные морские транспортные буксировки в небольшом объёме сохраняются как в виде чисто морских, так и в виде смешанных типа море – река – море. Первые применяются в тех бассейнах страны, где использование самоходного флота по тем или иным причинам затруднено. Особенно это относится к Дальневосточному бассейну. Здесь перевозки между мелкими портами и портопунктами осуществляется на несамоходных судах из – за ограниченных глубин в прибрежных района. Буксирные суда применяются для буксировки плотов – сигар в Японские порты, также для буксировки барж с местными строительными материалами на морских линиях и в прибрежных районах.
Морские линейные буксиры, имея единое назначение, различаются по своим размерам и мощности. Общими особенностями их является повышенный надводный борт, стандартная или увеличенная седловатость палубы и двухъярусная рубка. Компоновка судовых помещений не отличается от таковой на других буксирах, у которых жилые помещения рассчитаны на полный штат команды.
Морские многоцелевые буксиры – это современные буксирные суда. Помимо выполнения транспортных линейных буксировок они пригодны и для работы в морских портах по обслуживанию крупных судов. Кроме того, они обеспечивают пожарную безопасность обслуживающих судов, что особенно важно при работе с танкерами. Поскольку эти суда оборудованы мощными противопожарными средствами, на них возлагается также выполнение спасательных работ. Морские многоцелевые буксиры имеют меньшие по сравнению с океанскими буксирами – спасателями, но значительно большие по сравнению портовыми и рейдовыми буксирами автономность и дальность плавания. В отличии от океанских буксиров у морских более высокие манёвренные качества.
1. Общая характеристика судна
2. Выбор конструктивного типа судна
-
Главные размерения судна и регистровый класс.
Буксир
L=72,0м
В=12,0м
D=7,2м
d=4,8м
-
Расшифровка регистровского класса.
КМ ЛУ4 1 А2
К- корпус
М- механизмы
КМ - судно построено по правилам и под надзором Морского Регистра Судоходства.
ЛУ4- эпизодическое плавание в разреженном мелкобитом льду толщиной до 0,9м.
А2- объем автоматизации механической установки самоходных и несамоходных судов и плавучих сооружений позволяет ее эксплуатацию одним оператором из центрального поста управления без постоянного присутствия обслуживающего персонала в машинных помещениях.
1 - непотопляемость обеспечивается при затоплении одного отсека.
3) Определение шпаций судна, разбивка на шпации.
Согласно «Правил Морского Регистра судоходства» нормальная шпация в средней части судна определяется по формуле:
а = 0,002L + 0.48
а =0.002 х 72,0 + 0,48 = 0,624 мм
Отклонение от нормальной шпации может быть допущено в пределах ± 25%.
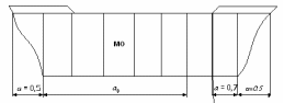
Принята для судна поперечная и продольная стандартная шпация: а = 0,7 м. Шпация в пиках принята: а = 0,5 м.
Район возможного положения пиковых поперечных переборок на судне с учётом требований международных конвенций согласно п. 1.1.6 «Правил Морского Регистра судоходства» (стр. 91) форпик составляет 0,05 – 0,08L; для данного судна эта протяжённость составляет 3,6 – 5,76 м. Принимаем протяжённость форпика 10 шпаций: lф = 10шп х 0,5 = 5,0 м.; ахтерпик составляет 0,05 – 0,06L; для данного судна эта протяжённость составляет 3,87 – 4,32 м. Исходя из удобства размещения дейдвудного устройства принимаем протяжённость ахтерпика 8 шпаций: lахт = 8шп х 0,5 = 4,0 м.
На проектируемом судне район нормальной шпации (700мм) составляет
L1 = L – (lф + lахт)
L1 = 72 – (5 + 4) = 63м.
=
= 90 шп.
4) Определение положения мидель – шпангоута:
L/2 =
= 36 м. Путём подсчёта определяем положение мидель–шпангоута: 52шп.
Район средней части судна: 0,4L = 0.4 x 72 = 28,8 м, а 0,2L = 0.2 x 72 = 14,4м; приближённо по 20 шп (мидель-шпангоут 52шп). Район средней части судна 32 - 74шп.
5) Выбор конструктивного типа судна, его специфики, обоснование системы набора.
Проектируя конструкции корпуса, принимаем во внимание характерные признаки, которые непосредственно влияют на прочность и надежность конструкции судна. К таким признакам относятся: количество, расположение и протяженность надстроек, положение машинно-котельного отделения (МКО) по длине судна, установка бортов, поперечных переборок, размеры и общая протяженность помещений и надводного борта.
От высоты надводного борта зависят многие общепроектные характеристики судна, определяющие безопасность плавания и эффективность эксплуатации (непотопляемость, остойчивость, грузоподъемность, экономичность и др.), а от соответствующей надводному борту осадке – размеры и, следовательно, масса элементов конституции (обшивки, балок набора), т.е. масса корпуса.
Высота надводного борта определяется архитектурными и геометрическими факторами (типом, назначением и размерениями судна, протяженностью надстроек, седловатостью, погибью верхней палубы и др.)
Принимаем на проектируемое судно избыточный надводный борт.
Для проектируемого судна открытого типа при длине L = 72,0 м целесообразно принять комбинированную систему набора: верхняя палуба и днище – продольная система, борта – поперечная система набора. Такая система определяет обеспечение устойчивости в перекрытиях верхней палубы и днища, а также высокую степень участия продольного набора в общем продольном изгибе судна, что регламентируется требованиями Морского Регистра судоходства в части обеспечения общей продольной прочности судна.
Верхняя палуба имеет продольный набор, опирающийся на поперечные рамы (поэтому двойные борта позволяют уменьшить влияние рамного набора) для размещения крупногабаритного груза. Бортовые перекрытия судна диктуют применение поперечной системы, что особенно важно для восприятия нагрузки со стороны моря. В трюмных междудонных цистернах размещается топливо и балласт, что связано с обеспечением остойчивости судна при перевозке высокорасположенного груза.
Применение данной системы набора в сочетании с применением низколегированной стали позволяет достичь уменьшения массы металлического корпуса.
1.2 Общесудовая спецификация судна: СЭУ, устройства, оборудование и др
Морской буксир – спасатель, буксировщик ПБУ предназначен для оказания помощи судам, потерпевшим бедствие в океанских, морских и прибрежных районах, а также для караванной транспортировки. Судно может выполнять следующие работы: поиск в море судов, терпящих бедствие, и оказание им помощи; буксировку судов любого водоизмещения в порт или укрытие; проводку судов в битом льду; выполнение судоподъемных и водолазных работ при установке и монтаже ПБУ.
Морской буксир построен на класс «Морского Регистра судоходства» 1995г. с подкреплениями корпуса на категорию Л1 с обеспечением всех дополнительных требований к остойчивости морских буксиров.
Судно может принимать 15 т. груза на ВП в корме и до10 т. груза не палубу полубака и сохранять остойчивость при наличии на палубах, надстройках и такелаже до 50 т. льда. Непотопляемость обеспечивается при одновременном затоплении любых двух смежных отсеков для всех случаев эксплуатационной нагрузки судна.
Диаметр циркуляции на полном ходу составляет около пяти длин корпуса судна. Хорошая управляемость буксира обеспечивается наличием двухвальной машинной установки и винтов регулируемого шага.
Для хранения переносного оборудования и материалов, необходимых при оказании помощи судам, на судне имеется два трюма: носовой – для 50т. груза и кормовой – для 120 т. груза. Топливные цистерны позволяют принимать 350 т. основного запаса дизельного топлива и ещё 80 т. за счёт уменьшения груза в трюмах до 90т. Запас пресной воды составляет 90 т. На судне имеется опреснительная установка, производительностью 4,5 т. воды в сутки.
Морской буксир имеет удлинённый бак и развитую среднюю надстройку, не доходящую до бортов.
Носовая оконечность в верхней части завершается фальшбортом. Форштевень судна – наклонный с подрезом ледокольного типа в нижней части, корма крейсерская. Форштевень в нижней части кованый, выше платформы – из листовой стали, ахтерштевень литой.
На судне установлено два становых якоря Холла по 1600 кг. каждый и один кормовой якорь сегментного типа весом 1500 кг. Длина цепи каждого якоря – 220 м. Для обмыва якорных цепей, их выборки в клюзовых трубах имеется специальное устройство.
На буксир установлен руль полубалансирного типа обтекаемой формы со стальным кованым баллером. Управление рулевой электрогидравлической машиной осуществляется из ходовой рубки. Перекладка руля с борта на борт на полном ходу занимает около 30 сек.
Характеристики
Тип файла документ
Документы такого типа открываются такими программами, как Microsoft Office Word на компьютерах Windows, Apple Pages на компьютерах Mac, Open Office - бесплатная альтернатива на различных платформах, в том числе Linux. Наиболее простым и современным решением будут Google документы, так как открываются онлайн без скачивания прямо в браузере на любой платформе. Существуют российские качественные аналоги, например от Яндекса.
Будьте внимательны на мобильных устройствах, так как там используются упрощённый функционал даже в официальном приложении от Microsoft, поэтому для просмотра скачивайте PDF-версию. А если нужно редактировать файл, то используйте оригинальный файл.
Файлы такого типа обычно разбиты на страницы, а текст может быть форматированным (жирный, курсив, выбор шрифта, таблицы и т.п.), а также в него можно добавлять изображения. Формат идеально подходит для рефератов, докладов и РПЗ курсовых проектов, которые необходимо распечатать. Кстати перед печатью также сохраняйте файл в PDF, так как принтер может начудить со шрифтами.















