125165 (690323), страница 2
Текст из файла (страница 2)
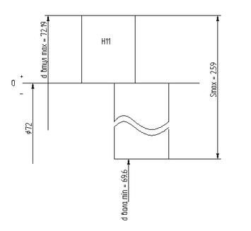
Малюнок 5 – Схема розташування полів допусків для сполуки вала й втулки по меншому діаметрі
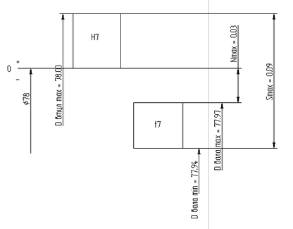
Для більшого діаметра втулки O78Н7 (+0,03; 0):
Для більшого діаметра вала O78f7 (-0,03; -0,06):
Для сполуки вала й втулки по більшому діаметрі O78Н7/f7:
Будуємо схему розташування полів допусків для сполуки вала й втулки по більшому діаметрі (мал. 5.1).
Малюнок 5.1 – Схема розташування полів допусків для сполуки вала й втулки по більшому діаметрі
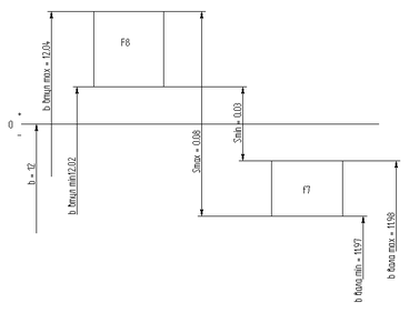
Для бічної поверхні зубів втулки 12F8 (+0,043; +0,016):
Для бічної поверхні зубів вала 12f7 (-0,016; -0,034):
Для сполуки вала й втулки по бічній поверхні зубів 12F8/f7:
Будуємо схему розташування допусків для сполуки вала й втулки по бічній поверхні зубів (мал. 5.2).
Малюнок 5.2 – Схема розташування допусків для сполуки вала й втулки по бічній поверхні зубів
Допуски симетричності бічних сторін шліців у діаметральному вираженні стосовно осі симетрії елемента, що центрує, вибираємо по [3, таблиця А.21]. При ширині шліца b = 12 мм допуск симетричності дорівнює 0,018 мм.
Шорсткості елементів сполуки вибираємо по [3, таблиця А.22]. При нерухливій сполуці шорсткості поверхонь сполуки вибираємо наступні:
– западина отвору –
– зуб вала –
– поверхня, що центрує, втулки –
– поверхня, що центрує, вала –
– поверхня, що не центрує, втулки –
– поверхня, що не центрує, вала –
Малюнок 5.3 – Циліндрична сполука
Література
1. Допуски й посадки: довідник: в 2 ч. / Під ред. В.Д. Мягкова. – К., 2006
2. Медведєва, О.І. Метрологія, стандартизація й сертифікація. – К., 2005
3. Медведєва О.І. Вибір і розрахунок посадок типових сполук: методичні вказівки до виконання курсової роботи з дисципліни «Метрологія, стандартизація й сертифікація». Частина 1 – К., 2007
4. Медведєва О.І. Вибір і розрахунок посадок типових сполук: варіанти завдань і креслення для виконання курсової роботи з дисципліни «Метрологія, стандартизація й сертифікація». Частина 2 – К., 2007















