124224 (689924)
Текст из файла
Министерство образования и наук
Российской Федерации
Саратовский государственный технический Университет
Кафедра: «Подъёмно-строительные и дорожно-монтажные машины и оборудование»
КУРСОВАЯ РАБОТА
по Рабочие процессы СДМ
по теме: «Расчет параметров резания автогрейдера и определение параметров виброплиты»
Выполнил: студент гр. ПСМ-31
Ефимов А.В.
Проверил: Куприянов М.В.
Саратов 2010 г.
Содержание
I. Расчет параметров резания автогрейдера
II. Определение параметров виброплиты
2.1 Назначение
2.2 Классификация
2.3 Устройство и процесс работы виброплиты
2.4 Выбор партатипа
2.5 Расчет параметров виброплиты
Список литературы
I. Расчет параметров резания автогрейдера
Данные для расчета:
М=13т Масса автогрейдера;
G=Mg=12*9,8=117,6кН;
L=5,3м Колёсная база автогрейдера;
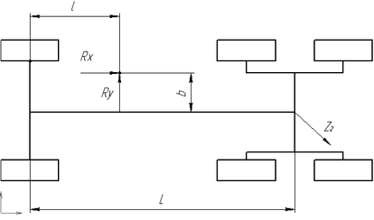
l=1,4м и b=0,84м расстояние до реакций опоры;
Kc=0,58; n=0,45; m=-0,35 Коэффициенты отклонения реакций на ноже;
f=0,1 коэффициент трения на ноже;
э=0,6 отношение нагрузки относительно мостов, экстремальное значение сцепного веса;
Значение коэффициента отклонения реакций на ноже Kx при соответствующем значении коэффициента положения центра тяжести C2:
| Kx | 0,2 | 0,4 | 0,6 | 0,8 | 1 | 0,83 | 0,58 | 0,28 | 0 |
| C2 | 0,1 | 0,2 | 0,3 | 0,4 | 0,5 | 0,6 | 0,7 | 0,8 | 0,9 |
Производим расчет при значении коэффициента положения центра тяжести C2=0,1 и соответствующему значение коэффициента отклонения реакций на ноже Kx=0,2.
Расчетная схема автогрейдера.
1. Находим продольную реакцию на ноже.
2. Находим суммарную реакцию грунта на задний мост автогрейдера со стороны грунта по формуле:
3.
4. Вертикальная реакция грунта определим по формуле:
5. Горизонтальная реакция грунта определим по формуле
6. Сила сопротивления перемещения автогрейдера:
7.
8. Вычисляем разницу
Если
оставляем полученное значение, если
то рассчитываем
и подставляем это значение, производим перерасчет со 2ого пункта до тех пор, пока разница не достигнет
.
9.
2’. Находим суммарную реакцию грунта на задний мост автогрейдера со стороны грунта
3’.
4’. Вертикальная реакция грунта определим по формуле:
5’ Горизонтальная реакция грунта определим по формуле
6’. Сила сопротивления перемещения автогрейдера:
7’.
8’. Вычисляем разницу
Если
оставляем полученное значение, если
то рассчитываем
и подставляем это значение, производим перерасчет со 2ого пункта до тех пор, пока разница не достигнет
.
Определяем боковые составляющие суммарных сил сцепления (1 алгоритм)
10.
11.
Определяем значение сцепного веса для переднего моста.
12.
При
решение по первому алгоритму,
При
решение по второму алгоритму,
Второй алгоритм:
1.
2.
3. Вычисляем разницу
Если
оставляем полученное значение, если
то рассчитываем
и подставляем это значение, производим перерасчет с 1ого пункта до тех пор, пока разница не достигнет
4.
Для облегчения расчетов воспользуемся программой MS Excel. Полученные данные сведём в таблицу.
| Kx= | 0,2 | Kx= | 0,2 | ||
| C2= | 0,1 | C2= | 0,1 | ||
| Rx= | 7,301835 | кН | Rx= | 3,724652 | кН |
| z2= | 11,07194 | кН | z2= | 11,40902 | кН |
| P2= | 6,643165 | кН | P2= | 6,845414 | кН |
| y2= | 0,28084 | кН | y2= | 0,143256 | кН |
| x2= | 6,649099 | кН | x2= | 6,846913 | кН |
| F= | 10,584 | кН | F= | 10,584 | кН |
| Rx'= | -3,9349 | кН | Rx'= | -3,73709 | кН |
| [Rx-Rx'] | 3,366934 | кН | [Rx-Rx'] | -0,01243 | кН |
| Rx"= | 3,724652 | кН | Rx"= | -3,05875 | кН |
| y1= | 1,532838 | кН | |||
| z1= | 104,8873 | кН | |||
| Q1= | 0,014614 | кН |
Производим расчет при значении коэффициента положения центра тяжести C2=0,2 и соответствующему значение коэффициента отклонения реакций на ноже Kx=0,4.
| Kx= | 0,4 | Kx= | 0,4 | Kx= | 0,4 | Kx= | 0,4 | ||||
| C2= | 0,2 | C2= | 0,2 | C2= | 0,2 | C2= | 0,2 | ||||
| Rx= | 14,29306 | кН | Rx= | 17,8451 | кН | Rx= | 4,997763 | кН | Rx= | 4,475042 | кН |
| z2= | 22,17315 | кН | z2= | 21,83844 | кН | z2= | 23,04906 | кН | z2= | 23,09831 | кН |
| P2= | 13,30389 | кН | P2= | 13,10307 | кН | P2= | 13,82943 | кН | P2= | 13,85899 | кН |
| y2= | 0,549733 | кН | y2= | 0,68635 | кН | y2= | 0,192222 | кН | y2= | 0,172117 | кН |
| x2= | 13,31525 | кН | x2= | 13,12103 | кН | x2= | 13,83077 | кН | x2= | 13,86006 | кН |
| F= | 9,408 | кН | F= | 9,408 | кН | F= | 9,408 | кН | F= | 9,408 | кН |
| Rx'= | 3,907245 | кН | Rx'= | 3,713029 | кН | Rx'= | 4,42277 | кН | Rx'= | 4,452057 | кН |
| [Rx-Rx'] | 10,38581 | кН | [Rx-Rx'] | 14,13207 | кН | [Rx-Rx'] | 0,574993 | кН | [Rx-Rx'] | 0,022985 | кН |
| Rx"= | 17,8451 | кН | Rx"= | 4,997763 | кН | Rx"= | 4,475042 | кН | Rx"= | 4,454146 | кН |
| y1= | 1,841652 | кН | |||||||||
| z1= | 92,93542 | кН |
Производим расчет при значении коэффициента положения центра тяжести C2=0,3 и соответствующему значение коэффициента отклонения реакций на ноже Kx=0,6.
| Kx= | 0,6 | Kx= | 0,6 | Kx= | 0,6 | Kx= | 0,6 | ||||
| C2= | 0,3 | C2= | 0,3 | C2= | 0,3 | C2= | 0,3 | ||||
| Rx= | 20,99308 | кН | Rx= | 31,68889 | кН | Rx= | 13,04686 | кН | Rx= | 12,28109 | кН |
| z2= | 33,30181 | кН | z2= | 32,29393 | кН | z2= | 34,05058 | кН | z2= | 34,12274 | кН |
| P2= | 19,98108 | кН | P2= | 19,37636 | кН | P2= | 20,43035 | кН | P2= | 20,47365 | кН |
| y2= | 0,807426 | кН | y2= | 1,218803 | кН | y2= | 0,501802 | кН | y2= | 0,47235 | кН |
| x2= | 19,99739 | кН | x2= | 19,41465 | кН | x2= | 20,43651 | кН | x2= | 20,47909 | кН |
| F= | 8,232 | кН | F= | 8,232 | кН | F= | 8,232 | кН | F= | 8,232 | кН |
| Rx'= | 11,76539 | кН | Rx'= | 11,18265 | кН | Rx'= | 12,20451 | кН | Rx'= | 12,24709 | кН |
| [Rx-Rx'] | 9,227686 | кН | [Rx-Rx'] | 20,50623 | кН | [Rx-Rx'] | 0,842344 | кН | [Rx-Rx'] | 0,033995 | кН |
| Rx"= | 31,68889 | кН | Rx"= | 13,04686 | кН | Rx"= | 12,28109 | кН | Rx"= | 12,25018 | кН |
| y1= | 5,054141 | кН | |||||||||
| z1= | 79,17888 | кН | |||||||||
| Q1= | 0,063832 | кН |
Производим расчет при значении коэффициента положения центра тяжести C2=0,4 и соответствующему значение коэффициента отклонения реакций на ноже Kx=0,8.
| Kx= | 0,8 | Kx= | 0,8 | Kx= | 0,8 | Kx= | 0,8 | ||||
| C2= | 0,4 | C2= | 0,4 | C2= | 0,4 | C2= | 0,4 | ||||
| Rx= | 27,41971 | кН | Rx= | 45,27296 | кН | Rx= | 21,08603 | кН | Rx= | 20,08781 | кН |
| z2= | 44,45622 | кН | z2= | 42,77389 | кН | z2= | 45,05305 | кН | z2= | 45,14711 | кН |
| P2= | 26,67373 | кН | P2= | 25,66434 | кН | P2= | 27,03183 | кН | P2= | 27,08827 | кН |
| y2= | 1,054604 | кН | y2= | 1,741268 | кН | y2= | 0,811001 | кН | y2= | 0,772608 | кН |
| x2= | 26,69457 | кН | x2= | 25,72334 | кН | x2= | 27,04399 | кН | x2= | 27,09928 | кН |
| F= | 7,056 | кН | F= | 7,056 | кН | F= | 7,056 | кН | F= | 7,056 | кН |
| Rx'= | 19,63857 | кН | Rx'= | 18,66734 | кН | Rx'= | 19,98799 | кН | Rx'= | 20,04328 | кН |
| [Rx-Rx'] | 7,781142 | кН | [Rx-Rx'] | 26,60562 | кН | [Rx-Rx'] | 1,098041 | кН | [Rx-Rx'] | 0,044531 | кН |
| Rx"= | 45,27296 | кН | Rx"= | 21,08603 | кН | Rx"= | 20,08781 | кН | Rx"= | 20,04733 | кН |
| y1= | 8,266908 | кН | |||||||||
| z1= | 65,42216 | кН | |||||||||
| Q1= | 0,126363 | кН |
Производим расчет при значении коэффициента положения центра тяжести C2=0,5 и соответствующему значение коэффициента отклонения реакций на ноже Kx=1.
| Kx= | 1 | Kx= | 1 | Kx= | 1 | Kx= | 1 | ||||
| C2= | 0,5 | = | 0,5 | C2= | 0,5 | C2= | 0,5 | ||||
| Rx= | 33,58937 | кН | Rx= | 58,61291 | кН | Rx= | 29,11527 | кН | Rx= | 27,89457 | кН |
| z2= | 55,63485 | кН | z2= | 53,27686 | кН | z2= | 56,05645 | кН | z2= | 56,17147 | кН |
| P2= | 33,38091 | кН | P2= | 31,96612 | кН | P2= | 33,63387 | кН | P2= | 33,70288 | кН |
| y2= | 1,291899 | кН | y2= | 2,254343 | кН | y2= | 1,119818 | кН | y2= | 1,072868 | кН |
| x2= | 33,4059 | кН | x2= | 32,04551 | кН | x2= | 33,6525 | кН | x2= | 33,71996 | кН |
| F= | 5,88 | кН | F= | 5,88 | кН | F= | 5,88 | кН | F= | 5,88 | кН |
| Rx'= | 27,5259 | кН | Rx'= | 26,16551 | кН | Rx'= | 27,7725 | кН | Rx'= | 27,83996 | кН |
| [Rx-Rx'] | 6,063467 | кН | [Rx-Rx'] | 32,4474 | кН | [Rx-Rx'] | 1,342769 | кН | [Rx-Rx'] | 0,054618 | кН |
| Rx"= | 58,61291 | кН | Rx"= | 29,11527 | кН | Rx"= | 27,89457 | кН | Rx"= | 27,84492 | кН |
| y1= | 11,47969 | кН | |||||||||
| z1= | 51,66543 | кН | |||||||||
| Q1= | 0,222193 | кН |
Производим расчет при значении коэффициента положения центра тяжести C2=0,6 и соответствующему значение коэффициента отклонения реакций на ноже Kx=0,83.
| Kx= | 0,83 | Kx= | 0,83 | Kx= | 0,83 | Kx= | 0,83 | ||||
| C2= | 0,6 | C2= | 0,6 | C2= | 0,6 | C2= | 0,6 | ||||
| Rx= | 28,36116 | кН | Rx= | 61,12762 | кН | Rx= | 36,69065 | кН | Rx= | 35,68305 | кН |
| z2= | 67,88751 | кН | z2= | 64,7999 | кН | z2= | 67,10261 | кН | z2= | 67,19756 | кН |
| P2= | 40,7325 | кН | P2= | 38,87994 | кН | P2= | 40,26157 | кН | P2= | 40,31854 | кН |
| y2= | 1,090814 | кН | y2= | 2,351062 | кН | y2= | 1,411179 | кН | y2= | 1,372425 | кН |
| x2= | 40,74711 | кН | x2= | 38,95096 | кН | x2= | 40,28629 | кН | x2= | 40,34189 | кН |
| F= | 4,704 | кН | F= | 4,704 | кН | F= | 4,704 | кН | F= | 4,704 | кН |
| Rx'= | 36,04311 | кН | Rx'= | 34,24696 | кН | Rx'= | 35,58229 | кН | Rx'= | 35,63789 | кН |
| [Rx-Rx'] | -7,68195 | кН | [Rx-Rx'] | 26,88066 | кН | [Rx-Rx'] | 1,108364 | кН | [Rx-Rx'] | 0,045164 | кН |
| Rx"= | 61,12762 | кН | Rx"= | 36,69065 | кН | Rx"= | 35,68305 | кН | Rx"= | 35,64199 | кН |
| y1= | 14,68495 | кН |
Производим расчет при значении коэффициента положения центра тяжести C2=0,7 и соответствующему значение коэффициента отклонения реакций на ноже Kx=0,58.
| Kx= | 0,58 | Kx= | 0,58 | Kx= | 0,58 | Kx= | 0,58 | |||||||||||||||
| C2= | 0,7 | C2= | 0,7 | C2= | 0,7 | C2= | 0,7 | |||||||||||||||
| Rx= | 20,33566 | кН | Rx= | 60,99074 | кН | Rx= | 44,15873 | кН | Rx= | 43,46723 | кН | |||||||||||
| z2= | 80,40376 | кН | z2= | 76,5728 | кН | z2= | 78,15889 | кН | z2= | 78,22405 | кН | |||||||||||
| P2= | 48,24225 | кН | P2= | 45,94368 | кН | P2= | 46,89533 | кН | P2= | 46,93443 | кН | |||||||||||
| y2= | 0,782141 | кН | y2= | 2,345798 | кН | y2= | 1,698413 | кН | y2= | 1,671816 | кН | |||||||||||
| x2= | 48,24859 | кН | x2= | 46,00352 | кН | x2= | 46,92608 | кН | x2= | 46,9642 | кН | |||||||||||
| F= | 3,528 | кН | F= | 3,528 | кН | F= | 3,528 | кН | F= | 3,528 | кН | |||||||||||
| Rx'= | 44,72059 | кН | Rx'= | 42,47552 | кН | Rx'= | 43,39808 | кН | Rx'= | 43,4362 | кН | |||||||||||
| [Rx-Rx'] | -24,3849 | кН | [Rx-Rx'] | 18,51522 | кН | [Rx-Rx'] | 0,760647 | кН | [Rx-Rx'] | 0,031033 | кН | |||||||||||
| Rx"= | 60,99074 | кН | Rx"= | 44,15873 | кН | Rx"= | 43,46723 | кН | Rx"= | 43,43902 | кН | |||||||||||
| y1= | 17,88844 | кН | ||||||||||||||||||||
| z1= | 24,16242 | кН | ||||||||||||||||||||
| Q1= | 0,740341 | кН | ||||||||||||||||||||
| Второй алгоритм | ||||||||||||||||||||||
| z1= | 35,28 | кН | z1= | 25,90745 | кН | |||||||||||||||||
| Rx'= | 36,622 | кН | Rx'= | 36,622 | кН | |||||||||||||||||
| [Rx-Rx'] | 6,845233 | кН | [Rx-Rx'] | 0,022542 | кН | |||||||||||||||||
| Rx"= | 36,64454 | кН | Rx"= | 21,58955 | кН | |||||||||||||||||
Производим расчет при значении коэффициента положения центра тяжести C2=0,8 и соответствующему значение коэффициента отклонения реакций на ноже Kx=0,28.
| Kx= | 0,28 | Kx= | 0,28 | Kx= | 0,28 | |||
| C2= | 0,8 | C2= | 0,8 | C2= | 0,8 | |||
| Rx= | 10,13447 | кН | Rx= | 58,79299 | кН | Rx= | 51,54485 | кН |
| z2= | 93,12502 | кН | z2= | 88,53989 | кН | z2= | 89,22289 | кН |
| P2= | 55,87501 | кН | P2= | 53,12393 | кН | P2= | 53,53373 | кН |
| y2= | 0,389787 | кН | y2= | 2,261269 | кН | y2= | 1,982494 | кН |
| x2= | 55,87637 | кН | x2= | 53,17204 | кН | x2= | 53,57043 | кН |
| F= | 2,352 | кН | F= | 2,352 | кН | F= | 2,352 | кН |
| Rx'= | 53,52437 | кН | Rx'= | 50,82004 | кН | Rx'= | 51,21843 | кН |
| [Rx-Rx'] | -43,3899 | кН | [Rx-Rx'] | 7,972954 | кН | [Rx-Rx'] | 0,326424 | кН |
| Rx"= | 58,79299 | кН | Rx"= | 51,54485 | кН | Rx"= | 51,2481 | кН |
| y1= | 21,21269 | кН | ||||||
| z1= | 10,33641 | кН | ||||||
| Q1= | 2,052229 | кН | ||||||
| Второй алгоритм | ||||||||
| z1= | 23,52 | кН | z1= | 16,30966 | кН | |||
| Rx'= | 43,42755 | кН | Rx'= | 43,42755 | кН | |||
| [Rx-Rx'] | 8,1173 | кН | [Rx-Rx'] | -15,2367 | кН | |||
| Rx"= | 28,19081 | кН | Rx"= | 13,59138 | кН | |||
Производим расчет при значении коэффициента положения центра тяжести C2=0,9 и соответствующему значение коэффициента отклонения реакций на ноже Kx=0.
| Kx= | 0 | |
| C2= | 0,9 | |
| Rx= | 0 | кН |
| z2= | 105,84 | кН |
| P2= | 63,504 | кН |
| y2= | 0 | кН |
| x2= | 63,504 | кН |
| F= | 1,176 | кН |
| Rx'= | 62,328 | кН |
| [Rx-Rx'] | -62,328 | кН |
| Rx"= | 56,66182 | кН |
| y1= | 0 | кН |
| z1= | 11,76 | кН |
| Q1= | 0 | кН |
В результате данных полученных при расчете строим график зависимости грунта от положения центра тяжести.
Характеристики
Тип файла документ
Документы такого типа открываются такими программами, как Microsoft Office Word на компьютерах Windows, Apple Pages на компьютерах Mac, Open Office - бесплатная альтернатива на различных платформах, в том числе Linux. Наиболее простым и современным решением будут Google документы, так как открываются онлайн без скачивания прямо в браузере на любой платформе. Существуют российские качественные аналоги, например от Яндекса.
Будьте внимательны на мобильных устройствах, так как там используются упрощённый функционал даже в официальном приложении от Microsoft, поэтому для просмотра скачивайте PDF-версию. А если нужно редактировать файл, то используйте оригинальный файл.
Файлы такого типа обычно разбиты на страницы, а текст может быть форматированным (жирный, курсив, выбор шрифта, таблицы и т.п.), а также в него можно добавлять изображения. Формат идеально подходит для рефератов, докладов и РПЗ курсовых проектов, которые необходимо распечатать. Кстати перед печатью также сохраняйте файл в PDF, так как принтер может начудить со шрифтами.















