124088 (689815), страница 3
Текст из файла (страница 3)
,
где Мтг и Мтр моменты трения соответственно на торце гайки и на резьбе.
На основе этой формулы установлена зависимость между моментом на ключе и усилием затяжки:
,
где Мкл - момент на ключе, Нм;
Рз - осевое усилие затяжки, Н;
Dr - наибольший диаметр опорной поверхности гайки, мм;
d2 - средний диаметр резьбы, мм;
Р - шаг резьбы, мм;
d0 - диаметр отверстия под болт или наименьший опорный диаметр гайки, мм;
r - коэффициент трения по торцу гайки;
f’p - приведенный коэффициент трения в резьбе, учитывает угол профиля (для метрической резьбы =60 );
fp - коэффициент трения в резьбе; f ’p=f p /cos(/2)
Для расчета усилия затяжки воспользуемся
где Ft1, Ft2 – окружная составляющая соответственно для шестерни и колеса, мм;
где Fr1, Fr2 – радиальная составляющая соответственно для шестерни и колеса, мм;
где Fа1, Fаt2 – осевая составляющая соответственно для шестерни и колеса, мм;
T2=150 – крутящий момент на выходном валу, Нм;
d2=0,11 – диаметр среднего делительного окружности колеса, м.
Ft1= Ft2=2150/0,11=2727.27Н=2.72кН.
Ft3= Ft4=234.7/0,13=533Н=0.5кН.
H
H
Быстроходный вал
1) Горизонтальная плоскость
a=0,03; b=0,07
mA=NB(a+b)-Fr1a=0NB=Fr1a/(a+b)=9920.03/ 0,1=297.6Н
mB=-NA(a+b)+ Fr1 b=0 NA= Fr1 b/(a+b)=9920,07/0,1=694Н
2) Вертикальная плоскость
mA=RB(a+b)+Ft1a=0RB=-Ft1a/(a+b)= -27200.03/0.1=-816Н
mB=-RA(a+b)- Ft1 b=0 RA=- Ft1 b/(a+b)=-27200,07/0.1=-1904Н
Б) Промежуточный вал
1)Горизонтальная плоскость
a=0,03;c=0,037; d=0,034
mC=ND(a+c+d)+Fr2(c+a)-Fr3a=0
ND= (Fr3a –Fr2(a+c))/(c+d)=1980.03-9920,067/0.1=-605H
mD=-NC(c+a+d)+Fr3(c+d)-Fr2d=0
NC= Fr3(c+d)-Ft2d/(c+a+d)=1980.071-9920.034/0.1=-197H
2) Вертикальная плоскость.
mC=RD(a+c+d)-Ft2(a+c) -Ft3a=0
RD=(Ft2(a+c)+ Ft3a) /(a+c+d)=27200,067+5000.03/0.1=1974 H
mD=-RC(a+c+d)+Ft2d+ Ft3(d+c)=0
RC= Ft2d+ Ft3(d+c)/(a+c+d)=27200,034+5000.071/0.1=1280 H
Тихоходный вал
1)Горизонтальная плоскость
e=0,073; d=0,034
mE=NF(e+d)+Fr4e=0NF=-Fr4e/(e+d)=-1980.073/ 0,12=-120 Н
mF=-NE(e+d)- Fr4 d=0 NE= -Fr4 d/(e+d)=-1980,034/0,12=-56.1Н
2) Вертикальная плоскость.
mE=RF(e+d)+Ft4e=0RF=-Ft4e/(e+d)=-5000.073/ 0,12=-304 Н
mF=-RE(e+d)- Ft4 d=0 RE= -Ft4 d/(e+d)=-5000,034/0,12=-141.6Н
где К=1.5 коэффициент неравномерности затяжки
Рз.А=1.5(1904+694/0,1)/2=6663 Н
Рз.В=1.5(816+297/0,1)/2=2839 Н
Рз.С=1.5(1280+197/0,1)/2=2437 Н
Рз.Д=1.5(1974+605/0,1)/2=6018 Н
Рз.Е=1.5(141+120/0,1)/2=1005 Н
Рз.А=1.5(304+56,1/0,1)/2=648 Н
За осевое усилие затяжки Рз, Н принимаем значение равное Рз= 6663Н.
Определим усилием затяжки на ключе:
Расчеты производим в системе «MathCAD».
Усилие затяжки на ключе должно быть равным М=18.458 Нм
6. Расчет сборочных размерных цепей
Расчет размерных цепей производим в программе «Unigraphics NX3 ».
Перечислим последовательность действий расчета размерных цепей.
●Нормируем составляющие элементы размерной цепи. Для этого заходим в модуль «Моделирование» →Инструменты→Ассоциативные модели→Геометрические допуски. Далее производится нормирование элементов.
●В новом файле создают сборку из элементов входящих в состав размерной цепи.
●Заходим в модуль «Анализ размерных цепей»: «Анализ» → «Анализ размерных цепей».
● Импортируем допуски составляющих элементов размерной цепи в сборку.
● Проверяем наличие сопряжений между элементами сборки. В месте, где необходимо произвести измерение (например, расстояние между распорной втулкой и кольцом подшипника ), удаляем сопряжение.
● Производим измерение и рассчитывают расстояние между двумя элементами сборки.
● Сверяем полученные результаты с конструкторскими.
● Если собираемость конструкции не может быть достигнута по схеме полной взаимозаменяемости, то либо назначаются более жесткие допуски на размеры составляющих звеньев, либо вводится компенсирующее регулировочное звено.
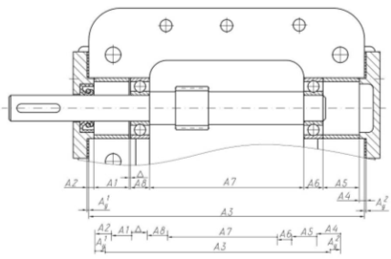
Расчет размерной цепи для быстроходного вала
Искомый зазор между втулкой и подшипником в этом случае определяется по формуле:
, где
, где
Нормируем элементы, входящие в состав размерной цепи. Создаем сборку, и по вышеприведенной методике рассчитываем искомый зазор между втулкой и торцом подшипника.
Результаты расчета в системе «Unigraphics NX3 ».
Measurement: Zazor
Units: mm
Direction: XC 0.0000, YC 1.0000, ZC 0.0000
Nominal: 0.2000
Minimum: 0.1000
Maximum: 0.9070
Variation: 0.8070
Contributor 1: 25% Pod202: Feature 1: DIM +0.0 -0.200
Contributor 2: 25% Pod202: Feature 1: DIM +0.0 -0.200
Contributor 3: 12% Krishka koprysa nij: Feature 1: DIM +0.0 -0.100
Contributor 4: 11% Val tixoxod.: Feature 1:DIM +0.0 -0.087
Contributor 5: 7% Krishka tixoxod.: Feature 1:DIM 0.03 -0.03
Contributor 6: 7% Flanec tixoxod.: Feature 1:DIM 0.03 -0.03
Contributor 7: 4% Prokladka1: Feature 1:DIM +0.0 -0.03
Contributor 8: 4% Prokladka1: Feature 1:DIM +0.0 -0.03
Contributor 9: 2% Vtylka tixoxod111: Feature 1:DIM -0.060 -0.080
Contributor 10: 2% Vtylka tixoxod111: Feature 1:DIM -0.060 -0.080
Заложенные в конструкцию нормы точности не обеспечивали сборку по методу полной взаимозаменяемости. осле перенормирования размера втулки, участвующего в размерной цепи, с размера 21мм до размера 20.9мм, выполненного по 7 квалитету, что вполне достижимо, собираемость обеспечилась по методу полной взаимозаменяемости.
Рассчитаем размерную цепь аналитическим способом.
A
, A
, A3- увеличивающие звенья;
A1, A2, A4, A5, A6, A7, A8 – уменьшающие звенья.
A1= A5=20,9
мм,
A2= A4=4
мм,
A3= 159-0,1 мм,
A
= A
=1-0,03 мм,
A6= A8=11-0,2 мм,
A7= 89-0,087 мм.
= A3max+A
max+A
max-A1min-A2min-A4min-A5min-A6min-A7min-A8min
= A3min+A
min+A
min-A1max-A2max-A4max-A5max-A6max-A7max-A8max
= 159+2-20.82-20.82-3.97-3.97-88.913-10.8-10.8=0.907
=159.8+0.97+0.97-20.84-20.84-4.03-4.03-89-11-11=0.1
Результаты расчета аналитическим методом и в системе «Unigraphics NX3» приводят к аналогичному результату.
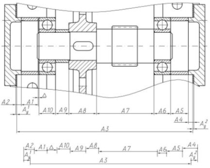
Расчет размерной цепи для промежуточного вала
Искомый зазор между втулкой и подшипником в этом случае определяется по формуле:
, где
, где
Нормируем элементы, входящие в состав размерной цепи. Создаем сборку, и по вышеприведенной методике рассчитываем искомый зазор между втулкой и торцом подшипника.
Результаты расчета в системе «Unigraphics NX3 ».
Measurement: Zazor
Units: mm
Direction: XC 0.0000, YC -1.0000, ZC 0.0000
Nominal: 0.1000
Minimum: 0.1000
Maximum: 1.0000
Variation: 0.9000
Contributor 1: 22% Pod.205:Feature 1:DIM +0.0 -0.200
Contributor 2: 22% Pod.205:Feature 1:DIM +0.0 -0.200
Contributor 3: 11% Krishka koprysa nij.:Feature 1:DIM +0.0 -0.100
Contributor 4: 7% Krishka promejyt.:Feature 1:DIM 0.03 -0.03
Contributor 5: 7% Val tixoxod1.:Feature 1:DIM +0.0 -0.060
Contributor 6: 7% Krishka promejyt.:Feature 1:DIM 0.03 -0.03
Contributor 7: 6% Vtylka tixoxod:Feature 1:DIM -0.110 -0.160
Contributor 8: 6% Vtylka tixoxod:Feature 1:DIM -0.110 -0.160
Contributor 9: 3% Prokladka2:Feature 1:DIM +0.0 -0.03
Contributor 10: 3% Vtylka1:Feature 1:DIM +0.0 -0.030
Contributor 11: 3% Koleso 1:Feature 1:DIM +0.0 -0.03
Contributor 12: 3% Prokladka2:Feature 1:DIM +0.0 -0.03
Заложенные в конструкцию нормы точности не обеспечивали сборку по методу полной взаимозаменяемости. После перенормирования размера втулки, участвующего в размерной цепи, с размера 16 мм до размера 15.95 мм, выполненного по 7 квалитету, что вполне достижимо, собираемость обеспечилась по методу полной взаимозаменяемости.
Рассчитаем размерную цепь аналитическим способом.
A
, A
, A3- увеличивающие звенья;
A1, A2, A4, A5, A6, A7, A8, A9, A10,– уменьшающие звенья.
A1= A5=15,95
мм,
A
= A
=1-0,03 мм,
A2= A4=5
мм,
A3= 159-0,1 мм,
A6= A10=15-0,2 мм,
A7= 52-0,06 мм,
A8= 25-0,03 мм,
A9= 11-0,03 мм.
= A3max+A
max+A
max-A1min-A2min-A4min-A5min-A6min-A7min-A8min-A9min-A10min
= A3min+A
min+A
min-A1max-A2max-A4max-A5max-A6max-A7max-A8max -A9max -A10max
= 159+2-15,79-15,79-4,97-4,97-14,8-14,8-51,94-24,97-11,97=1
=159.8+0.97+0.97-15,84-15,84-5,03-5,03-15-15-52-25-12=0.1
Результаты расчета аналитическим методом и в системе «Unigraphics NX3» приводят к аналогичному результату.
Расчет размерной цепи для тихоходного вала
Искомый зазор между втулкой и подшипником в этом случае определяется по формуле:
, где
, где
Нормируем элементы, входящие в состав размерной цепи. Создаем сборку, и по вышеприведенной методике рассчитываем искомый зазор между втулкой и торцом подшипника.















