123943 (689725)
Текст из файла
МИНИСТЕРСТВО ОБРАЗОВАНИЯ РФ
МАГНИТОГОРСКИЙ ГОСУДАРСТВЕННЫЙ УНИВЕРСИТЕТ
Кафедра общетехнических дисциплин
Курсовая работа
По дисциплине
«Основы современного промышленного производства»
На тему:
«Производство настольных светильников»
Магнитогорск 2008
Содержание
Введение
-
Классификация светильников
-
Категории светильников
-
Виды вариантов светильника
-
Окончательный выбор конструкции светильника
-
Технология светильника
-
Сборочный чертёж светильника
6.1 Чертёж лицевой стенки светильника
6.2 Чертёж боковой стенки светильника
6.3 Основание светильника
6.4 Основание плафона
6.5 Стойка светильника
-
Проектирование промышленной зоны
-
Технологическая карта. Изготовление светильника
-
Расчёт материала и экономическое обоснование изготовления светильника
-
Эргономическое обоснование изготовления светильника
Заключение
Список литературы
Введение
Выбор для разработки светильника, послужил тот факт, что подобные изделия, очень востребуем в обществе, и являются как средством украшения интерьера, так и непосредственно вещью для его прямого назначения. Настольные светильники предназначены для обеспечения местного освещения рабочей зоны. Различные варианты исполнения, оригинальный современный дизайн и широкие функциональные возможности обеспечивают любые запросы потребителей.
Свет – это лучистая энергия, делающая внешний мир видимым. Без него невозможна жизнь – не удивительно, что во многих странах поклонялись Светилу. Никто не знает, кто первый додумался освещать свое жилище и сказал историческую фразу, изменившую ход цивилизации: «Я могу продлить день!», но сегодня в каждом доме есть небольшое воплощение великого Ра, и не одно, а целые гирлянды маленьких солнц.
Существует старая теория, что свет – это проблема сугубо инженерная, и занимаются этим исключительно электрики. В том смысле, что специалисты должны решить множество технических вопросов: рассчитать площадь сечения электропроводки, разработать схему подключения всех осветительных приборов и т.п. А потом все это смонтировать. О возможности светодизайна при этом скромно умалчивают, оставляя после себя одинокую (без какого-либо оборудования) сиротливо свисающую вниз лампочку накаливания…
На самом же деле, при всей своей рациональности, свет несет в себе немалую долю эстетической и эмоциональной нагрузки. Причем эстетическое решение сегодня большей, частью предшествует техническому. Дизайнер или хозяин «объекта» разрабатывает схему будущего освещения и передаёт её специалистам-электрикам для воплощения в жизнь.
1. Классификация светильников
По основным параметрам
| 1 | 2 | 3 | 4 | 5 | 6 | 7 | 8 |
| Буква, обозна-чающая источник света | Буква, обозна-чающая способ установ-ки светиль-ников | Буква, обознача-ющая основное назначе-ние светильника | Двузнач-ное число (01–99), обознач-ающее № серии | Цифра, обознача-ющая количест-во ламп в светиль-нике | Число, обознача-ющее мощность ламп, Вт | Трехзнач-ное число (001–999), обознача-ющее № модифи-кации | Буква и цифра, обознача-ющие климати-ческое исполнение и категорию размещения светильника |
Классификация по типу применяемого источника света (первая буква)
| Тип источника света (лампа) | Символ (буква) в обозначении типа светильника |
| Накаливания общего назначения | Н |
| Лампы-светильники (рефлекторные и диффузные) | С |
| Кварцевые галогенные (накаливания) | И |
| Линейные люминесцентные | Л |
| Фигурные люминесцентные | Ф |
| Эритемные люминесцентные | Э |
| Ртутные типа ДРЛ | Р |
| Ртутные типа ДРИ, ДРИШ | Г |
| Натриевые типа ДНаТ | Ж |
| Бактерицидные | Б |
| Ксеноновые трубчатые | К |
Классификация по способу установки (вторая буква)
| Способ установки светильника | Символ (буква) в обозначении типа светильника |
| Подвесные | С |
| Потолочные | П |
| Встраиваемые | В |
| Пристраиваемые | Д |
| Настенные | Б |
| Настольные, опорные | Н |
| Напольные, венчающие | Т |
| Консольные, торцевые | К |
| Ручные | Р |
| Головные | Г |
Классификация по основному назначению светильника (третья буква)
| Назначение светильника | Символ (буква) в обозначении типа светильника |
| Для промышленных и производственных зданий | П |
| Для общественных зданий | О |
| Для жилых (бытовых) помещений | Б |
| Для наружного освещения | У |
| Для рудников и шахт | Р |
| Для кинематографических и телевизионных студий | Т |
2. Категории светильников
Металлогалогеновые светильники – светильники, предназначенные для использования с металлогалогеновой лампой. Такой светильник, при небольших габаритах, дает очень яркий свет и при этом отличается великолепной цветопередачей и наилучшей для своих габаритных размеров светоотдачей.
Люминесцентные светильники – наиболее экономичные, наилучшие по светоотдаче и продолжительности жизни лампы светильники. Наиболее подходящий вариант светильников для общего освещения. Недостатками являются большие габаритные размеры и недостаточно высокая цветопередача люминесцентных ламп. Этот недостаток следует преодолевать, используя комбинированное освещение, сочетая общее освещение люминесцентными лампами и местное освещение другими типами светильников.
Прожекторы – светильники, оборудованные системой линз или зеркальных отражателей, с целью фокусировки пучка света в зависимости от поставленных задач. Могут применяться для освещения больших открытых пространств, подсветки зданий и сооружений и других аналогичных задач.
Люстры светильники для небольших помещений. Выполняют декоративные функции и функции потолочных светильников общего освещения. Применяются в сочетании со светильниками местного освещения. В качестве источника света обычно применяются лампы накаливания или компактные энергосберегающие лампы.
Торшеры напольные светильники местного освещения, выполняют декоративную функцию.
Настольные лампы используются для освещения рабочего места.
3. Виды вариантов светильника
На рис. 1, представлены варианты настольных светильников.
а). Светильник, изготовленный из точёной стойки и выпиленных стенок в качестве абажура.
б). Светильник, склеенный из кусков бруска.
в). Очень простой светильник, так же и прост в изготовлении.
г). Светильник с точёной стойкой и готовым стеклянным плафоном.
Рис. 1
4. Окончательный выбор конструкции светильника
| Вариант | Потребное оборудование и инструменты | Время изготовления, Час | Материалы и комплектующие детали |
| А | Токарный станок по дереву, стамески (реерный, плоский, фасонный), электролобзик и набор пилок. | 7 | Заготовка из древесины (сосна), фанерки, ОРК стекло, клей ПВА. |
| Б | Электролобзик, набор пилок, фрезерная машинка, фрезы, дрель, крестовая отвёртка. | 5 | Доска (тридцатка), саморезы, клей ПВА, рифлёное стекло. |
| В | Токарный станок по дереву, стамеска плоская, электролобзик и набор пилок. | 4 | Доска (двадцатка и тридцатка), клей ПВА, обычное стекло. |
| Г | Токарный станок по дереву, резцы (реерный, плоский, фасонный). | 2 | Заготовка из древесины (сосна). |
5. Технология светильника
Процесс изготовления светильника протекает в 6 стадий.
Стадии изготовления светильника:
-
Выбор варианта с габаритными размерами, по чертёжу.
-
Подготовка материалов для изготовления деталей с учётом размеров и припусков для распилки и шлифовки.
-
Распилка фанеры по заданным параметрам чертежа и отшлифовка деталей наждачной бумагой.
-
Вытачивание стойки на токарном станке.
-
Подготовка и скрепление деталей, будущего, светильника.
-
Нанесение лака или морилки на деревянные части светильника.
6. Сборочный чертёж светильника
6.1 Чертёж лицевой стенки светильника
6.2 Чертёж боковой стенки светильника
6.3 Основание светильника
6.4 Основание плафона
6.5 Стойка светильника
7. Проектирование промышленной зоны
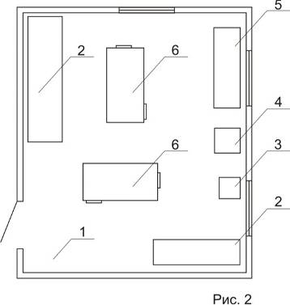
Производство светильников будет осуществляться в небольшой частной мастерской, площадь которого будет составлять, около, 20 м2. Примерный проект промышленной зоны мастерской, с расположением необходимого оборудования и инвентаря представлен на рис. 2, где:
-
мастерское помещение;
-
шкафы и стеллажи;
-
наждачный станок;
-
сверлильный станок;
-
токарный станок по дереву;
-
столярные верстаки.
Число работников в такой мастерской не должно превышать более четырёх человек. Оптимальным вариантом для изготовления изделий, считается – двое работников. При производстве каждый работник выполняет свою работу, не мешая другому работнику. Такое разделение труда позволит качественно, быстро и конвеерно производить изготовляемую продукцию.
Непосредственное изготовление, представленного в проекте, светильников будет осуществляться серийным производством. При этом будет меняться, лишь, дизайнерское решение в изготовлении светильников. А также некоторые изделия, будут выполняться по индивидуальным предпочтениям клиентов.
Характеристики
Тип файла документ
Документы такого типа открываются такими программами, как Microsoft Office Word на компьютерах Windows, Apple Pages на компьютерах Mac, Open Office - бесплатная альтернатива на различных платформах, в том числе Linux. Наиболее простым и современным решением будут Google документы, так как открываются онлайн без скачивания прямо в браузере на любой платформе. Существуют российские качественные аналоги, например от Яндекса.
Будьте внимательны на мобильных устройствах, так как там используются упрощённый функционал даже в официальном приложении от Microsoft, поэтому для просмотра скачивайте PDF-версию. А если нужно редактировать файл, то используйте оригинальный файл.
Файлы такого типа обычно разбиты на страницы, а текст может быть форматированным (жирный, курсив, выбор шрифта, таблицы и т.п.), а также в него можно добавлять изображения. Формат идеально подходит для рефератов, докладов и РПЗ курсовых проектов, которые необходимо распечатать. Кстати перед печатью также сохраняйте файл в PDF, так как принтер может начудить со шрифтами.















