123875 (689676)
Текст из файла
Оглавление
Задание
1. Выбор электродвигателя и кинематический расчет
2. Выбор материалов шестерен и колес и определение допускаемых напряжений
3. Расчет тихоходной ступени редуктора
4. Расчет быстроходной ступени редуктора
5. Основные размеры корпуса и крышки редуктора
6. Расчет ведомого вала и расчет подшипников для него
7. Расчет ведущего вала и расчет подшипников для него
8. Расчет промежуточного вала и расчет подшипников для него
9. Смазка
10. Проверка прочности шпоночных соединений
11. Выбор муфт
Список использованной литературы
Приложение: спецификации редуктора, привода, муфты
Задание
Спроектировать привод ленточного конвейера.
Кинематическая схема привода
Мощность на валу барабана: Nвых = 1 кВт.
Скорость ленты конвейера: v = 0,7 м/с.
Диаметр барабана: d = 200 мм.
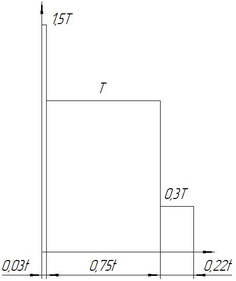
График нагрузки
Срок службы: 15 лет.
Ксут = 0,25
Кгод = 0,7
-
Выбор электродвигателя и кинематический расчет
КПД привода: η = η12 · η22 · η34 = 0,982 · 0,972 · 0,994 = 0,868
η1 = 0,98 – КПД муфты;
η2 = 0,97 – КПД закрытой зубчатой передачи;
η3 = 0,99 – КПД пары подшипников качения. табл. 1.1, [2]
Требуемая мощность двигателя:
Nдвn =
= 1 / 0,868 = 1,15 кВт.
Выбираем электродвигатель: АИР80В4; Nдв = 1,5 кВт; nдв = 1410 мин-1
dвых × l = 22 × 50 – размеры выходного конца вала.
Частота вращения барабана:
nвых = 60v / πd = 60 · 0,7 / 3,14 · 0,2 = 66,88 мин-1
Передаточное число:
U = U1 · U2 = nдв / nвых = 1410 / 66,88 = 21,1
Передаточное число тихоходной ступени:
U2 = 0,88
= 0,88
= 4,04 табл. 1.3 [2].
Передаточное число быстроходной ступени:
U1 = U / U2 = 21,1 / 4,04 = 5,22
Частота вращения валов:
n1 = nдв = 1410 мин-1
n2 = n1 / U1 = 1410 / 5,22 = 270 мин-1
n3 = 66,88 мин-1
Мощности на валах:
N1 = Nдв · η1 · η3 = 1,15 · 0,98 · 0,99 = 1,12 кВт
N2 = N1 · η2 · η3 = 1,12 · 0,97 · 0,99 = 1,08 кВт
N3 = N2 · η2 · η3 = 1,08 · 0,97 · 0,99 = 1,04 кВт
Nвых = 1 кВт
Вращающие моменты на валах:
Т1 = 9550 N1 / n1 = 9550 · 1,12 / 1410 = 7,6 Н·м
Т2 = 9550 N2 / n2 = 9550 · 1,08 / 270 = 38,2 Н·м
Т3 = 9550 N3 / n3 = 9550 · 1,04 / 66,88 = 148,5 Н·м
Т4 = 9550 Nвых / nвых = 9550 · 1 / 66,88 = 142,8 Н·м
-
Выбор материалов шестерен и колес и определение допускаемых напряжений
Материал колес – сталь 45; термообработка – улучшение: 235…262 НВ2; 248,5 НВСР2; σв = 780 МПа; σ-1 = 540 МПа; τ = 335 МПа.
Материал шестерен – сталь 45; термообработка – улучшение: 269…302 НВ1; 285,5 НВСР1; σв = 890 МПа; σ-1 = 650 МПа; τ = 380 МПа. табл. 3.2 [4].
Срок службы привода:
t = 24 · 365 · Kсут · Кгод · Кл = 24 · 365 · 0,25 · 0,7 · 15 = 2,3 · 104 ч
Учитывая график нагрузки:
t1 = 0,03 · 2,3 · 104 = 0,07 · 104 ч
t2 = 0,75 · 2,3 · 104 = 1,73 · 104 ч
t3 = 0,22 · 2,3 · 104 = 0,51 · 104 ч
NK4 = 60 · C · Σ[(Ti / Tmax)3 · n4 · ti] = 60 · 1 · [13 · 66,88 · 0,07 · 104 + 0,73 · 66,88 · 1,73 · 104 + 0,23 · 66,88 · 0,51 · 104] = 27 · 106
NHO = 16,5 · 106 табл. 3.3 [4] – число циклов перемены напряжений, соответствующих пределу выносливости.
При NK4 > NHO, коэффициент долговечности КН43 = КН44 = 1.
NFO = 4 · 106 - число циклов перемены напряжений при изгибе для всех видов сталей, стр. 56 [4].
При NK > NFO, коэффициент долговечности КF43 = КF44 = 1.
[σ]H3 = 1,8HBCP1 + 67 = 285,5 · 1,8 + 67 = 581 МПа
[σ]H4 = 1,8HBCP2 + 67 = 248,5 · 1,8 + 67 = 514 МПа
[σ]F1 = 1,03HBCP1 = 285,5 · 1,03 = 294 МПа
[σ]F2 = 1,03HBCP2 = 248,5 · 1,03 = 256 МПа
-
Расчет тихоходной ступени редуктора
Межосевое расстояние из условия контактной прочности зубьев:
α2 = Кα(U2 + 1)
= 495 · (4,04 + 1)
= 110 мм.
Кα = 495 – для прямозубых передач, стр. 135 [3].
КНβ = 1 – при постоянной нагрузке.
Принимаем α2 = 100 мм.
m = (0,01-0,02) α2 = 1-2 мм, принимаем m = 1,5 мм.
z3 = 2α2 / m(U2 + 1) = 2 · 100 / 1,5 · (4,04 + 1) = 26
z4 = z3U2 = 26 · 4,04 = 105
d3 = m z3 = 1,5 · 26 = 39 мм
da3 = d3 + 2m = 39 + 2 · 1,5 = 42 мм
dt3 = d3 – 2,5m = 39 – 2,5 · 1,5 = 35,25 мм
d4 = m z4 = 1,5 · 105 = 157,5 мм
da4 = d4 + 2m = 157,5 + 2 · 1,5 = 160,5 мм
dt4 = d4 – 2,5m = 157,5 – 2,5 · 1,5 = 153,75 мм
b4 = ψва · α2 = 0,4 · 100 = 40 мм
b3 = b4 + 5 = 40 + 5 = 45 мм
Окружная скорость:
V2 =
=
= 0,8 м/с
Назначим 8 степень точности изготовления зубьев, стр. 32 [1].
Коэффициент формы зуба: уF3 = 3,9, уF4 = 3,6, стр. 42 [1].
[σF3] / уF3 = 294 / 3,9 = 75,4 МПа; [σF4] / уF4 = 256 / 3,6 = 71 МПа
71<75,4 – следовательно, расчет ведем по зубьям колеса.
Коэффициент нагрузки: КF = КFβ · KFV = 1,03 · 1,1 = 1,14
Усилия в зацеплении:
окружное: Ft3 = Ft4 = 2T2 / d3 = 2 · 38,2 / 0,039 = 1959 H
радиальное: Fr3 = Fr4 = Ft3 · tgα = 1959 · tg 20° = 713 H
Напряжение изгиба в зубьях колеса:
σF4 = Ft4 · КF · уF4 / b · m = 1959 · 1,14 · 3,6 / 40 · 1,5 = 134 МПа<[σ]F4 = 256 МПа
Прочность зубьев по изгибу обеспечена.
Проверочный расчет зубьев по контактному напряжению:
σН =
=
= 532 МПа
КН = КНα· КНβ · КНV = 1 · 1 · 1,05 = 1,05
КНα = 1 стр. 32 [1]; КНβ = 1 табл. 3.1 [1]; КНV = 1,05 стр. 32 [1].
σН> [σ]Н2
Перегрузка
Δσ = ((532 – 514) / 532) · 100% = 3,2%
Δσ = 3,2% < [Δσ] = 5% - допускается.
Следовательно, прочность зубьев по контактному напряжению обеспечена.
-
Расчет быстроходной ступени редуктора
U1 = 5,22
Материалы и допускаемые напряжения одинаковы с тихоходной ступенью
αW1 = Кα(U1 + 1)
= 495 · (5,22 + 1)
= 79 мм.
Кα = 495 – для прямозубых передач, стр. 135 [3].
КНβ = 1 – при постоянной нагрузке.
Принимаем αW1 = 80 мм.
m = (0,01-0,02) αW1 = 0,8-1,6 мм, принимаем m = 1,25 мм.
z1 = 2αW1 / m(U1 + 1) = 2 · 80 / 1,25 · (5,22 + 1) = 21
z2 = z1U1 = 21 · 5,22 = 110
d1 = m z1 = 1,25 · 21 = 26,25 мм
da1 = d1 + 2m = 26,25 + 2 · 1,25 = 28,75 мм
dt1 = d1 – 2,5m = 26,25 – 2,5 · 1,25 = 23,13 мм
d2 = m z2 = 1,25 · 110 = 137,5 мм
da2 = d2 + 2m = 137,5 + 2 · 1,25 = 140 мм
dt2 = d2 – 2,5m = 137,5 – 2,5 · 1,25 = 134,38 мм
b2 = ψва · αW1 = 0,315 · 80 = 25 мм
b1 = b2 + 5 = 25 + 5 = 30 мм
Коэффициент формы зуба: уF1 = 4,07, уF2 = 3,6, стр. 42 [1].
Усилия в зацеплении:
окружное: Ft1 = Ft2 = 2T1 / d1 = 2 · 7,6 / 0,02625 = 579 H
радиальное: Fr1 = Fr2 = Ft1 · tgα = 579 · tg 20° = 211 H
[σF1] / уF1 = 294 / 4,07 = 72 МПа; [σF2] / уF2 = 256 / 3,6 = 71 МПа
71<72 – следовательно, расчет на изгиб ведем по зубьям колеса.
Коэффициент нагрузки: КF = КFβ · KFV = 1,04 · 1,25 = 1,3
КFβ = 1,04 табл. 3.7 [1], KFV = 1,25 табл. 3.8 [1].
Напряжение изгиба в зубьях колеса:
σF2 = Ft2 · КF · уF2 / b · m = 579 · 1,3 · 3,6 / 25 · 1,25 = 87 МПа<[σ]F2 = 256 МПа
Прочность зубьев по изгибу обеспечена.
Напряжение изгиба при перегрузке:
σFmax = σF · Tmax / Tном = 87 · 2,2 = 192 < [σFmax] = 681 МПа
[σFmax] = 2,74НВ2 = 2,74 · 248,5 = 681 МПа
Проверочный расчет зубьев по контактному напряжению:
σН2 =
=
= 461 МПа < [σ]Н2=514 МПа
КН = КНα· КНβ · КНV = 1 · 1 · 1,05 = 1,05
КНα = 1 стр. 32 [1]; КНβ = 1 табл. 3.1 [1]; КНV = 1,05 стр. 32 [1].
Проверка контактных напряжений при перегрузке:
σmax = σН ·
= 461 ·
= 684 МПа < [σНпр] = 1674 МПа
[σНпр] = 3,1 · σТ = 3,1 · 540 = 1674 МПа
Окружная скорость в зацеплении:
V1 =
= 3,14 · 0,02625 · 1410 / 60 = 2,8 м/с
Назначим 8 степень точности изготовления зубьев, стр. 32 [1].
-
Основные размеры корпуса и крышки редуктора
Толщина стенок:
δ = 0,025αW2 + 3 = 0,025 · 100 + 3 = 5,5 мм
δ1 = 0,02αW2 + 3 = 0,02 · 100 + 3 = 5 мм
Принимаем: δ = δ1 = 8 мм
Толщина поясов стыка: b = b1 = 1,5δ = 1,5 · 8 = 12 мм
Толщина бобышки крепления на раму:
p = 2,35δ = 2,35 · 8 = 20 мм
Диаметры болтов:
d1 = 0,03αW2 + 12 = 0,03 · 100 + 12 = 15 мм – М16
d2 = 0,75d1 = 0,75 · 16 = 12 мм – М12
d3 = 0,6d1 = 0,6 · 16 = 9,6 мм – М10
d4 = 0,5d1 = 0,5 · 16 = 8 мм – М8
-
Расчет ведомого вала и расчет подшипников для него
Диаметр выходного конца вала, исходя из расчета на кручение:
d =
=
= 31 мм
Принимаем: выходной диаметр Ø36 мм, под подшипники – Ø40 мм, под колесо -
Ø45 мм.
Усилие от муфты: FM = 250
= 250
= 3047 H
Ft4 = 1959 H, Fr4 = 713 H, a = 53 мм, b = 103 мм, с = 100 мм.
Реакции от усилий в зацеплении:
RAx(a + b) – Ft4b = 0; RAx = Ft4b / (a + b) = 1959 · 0,103 / 0,156 = 1294 H
RBx = Ft4 - RAx = 1959 – 1294 = 665 H
Mx = RBxb = 665 · 0,103 = 69 H · м
RAy = Fr4b / (a + b) = 713 · 0,103 / 0,156 = 471 H
RBy = Fr4 - RAy = 713 – 471 = 242 H
My = RByb = 242 · 0,103 = 25 H · м
Реакции от усилия муфты:
FM(a + b + c) – RAFм(a + b) = 0;
RAFм = FM(a + b + c) / (a + b) = 3047 · 0,256 / 0,156 = 5000 H
RBFм = RAFм - FM = 5000 – 3047 = 1953 H
RA =
=
= 1377 H
RB =
=
= 708 H
Для расчета подшипников:
RA' = RA + RAFм = 1377 + 5000 = 6377 H
RB' = RB + RBFм = 708 + 1953 = 2661 H
Опасное сечение I – I. Концентрация напряжений в сечении I – I вызвана напрессовкой внутреннего кольца подшипника на вал с натягом.
Реакции от усилия муфты:
FM(a + b + c) – RAFм(a + b) = 0;
RAFм = FM(a + b + c) / (a + b) = 3047 · 0,256 / 0,156 = 5000 H
RBFм = RAFм - FM = 5000 – 3047 = 1953 H
Материал вала – сталь 45, НВ = 240, σв = 780 МПа, σт = 540 МПа, τт = 290 МПа,
σ-1 = 360 МПа, τ-1 = 200 МПа, ψτ = 0,09, табл. 10.2 [2].
Расчет вала в сечении I - I на сопротивление усталости.
σа = σu = МAFм / 0,1d3 = 304,7 · 103 / 0,1 · 403 = 47,6 МПа
τа = τк /2 = Т3 / 2 · 0,2d3 = 148,5 · 103 / 0,4 · 403 = 5,8 МПа
Кσ / Кdσ = 3,8 табл. 10.13 [2]; Кτ / Кdτ = 2,2 табл. 10.13 [2];
KFσ = KFτ = 1 табл. 10.8 [2]; KV = 1 табл. 10.9 [2].
KσД = (Кσ / Кdσ + 1 / КFσ – 1) · 1 / KV = (3,8 + 1 – 1) · 1 = 3,8
KτД = (Кτ / Кdτ + 1 / КFτ – 1) · 1 / KV = (2,2 + 1 – 1) · 1 = 2,2
σ-1Д = σ-1 / KσД = 360 / 3,8 = 94,7 МПа, τ-1Д = τ -1 / KτД = 200 / 2,2 = 91 МПа
Sσ = σ-1Д / σа = 94,7 / 47,6 = 2; Sτ = τ -1Д / τ а = 91 / 5,8 = 15,7
S = Sσ Sτ /
= 2 · 15,7 /
= 2,6 > [S] = 2,5
Прочность вала обеспечена.
Выбор типа подшипника.
Осевые нагрузки отсутствуют, поэтому берем радиальные шарикоподшипники №208, С = 32 кН, С0 = 17,8 кН, d×D×B = 40×80×18
QA = RA' Kδ KT = 6377 · 1,3 · 1 = 8290 H
Ресурс подшипника:
Lh = a23(C / QA)m (106 / 60n3) = 0,8 · (32 / 8,29)3 · (106 / 60 · 66,88) = 1,1 · 104 ч
1,1 · 104 ч < [t] = 2,5 · 104 ч
Так как Lh < [t] возьмем роликовые подшипники №2308; С = 80,9 кН;
d×D×B = 40×90×23, тогда:
Lh = 0,7 · (80,9 / 8,29)3,3 · (106 / 60 · 66,88) = 3,2 · 104 ч > [t] = 2,5 · 104 ч
Подшипник подходит.
-
Расчет ведущего вала и расчет подшипников для него
Диаметр выходного конца вала, исходя из расчета на кручение:
d =
=
= 11,5 мм
Принимаем: dвых = dэл.дв. = 22 мм, под подшипники – Ø25 мм. Вал изготовлен заодно с шестерней Z1.
Усилие от муфты: FM = 125
= 125
= 345 H
Ft1 = 579 H, Fr1 = 211 H, a = 40 мм, b = 115 мм, с = 80 мм.
Реакции от усилий в зацеплении:
RBx(a + b) – Ft1a = 0; RBx = Ft1a / (a + b) = 579 · 0,04 / 0,155 = 149 H
RAx = Ft1 – RBx = 579 – 149 = 430 H
Mx = RAxa = 430 · 0,04 = 17,2 H · м
RBy = Fr1a / (a + b) = 211 · 0,04 / 0,155 = 55 H
RAy = Fr1 – RBy = 211 – 55 = 156 H
My = RByb = 55 · 0,115 = 6 H · м
Реакции от усилия муфты:
FM(a + b + c) – RAFм(a + b) = 0;
RAFм = FM(a + b + c) / (a + b) = 345 · 0,235 / 0,155 = 523 H
RBFм = RAFм - FM = 523 – 345 = 178 H
МХFм = RBFм b = 178 · 0,115 = 20,5 Н · м
МАFм = FM с = 345 · 0,08 = 27,6 Н · м
RA =
=
= 457 H
RB =
=
= 159 H
Для расчета подшипников:
RA' = RA + RAFм = 457 + 523 = 980 H
RB' = RB + RBFм = 159 + 178 = 337 H
Опасное сечение I – I. Концентрация напряжений в сечении I – I вызвана нарезкой зубьев.
МI-I =
=
= 38,2 Н · м
Определим диаметр вала в опасном сечении при совместном действии изгиба и кручения:
Мпр =
=
= 38,8 Н · м
dI-I =
=
= 18,6 мм < dt1 = 23,13 мм
Прочность вала обеспечена.
Выбор типа подшипника.
Осевые нагрузки отсутствуют, поэтому берем радиальные шарикоподшипники №205,
С = 14 кН, С0 = 6,95 кН, d×D×B = 25×52×15
QA = RA' Kδ KT = 980 · 1,3 · 1 = 1274 H
Ресурс подшипника:
Lh = a23(C / QA)m (106 / 60n1) = 0,8 · (14 / 1,27)3 · (106 / 60 · 1410) = 1,3 · 104 ч
1,3 · 104 ч < [t] = 2,5 · 104 ч
Так как Lh < [t] возьмем роликовые подшипники №2305; С = 40,2 кН;
d×D×B = 25×62×17,
тогда
Lh = 0,7 · (40,2 / 1,27)3,3 · (106 / 60 · 1410) = 7,3 · 104 ч > [t] = 2,5 · 104 ч
Подшипник подходит.
-
Расчет промежуточного вала и расчет подшипников для него
Исходные данные:
Ft2 = 579 H, Fr2 = 211 H, k = 43 мм, d = 60 мм, l = 54 мм, Ft3 = 1959 H, Fr3 = 713 H.
RСx(l + d + k) – Ft3(k + d) - Ft2k = 0;
RCx = (Ft3(k + d) + Ft2k) / (l + d + k) = (1959 · 0,103+ 579 · 0,043)/ 0,157 = 1444 H
RDx = Ft3 + Ft2 – RCx = 1959 + 579 – 1444 = 1094 H
RCy = (Fr3(k + d) - Fr2k) / (l + d + k) = (713 · 0,103- 211 · 0,043)/ 0,157 = 410 H
RDy = Fr3 - Fr2 – RCy = 713 - 211 – 410 = 92 H
Mx = RCxl = 1444 · 0,054 = 78 H · м; M'x = RDxk = 1094 · 0,043 = 47 H · м
My = RCyl = 410 · 0,054 = 22 H · м; M'y = RDyk = 92 · 0,043 = 4 H · м
MI-I =
=
= 81 H · м
RC =
=
= 1501 H
RD =
=
= 1098 H
Опасное сечение I – I. Концентрация напряжений в сечении I – I вызвана нарезкой зубьев. Определим диаметр вала в сечении I – I по совместному действию изгиба и кручения:
Мпр =
=
= 87,5 Н · м
dI-I =
=
= 24,4 мм < dt3 = 35,25 мм
Прочность вала обеспечена.
Вал изготовлен заодно с шестерней z3. Принято: под колесом z2 – Ø30 мм, под подшипниками – Ø25 мм. Выбор типа подшипника. Осевые нагрузки отсутствуют, поэтому берем радиальные шарикоподшипники №205,
С = 14 кН, С0 = 6,95 кН, d×D×B = 25×52×15
QС = RС Kδ KT = 1501 · 1,3 · 1 = 1951 H
Ресурс подшипника:
Lh = a23(C / QС)m (106 / 60n2) = 0,8 · (14 / 1,95)3 · (106 / 60 · 270) = 1,8 · 104 ч
1,8 · 104 ч < [t] = 2,5 · 104 ч
Так как Lh < [t] возьмем роликовые подшипники №2305;
С = 40,2 кН;
75>72>Характеристики
Тип файла документ
Документы такого типа открываются такими программами, как Microsoft Office Word на компьютерах Windows, Apple Pages на компьютерах Mac, Open Office - бесплатная альтернатива на различных платформах, в том числе Linux. Наиболее простым и современным решением будут Google документы, так как открываются онлайн без скачивания прямо в браузере на любой платформе. Существуют российские качественные аналоги, например от Яндекса.
Будьте внимательны на мобильных устройствах, так как там используются упрощённый функционал даже в официальном приложении от Microsoft, поэтому для просмотра скачивайте PDF-версию. А если нужно редактировать файл, то используйте оригинальный файл.
Файлы такого типа обычно разбиты на страницы, а текст может быть форматированным (жирный, курсив, выбор шрифта, таблицы и т.п.), а также в него можно добавлять изображения. Формат идеально подходит для рефератов, докладов и РПЗ курсовых проектов, которые необходимо распечатать. Кстати перед печатью также сохраняйте файл в PDF, так как принтер может начудить со шрифтами.















