123152 (689379), страница 2
Текст из файла (страница 2)
► твёрдость сердцевины, обеспечивающая надежную работу шестерни при динамических нагрузках: 35... 45 НRСэ;
► твердость резьбового конца HRC 25.. .40;
► нитроцементация для повышения твёрдости, для обеспечения более точной и продолжительной работы детали, глубина нитроцементированного слоя 1,0…1,4;
► шлифовальные прижоги не допускаются.
1.3 Обоснование метода получения заготовки
Выбор методов получения исходной заготовки оказывает большое значение на решение задачи экономии металла. Эта проблема стоит очень остро в массовом производстве, и поэтому необходимо снижать непроизводственные потери. При выборе методов получения исходных заготовок следует учитывать потери металла связанные с этими методами. При получении отливок из различных материалов потери составляют 35...54%, и при изготовлении методами поверхностно-пластического деформирования потери изменяются в пределах 5...37%.
Ковка на молотах и прессах, обладает довольно низким коэффициентом использования металла 9...22%. Для детали назначается большой припуск на сторону – 3,5 мм. Этот метод не требует дорогостоящих штампов, однако, от него придется отказаться, в связи с большим расходом металла (метод применяется в единичном и мелкосерийном производстве).
Штамповка на молотах является довольно производительным процессом. Детали (заготовки) получают несколькими ударами. Штампы позволяют назначать меньший припуск на обработку, а значит, процесс более точный, чем свободная ковка, а, следовательно, и более экономичный.
Процесс получения заготовки существенно облегчается и тем, что для заготовки назначают штамповочные уклоны, позволяющие легко извлекать заготовку из штампа. Но этот метод требует дорогостоящих штампов. Кроме этого, высота поковок может изменяться в довольно широком диапазоне, так как нет ограничения хода бабы молота по высоте. Припуск на обработку в плоскости разъёма обычно назначается на 15...25% больше, чем по высоте. Это делается с целью компенсации возможных неточностей движения бабы молота в направляющих. Также, допуски по высоте обозначаются несимметричными с положительными значениями, которые на 30...50% больше отрицательных, чтобы избежать дефектов по недоштамповке.
Все эти факторы не способствуют уменьшению количества металла, в заготовке.
Штамповка, на прессах (кривошипных горячештамповочных прессах) относится к числу наиболее прогрессивных производственных процессов, применяемых в современных кузнечных цехах. Заполнение ручья штампа, при штамповке на прессах, происходит за один нажим ползуна, а не за несколько ударов, как на молоте, поэтому штамповка на прессах производительнее штамповки на молотах в 1,5...2,5 раза. Благодаря постоянству хода ползуна в вертикальном направлении, точности движения ползуна в направляющих, жестокости конструкции пресса в целом и применению штампов с направляющими колонками, точность штамповки на прессах много выше точности на молотах. Штампы для штамповки на прессах обычно состоят из комплекта ручьевых вставок, объединённых в один пакет. Изготовление комплекта вставок обходится дешевле, изготовления соответствующего молотового штампа. Вставки служат дольше, так как работа совершается без ударов. Припуски на механическую обработку назначаются не более 2 мм, что меньше, чем на молотах. Кроме того, припуск постоянен по всей поверхности заготовки. При штамповке на прессах возможно применение выталкивателей, то есть отпадает необходимость назначать штамповочные уклоны. Без выталкивателя уклоны такие же, как при штамповке на молотах.
Из трёх рассмотренных методов обработки металлов давлением наиболее дорогим является штамповка на молотах, наиболее металлоемким – свободная ковка. Штамповка в прессах является наиболее точным, экономичным и производительным, а также, самым безопасным методом.
В данном проекте используем при изготовлении заготовки вторичного вала КП метод ковки.
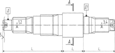
1.4 Выбор и обоснование технологических баз
Наиболее часто используемыми чистовыми технологическими базами для деталей типа вал являются центровые отверстия, т.к. основным размером на вал является, как правило, его диаметр. Установка по центровым отверстиям позволяет «поймать» ось детали и при этом погрешность базирования на диаметр будет нулевой.
Заготовка, приходящая на производство не имеет центровых отверстий. Ввиду этого на первой операции деталь заживается в призмы, фрезеруются торцы и после этого засверливаются центровые отверстия, которые и используются почти на всех операциях, т.к. позволяют легко, быстро и надежно закрепить деталь и при этом не мешают обработке. На операции резьбонарезания центровые отверстия мешают обработке, и поэтому на данной операции деталь зажимается в призмы. При фрезеровании прорези на валу центра использовать центровые отверстия за базу нельзя ввиду недоступности обрабатываемой поверхности и деталь устанавливается в специальном приспособлении, используя в качестве технологических баз поверхности под подшипники, т.к. они являются наиболее точными.
1.5 Погрешность базирования
| № опер | Описание схемы установки и теоретическая схема базирования | Погрешность базирования |
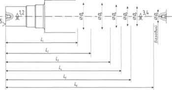
| 1.2 | Автоматно-линейная Классификация баз: 1,2,3,4 – двойная направляющая база, 5 – опорная база, 6-я степень свободы не отнята для вращения детали. | ∆б (L1) = 0 ∆б (L2) = 0 ∆б (L3) = 0 ∆б (L4) = 0 ∆б (L5) = 0 ∆б (L6) = 0 ∆б (D1) = 0 ∆б (D2) = 0 ∆б (D3) = 0 ∆б (D4) = 0 ∆б (D5) = 0 ∆б (D6) = 0 т.к. технологическая база совпадает с измерительной. |
| 1.2 | Автоматно-линейная Схема установки Деталь устанавливается в центра, при этом с левой стороны центр плавающий и деталь упирается в опору. Вращение детали осуществляется от поводкового патрона. |
| № опер | Описание схемы установки и теоретическая схема базирования | Погрешность базирования | |
| 28 | Шлицешлифование | ∆б (L1) = 0 ∆б (L2) = 0 ∆б (L3) = 0 т.к. они не зависят от базирования, т.к. обработка идёт напроход. ∆б (L) = 0 ∆б (D) = 0 ∆б () = 0 т.к. технологическая база совпадает с измерительной. | |
| Классификация баз: 1,2,3,4 – двойная направляющая база, 5 – опорная скрытая база, 6 – опорная база. | А-А | ||
| 28 | Шлицешлифование. Схема установки: Деталь устанавливается в центра, причём задний центр вращающийся. Вращение детали осуществляется от поводкового патрона. | ||
2. Расчет припусков и операционных размеров
Припуск – слой материала, удаляемый с поверхности заготовки в целях достижения заданных свойств обрабатываемой поверхности детали.
Расчетной величиной является минимальный припуск на обработку, достаточный для устранения на выполняемом переходе погрешностей обработки и дефектов поверхностного слоя, полученных на предшествующем переходе, и компенсации погрешностей, возникающих на выполняемом переходе.
Промежуточные размеры, определяющие положение обрабатываемой поверхности, и размеры заготовки рассчитывают с использованием минимального припуска.
Для определения минимального припуска используются следующие формулы:
► при последовательной обработке противолежащих поверхностей (односторонний припуск):
(1)
► при параллельной обработке противолежащих поверхностей (двусторонний припуск):
(2)
► при обработке наружных и внутренних поверхностей (двусторонний припуск):
(3)
где:
– высота неровностей профиля на предшествующем переходе,
– глубина дефектного поверхностного слоя на предшествующем переходе,
– суммарные отклонения расположения поверхности,
– погрешность установки заготовки на выполняемом переходе
Расчетные и максимальные значения припусков определяются по формулам:
(4)
(5)
Общие припуски определяются как сумма межоперационных (расчетных).
(6)
Если расчет выполнен правильно, должны выполняться условия:
(7)
(8)
2.1 Расчет припусков на размер Ø29,96-0,021 Ra = 0,63
1) Обработку указанной поверхности следует производить в 5 этапов:
I Точение предварительное;
II Точение окончательное;
III Шлифование черновое;
IV Шлифование чистовое;
V Полирование.
-
Для обработки целесообразно выбрать в качестве технологической базы ось заготовки, которая является двойной направляющей базой.
-
Определим значения шероховатости и дефектного слоя заготовки, зная, что масса заготовки составляет 9,550 кг по таблице №3 [1]:
Определяем значения шероховатости и дефектного слоя на каждой операции по таблице №5 [1].
► Точение предварительное: Rz = 80, П = 50
► Точение окончательное: Rz = 20, П = 25
► Шлифование черновое: Rz = 10, П = 20
► Шлифование чистовое: Rz = 2,5, П = 15
► Полирование: Rz = 0,63, П = 5
4) Определяем значение допусков Т для соответствующих операций по таблице №10 [1]. Для окончательной операции значение допуска берется с чертежа детали.
► Точение предварительное: Т = 390 мкм;
► Точение окончательное: Т = 100 мкм;
► Шлифование черновое: Т = 62 мкм;
► Шлифование чистовое: Т = 39 мкм;
► Полирование: Т = 21 мкм.
-
Определяем допуск на заготовку по таблице №23 [1] – 2-ая и 3-я графы: Тзаг = 1,10 + 0,55 = 1,65 мм = 1650 мкм.
-
Определим пространственные отклонения:
Для заготовки (рзаг) по таблице №4 (для установки вала по центровым отверстиям) [1]:
(9)
(10)
где: ∆к – допускаемая удельная кривизна поковок типа валов;
L – общая длина заготовки;
Т – допуск на базовой поверхности заготовки при зацентровке.
(11)
(12)
Пространственные отклонения при предварительном точении:
Пространственные отклонения при окончательном точении:
















