122960 (689309), страница 2
Текст из файла (страница 2)
.
Исходя из назначенных посадок, определяем значения предельных отклонений (пользуясь данными [3, таблицы А.1 – А.4]), допуски размеров, предельные значения и допуски зазоров или натягов:
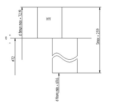
Для меньшего диаметра втулки Ø72Н11 (+0,19; 0):
Для меньшего диаметра вала Ø72:
Для соединения вала и втулки по меньшему диаметру Ø72:
Строим схему расположения полей допусков для соединения вала и втулки по меньшему диаметру (рис. 6).
Рисунок 5 – Схема расположения полей допусков для соединения вала и втулки по меньшему диаметру
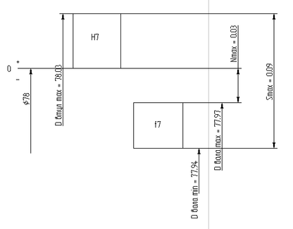
Для большего диаметра втулки Ø78Н7 (+0,03; 0):
Для большего диаметра вала Ø78f7 (-0,03; -0,06):
Для соединения вала и втулки по большему диаметру Ø78Н7/f7:
Строим схему расположения полей допусков для соединения вала и втулки по большему диаметру (рис. 7).
Рисунок 5.1 – Схема расположения полей допусков для соединения вала и втулки по большему диаметру
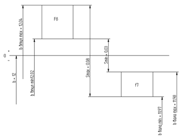
Для боковой поверхности зубьев втулки 12F8 (+0,043; +0,016):
Для боковой поверхности зубьев вала 12f7 (-0,016; -0,034):
Для соединения вала и втулки по боковой поверхности зубьев 12F8/f7:
Строим схему расположения допусков для соединения вала и втулки по боковой поверхности зубьев (рис. 8).
Рисунок 5.2 – Схема расположения допусков для соединения вала и втулки по боковой поверхности зубьев
Допуски симметричности боковых сторон шлицев в диаметральном выражении по отношению к оси симметрии центрирующего элемента выбираем по [3, таблица А.21]. При ширине шлица b = 12 мм допуск симметричности равен 0,018 мм.
Шероховатости элементов соединения выбираем по [3, таблица А.22]. При неподвижном соединении шероховатости поверхностей шлицевого соединения выбираем следующие:
– впадина отверстия –
– зуб вала –
– центрирующая поверхность втулки –
– центрирующая поверхность вала –
– нецентрирующая поверхность втулки –
– нецентрирующая поверхность вала –
Рисунок 5.3 – шлицевое соединение
Список использованных источников
1. Допуски и посадки: справочник: в 2 ч. / Под ред. В.Д. Мягкова. – изд. 6-е, перераб. – Л.: Машиностроение. Ленингр. отд-ние, 1983.
2. Медведева, О.И. Метрология, стандартизация и сертификация: учеб. Пособие / О.И. Медведева, М.В. Семибратова. – Комсомольск-на-Амуре: ГОУВПО «КнАГТУ», 2004. – 77 с.
3. Медведева О.И. Выбор и расчет посадок типовых соединений: методические указания к выполнению курсовой работы по дисциплине «Метрология, стандартизация и сертификация». Часть 1 / О.И. Медведева, Е.Г. Кравченко, А.С. Осипкина, В.В. Хруль. – Комсомольск-на-Амуре: ГОУВПО «КнАГТУ», 2007. – 34 с.
4. Медведева О.И. Выбор и расчет посадок типовых соединений: варианты заданий и чертежи для выполнения курсовой работы по дисциплине «Метрология, стандартизация и сертификация». Часть 2 /О.И. Медведева, Е.Г. Кравченко, А.С. Осипкина, В.В. Хруль. – Комсомольск-на-Амуре: ГОУВПО «КнАГТУ», 2006. – 32 с.
















