13717 (685898), страница 5
Текст из файла (страница 5)
Sn-площадь пола, м²
So-площадь окон, м²
СК=
=
Это нормально, так как по норме СК должен быть равен
. Также применяется в коровнике искусственное освещение, следовательно в коровнике комбинированное освещение.
9.2 Искусственное освещение
Искусственное освещение-освещение электролампами накаливания или люминесцентными лампами. Чаще применяются в сочетании с естественным освещением, когда его недостаточно. Чтобы проверить хватит ли света, то есть освещённость, рассчитывают удовлетворительную освещённость.
Для проверки качества освещённости рассчитываем удовлетворительную освещённость.
Уд.осв.=
, где
N-мощность ламп накаливания, Вт.
n-количество ламп накаливания, шт.
Sn-площадь пола, м².
Уд.осв.=
Вт/ м².
По норме на одну корову нужно 30лк, коэффициент перевода освещённости из Вт/ м² в люксы для лампы накаливания мощностью 100Вт.=2,5, найдём количество ламп.
П =
=202(шт)
Реально в коровнике 200шт. по 100Вт.
Уд.осв.=
Вт/ м².
12*2,5=30(лк)
Из расчётов видно, что освещения в помещении более чем достаточно.
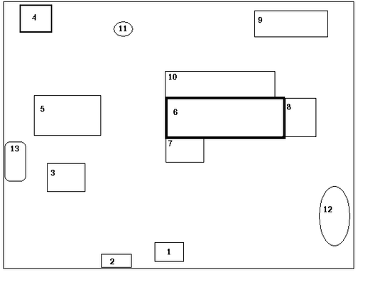
10. Графическая часть
Графическая часть позволяет полезно отобразить расположение зданий на территории фермы.
Рис. Генеральный план фермы. 1-административное здание; 2-ветсанпропускник; 3-кормоприготовительный цех; 4-изолятор, санчасть; 5-телятник; 6-коровник на 200 голов; 7-доильно-молочный блок; 8-родильное отделение; 9- навозохранилище; 10- выгульные дворы; 11- водонапорная башня; 12- сенажный бурт; 13- сено-база.
11. Меры по улучшению эксплуатации и технологического оборудования
1. Нужно проводить санитарно-дезинфекционные мероприятия на фермах и комплексах.
Дезинфекция - один из процессов технологии производства на животноводческих фермах, а также на предприятиях по производству молока, говядины, свинины, мяса птицы, яиц и других продуктах животноводства на промышленной основе.
Профилактическую дезинфекцию проводят по плану, в котором предусмотрены сроки, методы и режимы дезинфекционных работ, потребность в дезинфицирующих средствах с учетом вида и производственной группы животных, а также технологии производства, принятой на предприятии.
Вынужденную дезинфекцию проводят при возникновении инфекционной болезни животных. При этом проводят текущую дезинфекцию – сразу же после выявления заболевания животных и при каждом последующем случае выделения на ферме больных животных(дезинфицируют стойла и другие места, где находились эти животные), а в дальнейшем – периодически в сроки, указанные инструкции при соответствующей инфекционной болезни. После полной ликвидации заболевания делают заключительную дезинфекцию.
Сроки проведения профилактической дезинфекции:
1). В помещениях для животных на фермах – 2 раза в год (весной и осенью)
2). На предприятиях по производству говядины на промышленной основе:
- секций помещений первого периода откорма – через каждые 115дней, после перевода животных в помещения второго периода откорма;
- секций помещений второго периода откорма – через каждые 277 дней, после отправки откормленных животных на мясокомбинат;
- коридоры и галерей – ежедневно в конце смены;
- помещений для приема скота – после приема каждой партии телят.
3). На предприятиях по производству молока на промышленной основе:
- секций для содержания дойных и сухостойных коров – через каждые два месяца(мойку и дезинфекцию без решетчатых поверхностей – через каждые 14дней);
- в родильном отделении стойла – каждый раз после освобождения и перед постановкой в них коров для отела;
- навозные решетки и проходы – ежедневно, стены через каждые 14 дней;
- в профилактории для телят в период его освобождения от животных, клетки каждый раз перед их заполнением;
- доильные залы – 2 раза в месяц;
- доильные установки – после окончания доения после предварительной промывки теплой водой до полного удаления остатков молока;
-молочную посуду, танкеры для охлаждения и хранения молока – ежедневно в конце смены.
2. Нужно соблюдать ветеринарно-санитарные требования к качеству кормов и воде.
3. Нужно бережно относится к оборудованию.
4. При неисправностях сразу по возможности устранять их.
Заключение
При соблюдении параметров микроклимата можно добиться наивысших показателей продуктивности, что и делается на этой ферме. Зоотехник соблюдает все зоотехнические нормы. Экономика хозяйства развита достаточно, чтобы развиваться и внедрять новые технологии.
В последнее время много внимания уделяется полноценному кормлению. В корма добавляют минеральные и витаминные добавки. Это ведёт к хорошему здоровью животных, продуктивности и получению здорового потомства.
Климатические условия дают хорошую возможность рационально использовать пастбища.
Положительным аспектом развития хозяйства является то, что хозяйство многоотраслевое. Сами заготавливают корма для кормления животных. Так же осуществляют экспорт сырья: продажа молока, мяса, зерна. Так же в хозяйстве выращивают сахарную свеклу, отходы производства идут на кормление животных.
Список используемой литературы
-
Волков Г.К. Значение зоогигиены в практике животноводства / Г.К. Волков, И.Р. Смирнова // Зоотехния. – 2008. - №9. – С.31 – 32.
2. Гигиена сельскохозяйственных животных: В 2 кн. Кн.1. Общая зоогигиена/ А.Ф.Кузнецов, М.В.Демчук, А.И.Карелин и др.; Под ред. А.Ф.Кузнецова и М.Ф.Демчука. – М.: Агропромиздат, 1991. – 399 с.
3. Гигиена сельскохозяйственных животных: В 2 кн. Кн.2. Частная зоогигиена/ А.Ф.Кузнецов, М.В.Демчук, А.И.Карелин и др.; Под ред. А.Ф.Кузнецова и М.Ф.Демчука. – М.: Агропромиздат, 1992. – 192 с.
4. Костюнина В.Ф. Зоогигиена с основами ветеринарии и санитарии/ В.Ф.Костюнина, Е.И.Туманова, Л.Г.Демидчик. – М.: Агропромиздат, 1991. – 480 с.
5. Онищенко В.И. Основы зоогигиены и ветпрофилактики/ В.И.Онищенко, Н.С.Калюжный. – М.: Высш.шк., 1984. – 304 с.
6. Практикум по зоогигиене/ А.Ф.Кузнецов, А.А.Шуканов, В.И.Баланин и др.; Под ред. А.Ф.Кузнецова. – М.: Колос, 1999. – 208 с.
7. Справочник зоотехника/ Г.Н.Доброхотов, А.А.Косынкин, В.К.Онисовец. – 4-е изд., перераб. – М.: Колос, 1980. – 768 с.















