CH5 (664296), страница 2
Текст из файла (страница 2)
Rз 4 Ом.
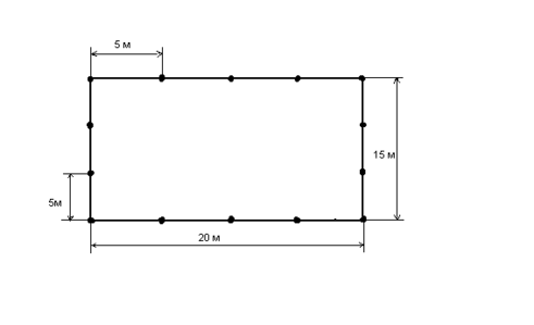
С учётом плана здания и его размеров строим предварительную схему заземлителя (рисунок 5.2).
Рисунок 5.2 - Схема контурного заземлителя
При этом вертикальные электроды размещаются на расстоянии а=5 м один от другого. Расчёт производим для однородной земли, где грунтом является суглинок, с удельным сопротивлением грунта р=100 Ом /м.
Заземлитель выполняется из вертикальных стержневых электродов длиной lв = 2,5 м, диаметром d = 12 мм, верхние концы которых соединяются с помощью горизонтальных электродов - стальных полос суммарной длиной
L = 2 A 2 B ; (5.6)
L = 2 20 2 15 = 70 м. (5.7)
и сечением 254 мм. Горизонтальные электроды уложены на глубину t0 = 0,8 м. Количество вертикальных электродов n = 70/5 = 14 шт.
Расчётные сопротивления растеканию тока электродов - вертикального Rв и горизонтального Rг определяются по соотношениям /8/ :
где t=t0+lB / 2 = 2,05 м ; (5.8)
Так как заземлитель контурный и n = 14 шт., то отношение
По справочным данным /8/ определяем коэффициенты использования электродов заземлителя - вертикальных и горизонтальных
в =0,66
г = 0,36
Сопротивление растеканию тока группового заземлителя рассчитывается по формуле :
Это сопротивление меньше допустимого сопротивления заземления ( 4 Ом ), что повышает безопасность эксплуатации оборудования.
В целях профилактики рекомендуется один раз в год определять сопротивление грунта.
5.3 Противопожарные мероприятия
Здания, где установлены компьютеры, можно отнести к категории Д пожарной опасности с третьей степенью огнестойкости - здания с несущими и ограждающими конструкциями из естественных или искусственных материалов, бетона или железобетона.
Пожары на вычислительных центрах представляют особую опасность, т.к. сопряжены с большими материальными потерями. Как известно, пожар может возникнуть при взаимодействии горючих веществ, окислителя и источника зажигания. В помещениях вычислительных центров присутствуют все три фактора, необходимые для возникновения пожара.
Возникновение пожара в рассматриваемом помещении наиболее вероятно по причинам неисправности электрооборудования, к которым относятся: искрение в местах соединения электропроводки, короткие замыкания в цепи, перегрузки проводов и обмоток трансформаторов, перегрев источников бесперебойного питания и другие факторы. Поэтому подключение компьютеров к сети необходимо производить через распределительные щиты, позволяющие производить автоматическое отключение нагрузки при аварии.
Особенностью современных ЭВМ является очень высокая плотность расположения элементов электронных схем, высокая рабочая температура процессора и микросхем памяти. Следовательно, вентиляция и система охлаждения, предусмотренные в системном блоке компьютера должны быть постоянно в исправном состоянии, т.к. в противном случае возможен перегрев элементов, не исключающий их воспламенение.
Надёжная работа отдельных элементов и электронных схем в целом обеспечивается только в определённых интервалах температуры, влажности и при заданных электрических параметрах. При отклонении реальных условий эксплуатации от расчётных, также могут возникнуть пожароопасные ситуации.
Серьёзную опасность представляют различные электроизоляционные материалы. Широко применяемые компаунды на основе эпоксидных смол состоят из горючих смол, выделяющих при горении удушающие газы. Материнские платы электронных устройств, а также платы всех дополнительных устройств ЭВМ изготавливают из гетинакса или стеклотекстолита. Пожарная опасность этих изоляционных материалов невелика, они относятся к группе трудно горючих, и могут воспламениться только при длительном воздействии огня и высокой температуры /9/.
Поскольку в рассматриваемом случае при возгораниях электроустройства могут находиться под напряжением, то использовать воду и пену для тушения пожара недопустимо, поскольку это может привести к электрическим травмам. Другой причиной, по которой нежелательно использование воды, является то, что на некоторые элементы ЭВМ недопустимо попадание влаги. Поэтому для тушения пожаров в рассматриваемом помещении можно использовать либо порошковые составы, либо установки углекислотного тушения. Но поскольку последние предназначены только для тушения небольших очагов возгорания, то область их применения ограничена. Поэтому для тушения пожаров в данном случае применяются порошковые составы, так как они обладают следующими свойствами: диэлектрики, практически не токсичны, не оказывают коррозийного воздействия на металлы, не разрушают диэлектрические лаки.
Установки порошкового пожаротушения могут быть как переносными, так и стационарными, причем стационарные могут быть с ручным, дистанционным и автоматическим включением.
Автоматическая установка и установка с механическим включением отличается только средствами открытия запорного крана. В автоматических установках используются различные датчики обнаружения пожара (по дыму, тепловому и световому излучению), а в механических специальные тросовые системы с легкоплавкими замками. В настоящее время освоены модульные порошковые установки ОПА-50, ОПА-100, УАПП /9/.
Для обеспечения тушения пожара в рассматриваемом помещении применяется автоматическая стационарная установка порошкового пожаротушения УПС-500. Установка порошкового тушения состоит из сосуда для хранения порошка, баллонов со сжатым газом, редуктора, запорной аппаратуры, трубопроводов и порошковых оросителей.
В рассматриваемом помещении применим извещатели типа ИП 104, которые срабатывают при превышении температуры в помещении +60 0С. И извещатели типа ИП 212, которые срабатывают при скоплении дыма в помещении.
Для профилактики пожарной безопасности организуем обучение производственного персонала (обязательный инструктаж по правилам пожарной безопасности не реже одного раза в год), издание необходимых инструкций с доведением их до каждого работника учреждения, выпуск и вывеска плакатов с правилами пожарной безопасности и правилами поведения при пожаре. Также необходимо наличие плакатов, информирующих людей о расположении аварийных выходов из здания в случае возникновения пожара, плана эвакуации людей в аварийных ситуациях.
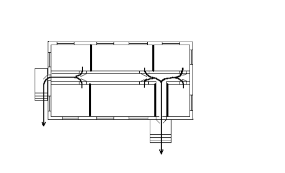
План эвакуации людей в случае пожара должен быть составлен таким образом, чтобы за кратчайшее время люди могли покинуть здание, не создавая пробки во время движения. Путь от дверей каждого помещения до выхода из здания должен быть по возможности минимальным. Для этого необходимо учесть расположение комнат и всех выходов из здания, включая аварийные. На рисунке 5.3 приведен план эваукации людей при пожаре в вычислительном центре.
Рисунок 5.3 - План эваккуации при пожаре
На данном плане показаны кратчайшие пути выхода из здания, включая аварийный выход. При этом не создаются пробки в коридорах и в дверных проходах, что позволяет покинуть помещение в кратчайшее время.
96
















