30432-1 (642439)
Текст из файла
Вопросы безопасной жизнедеятельности человека
Вопросы безопасной жизнедеятельности человека необходимо решать на всех стадиях жизненного цикла, будь то разработка, внедрение в жизнь или эксплуатация программы.
Обеспечение безопасной жизнедеятельности человека в значительной степени зависит от правильной оценки опасных, вредных производственных факторов. Одинаковые по тяжести изменения в организме человека могут быть вызваны различными причинами. Это могут быть какие-либо факторы производственной среды, чрезмерная физическая и умственная нагрузка, нервно-эмоциональное напряжение, а также разное сочетание этих причин.
В данной главе я решаю вопросы безопасной жизнедеятельности на стадии разработки программного комплекса, предназначенного контроля готовых изделий на наличие дефектов, диагностики и идентификации дефектов работающего оборудования с помощью исследования их спектральных графиков.
Лаборатория, в которой разрабатывался программный комплекс, находится в корпусе Энергетического Факультета ЮРГТУ(НПИ) на кафедре ЭВМ.
1 Анализ опасных и вредных факторов, воздействующих на программиста при разработке данной системы.
Опасные и вредные производственные факторы по природе возникновения делятся на следующие группы:
–физические;
–химические;
–психофизиологические;
–биологические.
В помещении лаборатории на программиста могут негативно действовать следующие физические факторы:
–повышенная и пониженная температура воздуха;
–чрезмерная запыленность и загазованность воздуха;
–повышенная и пониженная влажность воздуха;
–недостаточная освещенность рабочего места;
–превышающий допустимые нормы шум;
–повышенный уровень ионизирующего излучения;
–повышенный уровень электромагнитных полей;
–повышенный уровень статического электричества;
–опасность поражения электрическим током;
–блеклость экрана дисплея.
К химически опасным факторам, постоянно действующим на программиста относятся следующие:
–возникновение, в результате ионизации воздуха при работе компьютера, активных частиц.
Биологические вредные производственные факторы в данном помещении отсутствуют.
К психологически вредным факторам, воздействующим на оператора в течение его рабочей смены можно отнести следующие:
–нервно - эмоциональные перегрузки;
–умственное напряжение;
–перенапряжение зрительного анализатора.
Далее более подробно рассмотрены опасные и вредные факторы, воздействующие на программиста, возникшие в связи с разработкой данной системы.
1.1 Микроклимат рабочей зоны программиста
Микроклимат производственных помещений - это климат внутренней среды этих помещений, который определяется действующими на организм человека сочетаниями температуры, влажности и скорости движения воздуха
Лаборатория является помещением категории (выполняются легкие физические работы), поэтому должны соблюдаться следующие требования:
- оптимальная температура воздуха- 22 С (допустимая - 20-24 С), оптимальная относительная влажность- 40 -60% (допустимая - не более 75%) , скорость движения воздуха не более 0.1м/с.
Для создания и автоматического поддержания в лаборатории независимо от наружных условий оптимальных значений температуры, влажности, чистоты и скорости движения воздуха, в холодное время года используется водяное отопление, в теплое время года применяется кондиционирование воздуха. Кондиционер представляет собой вентиляционную установку, которая с помощью приборов автоматического регулирования поддерживает в помещении заданные параметры воздушной среды.
1.2 Освещение рабочего места
Работа, выполняемая с использованием вычислительной техники, имеют следующие недостатки:
- вероятность появления прямой блесткости;
- ухудшенная контрастность между изображением и фоном;
- отражение экрана.
В связи с тем, что естественное освещение слабое, на рабочем месте должно применяться также искусственное освещение. Далее будет произведен расчет искусственного освещения.
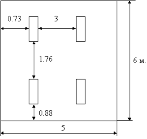
Размещение светильников определяется следующими размерами:
Н = 3 м. - высота помещения
hc = 0,25 м. - расстояние светильников от перекрытия
hп = H - hc = 3 - 0,25 = 2,75 м. - высота светильников над полом
hp = высота расчетной поверхности = 0,7 м (для помещений, связанных с работой ПЭВМ)
h = hп - hp = 2,75 - 0,7 = 2,05 - расчетная высота.
Светильника типа ЛДР (2х40 Вт). Длина 1,24 м, ширина 0,27 м, высота 0,10 м.
L - расстояние между соседними светильниками (рядами люминесцентных светильников), Lа (по длине помещения) = 1,76 м, Lв (по ширине помещения) = 3 м.
l - расстояние от крайних светильников или рядов светильников до стены, l = 0,3 - 0,5L.
lа = 0,5La, lв = 0,3Lв
la = 0,88 м., lв = 0,73 м.
Светильники с люминесцентными лампами в помещениях для работы рекомендуют устанавливать рядами.
Метод коэффициента использования светового потока предназначен для расчета общего равномерного освещения горизонтальных поверхностей при отсутствии крупных затемняющих предметов. Потребный поток ламп в каждом светильнике
Ф = Е r S z / N ,
где Е - заданная минимальная освещенность = 300 лк., т.к. разряд зрительных работ = 3
r - коэффициент запаса = 1,3 (для помещений, связанных с работой ПЭВМ)
S - освещаемая площадь = 30 м2.
z - характеризует неравномерное освещение, z = Еср / Еmin - зависит от отношения = L/h , a = La/h = 0,6, в = Lв/h = 1,5. Т.к. превышают допустимых значений, то z=1,1 (для люминесцентных ламп).
N - число светильников, намечаемое до расчета. Первоначально намечается число рядов n, которое подставляется вместо N. Тогда Ф - поток ламп одного ряда.
N = Ф/Ф1, где Ф1 - поток ламп в каждом светильнике.
- коэффициент использования. Для его нахождения выбирают индекс помещения i и предположительно оцениваются коэффициенты отражения поверхностей помещения пот. (потолка) = 70%, ст. (стены) = 50%, р. (пола) = 30%.
Ф = 300 1,3 25 1,1 / 2 0,3 = 21450 лм.
Я предлагаю установить два светильника в ряд. Светильники вмещаются в ряд, так как длина ряда около 4 м. Применяем светильники с лампами 2х40 Вт с общим потоком 5700 лм. Схема расположения светильников представлена на рисунке 1.1.
Рис. 1.1 Схема расположения светильников.
1.3 Воздействие шума на программиста. Защита от шума.
В помещениях с низким уровнем общего шума, каким является лаборатория где работает программист, источниками шумовых помех могут стать вентиляционные установки, кондиционеры или периферийное оборудование для ЭВМ (плоттеры, принтеры и др). Длительное воздействие этих шумов отрицательно сказываются на эмоциональном состоянии персонала.
Согласно ГОСТ 12.1.003-76 ССБТ эквивалентный уровень звука не должен превышать 50 дБА. Для того, чтобы добиться этого уровня шума рекомендуется применять звукопоглощающее покрытие стен.
В качестве мер по снижению шума можно предложить следующее:
-
облицовка потолка и стен звукопоглощающим материалом (снижает шум на 6-8 дб);
-
экранирование рабочего места (постановкой перегородок, диафрагм);
-
установка в компьютерных помещениях оборудования, производящего минимальный шум;
-
рациональная планировка помещения.
Поэтому я предлагаю для уменьшения шума в лаборатории использовать вместо матричного принтера, который производит много шума, более тихий – лазерный принтер.
Защиту от шума следует выполнять в соответствии с ГОСТ 12.1.003-76, а звукоизоляция ограждающих конструкций должна отвечать требованиям главы СНиП 11-12-77 “Защита от шума. Нормы проектирования”.
1.4 Опасность повышенного уровня напряженности электромагнитного поля
Электромагнитные поля характеризующиеся напряженностями электрических и магнитных полей, наиболее вредны для организма человек. Основным источником этих проблем, связанных с охраной здоровья людей, использующих в своей работе автоматизированные информационные системы на основе персональных компьютеров, являются дисплеи (мониторы), особенно дисплеи с электронно-лучевыми трубками. Они представляют собой источники наиболее вредных излучений, неблагоприятно влияющих на здоровье программиста.
ПЭВМ являются источниками таких излучений как:
-
мягкого рентгеновского;
-
ультрафиолетового 200-400 нм;
-
видимого 400-700 нм,
-
ближнего инфракрасного 700-1050 нм;
-
радиочастотного З кГц-ЗО МГц;
-
электростатических полей;
Ультрафиолетовое излучение полезно в небольших количествах, но в больших дозах приводит к дерматиту кожи, головной боли, рези в глазах. Инфракрасное излучение приводит к перегреву тканей человека (особенно хрусталика глаза), повышению температуры тела. Уровни напряженности электростатических полей должны составлять не более 20 кВ/м. Поверхностный электростатический потенциал не должен превышать 500В. При повышенном уровне напряженности полей следует сократить время работы за компьютером, делать пятнадцатиминутные перерывы в течении полутора часов работы и, конечно же, применять защитные экраны. Защитный экран, изготовляемый из мелкой сетки или стекла, собирает на себе электростатический заряд. Для снятия заряда экран монитора заземляют.
Может возникнуть опасность по уровням напряженности электромагнитного поля. На расстоянии 5-10 см от экрана и корпуса монитора уровни напряженности могут достигать 140 В/м по электрической составляющей, что значительно превышает допустимые значения СанПиН 2.2.2. 542-96. Предельно допустимые значения характеристик ЭМП указана в таблице 1.1.
Таблица 1.1 Предельно допустимые значения характеристик ЭМП
| Наименование параметров | Допустимое Значение |
| Напряженность электромагнитного поля по электрической составляющей на расстоянии 50 см от поверхности видеомонитора | 10 В/м |
| Напряженность электромагнитного поля по магнитной составляющей на расстоянии 50 см от поверхности видеомонитора | 0,3 А/м |
| Напряженность электростатического поля не должно превышать: - для взрослых пользователей | 20 кВ/м |
| Напряженность электромагнитного поля на расстоянии 50 см вокруг ВДТ по электрической составляющей должна быть не более: | |
| - в диапазоне частот 5 Гц - 2 кГц; | 25 В/м |
| - в диапазоне частот 2 - 400 кГц | 2,5 В/м |
| Плотность магнитного потока должна быть не более: | |
| - в диапазоне частот 5 Гц – 2 кГц; | 250нТл |
| - в диапазоне частот 2 – 400 кГц | 25 нТл |
| Поверхностный электростатический потенциал не должен превышать | 500 В |
Для предупреждения внедрения опасной техники все дисплеи должны проходить испытания на соответствие требованиям безопасности (например международные стандарты MRP 2, TCO 99).
Так как работа программиста по виду трудовой деятельности относится к группе В – творческая работа в режиме диалога с ЭВМ, а по напряженности работы ко II категории тяжести (СанПиН 2.2.2.542-96), я предлагаю сократить время работы за компьютером, делать перерывы суммарное время которых должно составлять 50 минут при 8-ми часовой смене и, конечно же, применять защитные экраны. Например, защитный экран “ERGON” способен защитить организм человека от электромагнитных полей, благодаря внедрению новых идей, связанных с поляризованными покрытиями. Для снятия заряда защитный экран, установленный на мониторе необходимо заземлить.
1.5 Электробезопасность. Статическое электричество.
Помещение лаборатории по опасности поражения электрическим током можно отнести к 1 классу, т.е. это помещение без повышенной опасности (сухое, бес пыльное, с нормальной температурой воздуха, изолированными полами и малым числом заземленных приборов).
На рабочем месте программиста из всего оборудования металлическим является лишь корпус системного блока компьютера, но здесь используются системные блоки, отвечающие стандарту фирмы IBM, в которых кроме рабочей изоляции предусмотрен элемент для заземления и провод с заземляющей жилой для присоединения к источнику питания. Таким образом, оборудование обменного пункта выполнено по классу 1 (ПУЭ).
Электробезопасность помещения обеспечивается в соответствии с ПУЭ. Опасное и вредное воздействие на людей электрического тока, электрической дуги и электромагнитных полей проявляется в виде электротравм и профессиональных заболеваний.
Степень опасного и вредного воздействия на человека электрического тока, электрической дуги и электромагнитных полей зависит от:
-
Рода и величины напряжения и тока
-
Частоты электрического тока
-
Пути тока через тело человека
-
Продолжительности воздействия на организм человека
Электробезопасность в помещении лаборатории обеспечивается техническими способами и средствами защиты, а так же организационными и техническими мероприятиями.
Характеристики
Тип файла документ
Документы такого типа открываются такими программами, как Microsoft Office Word на компьютерах Windows, Apple Pages на компьютерах Mac, Open Office - бесплатная альтернатива на различных платформах, в том числе Linux. Наиболее простым и современным решением будут Google документы, так как открываются онлайн без скачивания прямо в браузере на любой платформе. Существуют российские качественные аналоги, например от Яндекса.
Будьте внимательны на мобильных устройствах, так как там используются упрощённый функционал даже в официальном приложении от Microsoft, поэтому для просмотра скачивайте PDF-версию. А если нужно редактировать файл, то используйте оригинальный файл.
Файлы такого типа обычно разбиты на страницы, а текст может быть форматированным (жирный, курсив, выбор шрифта, таблицы и т.п.), а также в него можно добавлять изображения. Формат идеально подходит для рефератов, докладов и РПЗ курсовых проектов, которые необходимо распечатать. Кстати перед печатью также сохраняйте файл в PDF, так как принтер может начудить со шрифтами.
















