150753 (621395), страница 2
Файл №621395 150753 (Расчет осветительных сетей предприятия) 2 страница150753 (621395) страница 22016-07-302016-07-30СтудИзба
Просмтор этого файла доступен только зарегистрированным пользователям. Но у нас супер быстрая регистрация: достаточно только электронной почты!
Текст из файла (страница 2)
Для однофазных сетей ΔUф = Iр (R·cosφ + x·sinφ)
R>>x
cosφ >> sinφ
ΔUф = Iр · R·cosφ
ΔUф = 5%
ΔU = I ·R cosφ = I · r0 ∙ l· cosφ
| r0 = | ΔUдоп |
| l · I · cosφ |
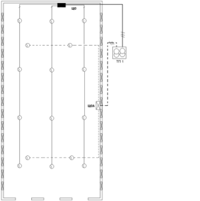
| Участок сети | Ip, А | сеч. мм2 | Iдоп, А | r0, Ом/км | l, км | ΔU, В | ΔU, % | |
| 5 | 6 | 3,02 | 15,90 | 75,00 | 1,98 | 0,00975 | 0,051 | 0,023 |
| 4 | 5 | 6,03 | 15,90 | 75,00 | 1,98 | 0,00975 | 0,101 | 0,046 |
| 3 | 4 | 9,05 | 15,90 | 75,00 | 1,98 | 0,00975 | 0,152 | 0,069 |
| 2 | 3 | 12,07 | 15,90 | 75,00 | 1,98 | 0,00975 | 0,203 | 0,092 |
| 1 | 2 | 15,08 | 15,90 | 75,00 | 1,98 | 0,00975 | 0,253 | 0,115 |
| Итого | 0,345 | |||||||
Итого: 0,345 %
6. Выбор автоматических выключателей
Условия выбора:
ΔUн = Uн сети
Iн р ≥ Iр
Iн авт ≥ Iн р
Iн откл ≥ Iп(3)
Защита должна зафиксировать опасный для сети ток:
| Iк(3) | ≥ 3 |
| Iн р |
Характеристики
Тип файла
Документ
Размер
3,71 Mb
Тип материала
Предмет
Учебное заведение
Неизвестно















