144912 (620794), страница 2
Текст из файла (страница 2)
Расчет подкрановой части колонны.
Размеры сечение подкрановой части колонны bxh=40x60см.
Защитный слой а=4см. Полезная высота сечения h0=60-4=56см.
Расчетная длина подкрановой части колонны l0=1,5H2=1,5x5,55=8,325(м). При учете крановой нагрузки (т. 32 СНиП II-21-75). Гибкость подкрановой части колонны:
, где
.
Значит, появляется необходимость учета влияния прогиба элемента на величину эксцентриситета продольной силы:
.
Случайные эксцентриситет:
Наибольшее значение случайного эксцентриситета
. Расчетный эксцентриситет
Находим условную критическую силу
, где
;
;
;
так как
следовательно принимаем значение
Кдл=1 – коэффициент учитывающий длительное влияние действия нагрузки на пргиб элемента в предельном состоянии. Придельный момент инерции сечения арматуры относительно центра тяжести бетонного сечения:
, где
;
Коэффициент
:
;
Расстояние
;
Граничное значение относительной высоты сжатой зоны бетона:
, где
;
;
Площадь арматуры в сжатой зоне
Сечение арматуры
назначаем по конструктивным соображениям:
Принимаем 3 Ø16 А-III, Аs=6.03см2
При принятом сечении
значение:
По таблице 2.11 (Мандриков)
Определим сечение растянутой арматуры
Сечение арматуры
назначаем по конструктивным соображениям:
Принимаем 3 Ø16 А-III, Аs=6.03см2
Принятый коэффициент армирования предварительно μ=0,005,
не значительно отличается от первоначально принятого μ=0,005, по этому корректировку расчета можно не производить. На широких гранях предусматриваем по 1 Ø16 А-III с тем, чтобы расстояние между продольными стержнями не превышало 400мм.
Расчет крановой консоли
d=750мм; b=600мм; h3=900мм; h4=600мм; а=40мм; h0=1460мм; h=1500мм; l=900мм
На крановую консоль ряда действует сосредоточенная сила от
веса подкрановой балки и вертикального давления кранов.
;
1) Используемый бетон класса В22,5 Rb=13.5 (МПа), Rbt=0,975 (МПа),
так как
, значит консоль короткая.
,
т.е. прочность бетонного сечения консоли достаточно и поперечное армирование ее выполняется по конструктивным требованиям (согласно Пособию по проектированию бетонных и железобетонных конструкций из тяжелых и легких бетонов без предварительного напряжения арматуры).
Поперечное армирование принимаем в виде горизонтальных хомутов из стержней Ø6 А-III с шагом 150 (мм) по высоте колонны.
2) Конструкция короткой консоли должна отвечать условию, обеспечивающему прочность бетона на наклонной сжатой полосе между грузом и опорой.
, где
- расчетный размер бетонной полосы
;
;
- коэффициент, учитывающий влияние поперечной арматуры.
,
где
- сечение двух горизонтальных хомутов.
;
Условие выполняется, прочность бетона на наклонной сжатой полосе обеспечена.
3) Расчет продольной арматуры:
Изгибающий момент:
По таблице 2.11 (Мандриков)
;
Требуемая площадь сечения продольной арматуры консоли:
Принимаем 2 Ø18 A-III As=5.09(cм2).
4) Определение сечения отогнутых стержней:
Принимаем 4 Ø20 A-III As=12,56(cм2).
5. Конструирование и расчет фундамента
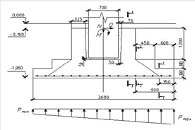
Глубину заложения фундамента принимаем 1.95 м. Обрез фундамента на отметке -0,150м. Расчетное сопротивление грунта основания R=215 кПа, средний удельный вес материала и грунта на нем γm=20 кН/м3. Бетон фундамента класса В12,5 с расчетными характеристиками Rb=7.5 МПа; Rbt=0.66 МПа; Арматура класса А-III.
На фундамент в уровне его обреза передаются от колонны следующие усилия
N= 185.0 (т); М=15.2 (т·м); Q= 2,9 (т);
Предварительные размеры подошвы фундамента.
Назначая отношение сторон
5 и предварительно установим размер меньшей стороны как для центрально нагруженного фундамента:
;
Примем
, тогда
;
Учитывая наличие момента и распора, увеличиваем размеры сторон примерно на 10-15%;
Принимаем
(кратно 300).
Площадь подошвы
;
Момент сопротивления подошвы в плоскости изгиба
;
Определение конфигурации фундамента.
Размеры подколонника в плане:
,
где
и
- толщина стенок стакана и зазор между гранью колонны и стеной стакана в направлении сторон l и b.
Рабочая высота плитной части из условия продавливания от граней подоконника.
Принимая bc=bcf=1.2м и hc=hcf=1.2м
Так как консольный вынос ступени получается больше оптимального, равного 3h01:
0,5(l-lcf)=0.5(3.6-1.2)=1.2>3h01=3x0.25=0.75(м), где h01=h1-a=300-50=250мм=0,25м,
поэтому принимаем плитную часть из двух ступеней высотой h1=h2=300мм. Размеры в плане второй ступени b1xl1=1.8x2.4м. Консольные выносы ступеней:
;
;
;
Глубина стакана под колонну hd=900мм
Проверка высоты нижней ступени.
Проверка на продавливание выполняется из условия:
, где Р=РmaxAf0 – продольная сила; bm=b1+h01=1.8+0.25=2.05 – размер средней линии грани пирамиды продавливания. При b-b1=3,0-1.8=1,2м>2h01=2x0.25=0.5м.
Площадь
=0,928(м2);
- продавливание нижней ступени не произойдет.
Проверка по поперечной силе для наклонного сечения, начинающаяся от грани второй ступени.
- перерезывающая сила. Минимальное поперечное усилие, воспринимаемое одним бетоном:
;
прочность нижней ступени по поперечной силе достаточны.
Проверку второй ступени на продавливание можно не производить, так как принятая высота плитной части значительно превышает требуемую из расчета на продавливание.
Подбор арматуры подошвы.
Площадь сечения рабочей арматуры подошвы:
, Мi-i и h01 – момент и рабочая высота в i-том сечении. Подбор арматуры в направлении длинной стороны подошвы.
Сечение I-I (h01=250мм):
;
Сечение II-II (h02=550мм):
;
Сечение III-III (h03=1750мм):
;
.
Приму 15 Ø 18 А-III (Аs=3810мм2>As,II=3542мм2) в направлении длинной стороны с шагом 200 мм.
Подбор арматуры в направлении короткой стороны.
Расчет ведется по среднему давлению по подошве
.
Рабочая высота
Сечение I’-I’ по грани второй ступени
;
Сечение II’-II’ по грани подколонника
;
Сечение III’-III’ по грани колонны
;
.
Принимаю вдоль короткой стороны фундамента 18 Ø 14 А-III (Аs=2770мм2>As,II=2245мм2) с шагом 200 мм.
Расчет продольной арматуры подколонника.
Расчет продольной арматуры подколонника. Толщину защитного слоя бетона принимаем не менее 50 мм, берем расстояние от наружной грани стакана до центра тяжести сечения арматуры a=a’=50мм.
Расчетный эксцентриситет продольной силы относительно арматуры As.
;
- момент на уровне низа подколонника.
Расчетный эксцентриситет относительно арматуры подколонника:
Требуемая площадь сечения симметричной арматуры:
;
;
;
то есть по расчету продольная арматура не требуется, но по конструктивным требованиям при As<0 ее количество должно быть не менее 0.05% площади поперечного сечения подколонника.
Принимаем по 5Ø14 А-III (Аs= А’s=769мм2) у граней подколонника, перпендикулярных плоскости изгиба. У смежных граней параллельных плоскости изгиба, с шагом не более 400 мм, т.е. по 3Ø14 A-III (Аs= 462 мм2).
Подбор поперечной арматуры подколонника.
При выполнении условия
,
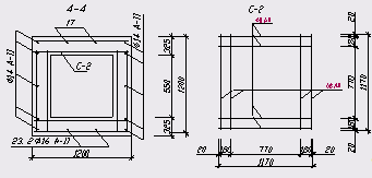
- поперечная арматура подколонника ставится конструктивно. Примем поперечную арматуру подколонника в виде горизонтальных сеток С-2 из стержней Ø 8 A-III с шагом 150 мм. Количество сеток 8 шт.
Расчет на смятие для стакана.
Расчет выполняется из условия
, где
- так как нагрузка почти равномерно распределенная;
- площадь смятия;
- расчетная площадь смятия;
Расчетное сопротивление смятию бетона:
, где
для бетона класса ниже В25.
Значит смятие бетона под колонной на дне стакана не произойдет, следовательно сетка под днищем стакана не требуется.
6. Конструирование и расчет КЖС-18
Бетон класса B30 с характеристиками Rb=17 МПа, Rbt=1.2 МПа, арматура класса А-IV, Rs=510 МПа, Rsc=400 МПа, Es=1.9x105 МПа, Eв=260x103 МПа.
Сбор нагрузок
| Элементы конструкции | Нормативная нагрузка кН/м2 | Коэф. Надежности γf | Расчетная нагрузка кН/м2 |
| Защитный слой из гравия на мастике, δ=20мм | 0,4 | 1,3 | 0,52 |
| Водоизоляционный ковер (три слоя рубероида на мастике) | 0,15 | 1,3 | 0,18 |
| Цементно-песчаная стяжка δ=20мм | 0,4 | 1,3 | 0,52 |
| Минераловатный плитный утеплитель (γ=3,7 кН/м3; δ=100мм) | 0,37 | 1,3 | 0,48 |
| Пароизоляция – два слоя пергамина на мастике | 0,1 | 1,3 | 0,12 |
| КЖС | 1,82 | 1,1 | 2.00 |
| Итого | 3,24 | - | 3.82 |
| Снеговая | 1 | 1.8 | 1.8 |
| ВСЕГО | 4.24 | 5.62 |
Размеры поперечного сечения панели-оболочки принимаем согласно рекомендациям: толщину оболочки 30 мм, толщину стены диафрагмы 40-50 мми нижнего утолщения 100х100 мм, высоту опорной части панели 150 мм.
С учетом коэффициента надежности принимаем нагрузку:
- нормативная (при γf=1) – 4.24 кН/м2;
- расчетная (при γf>1) – 5.62 кН/м2;
Расчетный изгибающий момент в середине пролета панели:
Расчетная поперечная сила:
Расчетные усилия от нормативных нагрузок:
Расчет толщины оболочки
Проверяем толщину оболочки в середине пролета:
- коэффициент условий работ тонкой оболочки – 0.75
Принимаем 3 см
Расчет арматуры в торце плиты
Определяем расчетное усилие Nt в торцевой арматуре:
Принимаем большее из двух значений.
g – расчетная нагрузка от веса панели на 1 м2; bs – расстояние между осями рабочей арматуры диафрагм; 2000 – сопротивление отрыву при съема панели с формы.
Принимаем Nt=76 кН
Площадь сечения торцевой арматуры As,t класса A-III c Rs=360 МПа (при d>10 мм):
Принимаем 2Ø12 A-III; As=2.26 см2.
Расчет диафрагм на действие поперечной силы.
Значение Q=150 кН. С учетом влияния изгибающего момента рассмотрим сечение, расположенное на расстоянии 1 м от оси опоры. В этом сечении ho=26.7 см; z0=24.4 см; tgφ=0.19; толщина диафрагм b’=10 см; Rbt=1.2 МПа.
Усилие в сечении:
Определяем часть поперечной силы, воспринимаемой диафрагмами:
,
где φ – угол наклона оси оболочки; при этом должно соблюдаться условие:
Условие
Условие соблюдается.
Следовательно, поперечная арматура по расчету не требуется, устанавливаем ее по конструктивным соображениям: Ø6 A-III с шагом 150 мм.
В вертикальных ребрах жесткости диафрагм через 1.5-1.6 м ставим подвески из арматур Ø10 A-III.
Расчет анкеров.
Площадь рабочей поверхности анкера рабочей арматуры каждой диафрагмы определяется из условий:
,
где М1 – изгибающий момент на всю ширину панели в сечении, расположенном на расстоянии 1.5 м от рабочей поверхности анкера; z1 – расстояние по вертикали от оси рабочей арматуры диафрагмы до оси оболочки в этом же сечении.
Площадь поверхности анкера по формуле:
0>















