144557 (620628)
Текст из файла
Бакалаврская работа
Производство керамической черепицы пластическим способом
РЕФЕРАТ
Данная работа включает в себя пояснительную записку в количестве 28 листов, содержит 4 рисунка, 4 таблицы.
КЕРАМИЧСКАЯ ЧЕРЕПИЦА, ПЛАСТИЧЕСКИЙ СПОСОБ ПРОИЗВОДСТВА КЕРАМИЧЕСКОЙ ЧЕРЕПИЦЫ, характеристики глинистого сырья, физико-химические основы производства.
Тема данной работы: «Производство керамической черепицы».
Область использования результатов: результаты могут быть использованы при проектировании завода по производству керамической черепицы.
Методы: стандартные в соответствии с ГОСТ 1808-79.
Результаты: разработана технологическая схема, произведен расчет материального баланса.
Эффективность: данный проект является эффективным для цеха по производству керамической черепицы.
СОДЕРЖАНИЕ
Введение
1. Общая часть
1.1 Обзор технологий
1.2 Выбор типоразмера изделия
2. Технологическая часть
2.1 Выбор, обоснование и описание технологической схемы производства керамической черепицы
2.2 Требования к сырью, требования по контролю качества, охрана окружающей среды
2.3 Выбор режима работы предприятия
3.Технологические расчеты
3.1 Производительность цеха
3.2 Расчет потребности в сырье
3.3 Подбор технологического оборудования
4. Организационно-экономическая часть
4.1 Схема управления предприятием
4.2 Основные экономические понятия и термины
4.3 Сравнительные (ориентировочные) цены на аналогичную продукцию различных предприятий
5. Применение ЭВМ
5.1 Набор записки в редакторе WORD
5.2 Выполнение графиков в Excel
5.3 Подготовка слайдов в Power Point
Заключение
Список используемых источников
ВВЕДЕНИЕ
Керамическая черепица — кровельный штучный керамический материал, получаемый путем обжига до спекания глин и их смесей. Керамическая черепица (так же её называют глиняная или натуральная черепица) является самым древним и самым распространенным в мире кровельным материалом. Этот высококачественный кровельный материал обладает множеством преимуществ - это эстетичный внешний вид, надежность и долговечность, огнестойкость. Керамическая черепица обладает низкой теплопроводностью. Также хорошо известна ее способность поглощать шум - черепица обладает хорошей звукоизоляцией и не накапливает статическое напряжение. Срок службы качественной керамической черепицы без необходимости проведения ремонта - более 100 лет. Ассортимент керамической черепицы насчитывает более 300 наименований, имеет широкий выбор цветовых решений, всевозможных профилей самой черепицы. Черепица обладает высокой прочностью, надежностью и долговечностью. Современные технологии нанесения покрытий на керамическую черепицу обеспечивают богатейший выбор цветов и оттенков матовых либо глянцевых поверхностей (ангобированная или глазурованная керамическая черепица).
Данная работа очень актуальна и в наше время, потому что подбор и анализ химического и минерального состава глинистого сырья очень важен для получения керамических материалов наилучших свойств.
1. ОБЩАЯ ЧАСТЬ
1.1 ОБЗОР ТЕХНОЛОГИЙ
Производство керамической черепицы состоит из следующих основных операций: добыча, транспортирование хранение сырьевых материалов, приготовление керамической массы, формование изделий, сушка и обжиг сырца
Один из способов производства черепицы - это способ полусухого прессования.
При использовании данного метода применяется шликерный способ подготовки массы с сушкой шликера в распылительных сушилках, полусухое прессование черепицы из порошкообразных масс, сушка и обжиг черепицы на поточно-конвейерных линиях.
Другим наиболее распространенным способом производства керамической черепицы является пластический способ, блок - схема которого представлена на рисунке 2.
Полученная в результате перемешивания пластичная масса с помощью шнекового устройства уплотняется и выдавливается через отверстия в форме плоской ленты. Эта лента режется на пластины определенного размера и вида сечения. Так возникают разные виды полукруглой черепицы типа «Бобровый хвост».
Качество выпускаемой продукции таким способом гораздо выше, чем способом полусухого прессования. Схема данного производства включает современное стандартное оборудование отечественных и зарубежных фирм, благодаря чему обеспечивается высокое качество формы и поверхности черепицы, почему мной и был выбран этот способ производства.
Выбран данный способ производства, потому что у него есть следующие преимущества:
- расход топлива и электроэнергии намного ниже по сравнению с другими технологическими схемами;
- производительность оборудования достаточно высокая, что позволяет, учитывая коэффициент использования, обеспечивать некоторое количество времени для ремонта оборудования;
- при использовании данной технологической схемы существует возможность замены дефицитного сырья отходами;
- существует возможность комплексной автоматизации и механизации. Производство керамической черепицы — практически полностью автоматизированный процесс, что позволяет существенным образом увеличить производительность, а, главное, качество продукции ;
- высокое качество готовой продукции, минимальный брак;
- трудоемкость умеренная. Обжиг — очень энергоемкий технологический процесс, чем и обусловлена высокая цена производимой продукции. Но, с другой стороны, высокая стоимость полностью соответствует качеству этого элитного кровельного материала.
1.2 ВЫБОР ТИПОРАЗМЕРА ИЗДЕЛИЯ
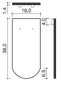
В данной курсовой работе рассматривается керамическая плоская ленточная черепица типа «Бобровый хвост» (рисунок 1).
В соответствии с ГОСТ 1808-79 по внешнему виду все типы черепицы могут быть натурально окрашенными, покрытыми ангобом и глазурованными. Рассматриваемое предприятие производит не глазурованную черепицу.
На внутренней стороне черепица имеет шипы с отверстиями для крепления к обрешетке гвоздями или проволокой.
Кровля из плоской черепицы не имеет закроев.
Рисунок 1- Керамическая черепица типа «Бобровый хвост»
2. ТЕХНОЛОГИЧЕСКАЯ ЧАСТЬ
2.1 ВЫБОР, ОБОСНОВАНИЕ И ОПИСАНИЕ ТЕХНОЛОГИЧЕСКОЙ СХЕМЫ ПРОИЗВОДСТВА КЕРАМИЧЕСКОЙ ЧЕРЕПИЦЫ
Из карьера, находящегося в непосредственной близости с заводом, глина набирается экскаватором и при помощи конвейера поступает на склады сырья. Разработке карьера предшествуют подготовительные работы: геологическая разведка с установлением характера залегания, полезной толщи и запасов глин; очистка поверхности от растений за год-два до начала разработки; удаление пород, непригодных для производства.
Проводится обработка глины с целью подготовки массы. В начале глина вылеживается в течение определенного времени, затем ее подвергают механической обработке на колесной мельнице. Мельница разбивает груды, чтобы глина лучше смешивалась с водой. В результате перемешивания получается однородная пластичная масса. Полученная в результате перемешивания пластичная масса с помощью шнекового устройства уплотняется и выдавливается через отверстия в форме плоской ленты. Эта лента режется на пластины определенного размера и вида сечения. Перед обжигом изделия должны быть обязательно высушены во избежание неравномерной усадки, искривлений и растрескивания. Сушка производится в специальных камерах в течение нескольких часов при постоянном контроле температуры и влажности воздуха. Процесс обжига можно разделить на три периода: прогрев сырца, собственно обжиг и регулируемое охлаждение. При нагреве сырца до 120oС удаляется физически связанная вода и керамическая масса становится непластичной. В температурном интервале от 450oС до 600oС происходит отделение химически связанной воды, разрушение глинистых минералов и глина переходит в аморфное состояние. При дальнейшем повышении температуры выгорают органические примеси и добавки, а керамическая масса безвозвратно теряет свои пластические свойства. При 800oС начинается повышение прочности изделия, благодаря протеканию реакции в твердой фазе на границах поверхностей частей компонентов. В процессе нагрева свыше 1000oС легкоплавкие соединения керамической массы и минералы плавки создают некоторое количество расплава, который обволакивает не расплавившиеся частицы, стягивает их, приводя к уплотнению и усадке массы в целом.
После остывания изделие приобретает камневидное состояние, водостойкость и прочность.
Рисунок 2- Блок – схема производства плоской ленточной черепицы типа «Бобровый хвост»
2.2 ТРЕБОВАНИЯ К СЫРЬЮ, ТРЕБОВАНИЯ ПО КОНТРОЛЮ КАЧЕСТВА, ОХРАНА ОКРУЖАЮЩЕЙ СРЕДЫ
Характеристика глинистого сырья
Полезная толща представлена четвертичными древнеаллювиальными суглинками коричневато-бурыми и глинами темно- коричневыми, серовато-желтыми и желтовато-серыми.
Вскрыша- почвенно-растительный слой средней мощностью от 0,6 м.
Химический состав глин в значительной мере характеризует их пригодность для производства изделий определенных видов. При сопоставлении химического состава различных глин обычно рассматривается количество оксидов различных химических элементов, из которых состоят все соединения глин. Химический состав глин представлен следующими основными оксидами.
Химический состав глины, % : SiO2общ.=63,74; SiO2связ.=20,30; Al2O3=17,68; Fe2O3=1,66; FeO=0,80; CaO=3,40; MgO=0,15; Na2O=0,86; K2O=0,56; Органика=0,61; SO3=5,15; ППП=5,00.
Результаты лабораторных исследований приведены в таблице 1.
Таблица 1. Гранулометрический состав
| Разновидности сырья | Гранулометрический состав,% | Засоренность в % | Коэффицинт соотношения к сумме | |||||
| По Рутковскому(фракции в мм) | Метод рассева на ситах | |||||||
| 0,005 | 0,05-0,005 | 1,0-0,05 | 900/0,2 | 49000/0,88 | ||||
| 1 | 24,93-51,07 | 42,53-69,00 | 2,70-24,50 | 0,06-4,04 | 0,26-17,96 | 0,02-1,95 | 1,41-2,04 | |
| 2 | 24,93-71,40 | 23,60-65,03 | 1,30-12,40 | 0,02-1,13 | 0,13-1,68 | - | 1,52-1,76 | |
| 3 | 6,79-21,52 | 51,47-72,87 | 12,40-40,60 | 0,37-8,45 | 2,95-22,64 | - | 0,52-1,77 | |
| 4 | 9,06-23,80 | 46,20-79,60 | 6,80-36,80 | 8,09-23,86 | 0,57-23,86 | - | 0,80-1,48 | |
ТРЕБОВАНИЯ ПО КОНТРОЛЮ КАЧЕСТВА
В соответствии с ГОСТом черепица должна отвечать следующим требованиям. В изломе черепица должна быть равномерно обожженной, мелкозернистой и однородной, без расслоений и известковых включений, вызывающих ее разрушение. Черепица должна иметь правильную форму с гладкими поверхностями и ровными краями, без короблений и трещин. Допускаются следующие отклонения по форме и внешнему виду: поверхность и ребра могут быть искривлены не более чем на 4 мм; шипы могут быть отбиты или смяты не более чем на 7мм.
Глубина пазов в закроях черепицы должна быть не менее 5 мм, высота шипов для подвески у штампованной черепицы — не менее 10 мм, у ленточной — не менее 20 мм. Ленточная черепица должна иметь в шипе для крепления отверстие диаметром не менее 1,5 мм.
При легком ударе стальным молотком черепица должна издавать чистый, не дребезжащий звук.
Масса 1 м2 покрытия в насыщенном водой состоянии должна быть не более 60 кг на 1 м для плоской черепицы.
По морозостойкости насыщенная водой черепица должна выдерживать без каких-либо признаков разрушения (выкрашивания, расслоения, растрескивания) не менее 25 повторных циклов попеременного замораживания при температуре — 15° С и ниже с последующим оттаиванием в воде при температуре 15±5°С.
Транспортирование и хранение черепицы производят, как правило, в неупакованном виде. Погрузка их навалом (набрасыванием) и разгрузка сбрасыванием запрещается.
Хранят черепицу на открытых площадках или под навесом в штабелях, причем в каждом штабеле должен находиться материал одного типа, марки, размера. Черепица при укладке в штабеля ставится на ребро по длине, и каждый ряд перекладывается прокладочными материалами (досками, дранкой, жгутами соломы и др.). Высота штабеля не должна превышать для черепицы 4-5 рядов.
Черепица выпускается толщиной 14 мм, размерами 380 мм на 180 мм. Черепица обладает достаточной прочностью, устойчивостью к воздействию окружающей среды и цветостойкостью. Так как возможности облицовки из керамики по долговечности, цвету, фактуре, получению разнообразных композиций практически неограниченны, использование этих материалов в сборном индустриальном домостроении ежегодно увеличивается.
ОХРАНА ОКРУЖАЮЩЕЙ СРЕДЫ
Проблемы защиты окружающей среды и, прежде всего охрана окружающего нас воздушного бассейна, в условиях современного мира приобретает всё большую остроту и актуальность. В нашей стране эта проблема рассматривается как необходимое условие общественного прогресса, важнейший фактор улучшения материально-бытовых условий жизни и непременное условие: достижения гармонии между природой и человеком. От общего баланса загрязнений атмосферного воздуха промышленными предприятиями – предприятия промышленности строительных материале достигают 8 % загрязнений.
Завод керамической черепицы распологается в промышленной зоне с подветренной стороны жилых массивов. Взаимное расположение цехов на территории завода предусмотрено таким образом, чтобы при направлении ветра в сторону жилой зоны их выбросы не объединялись.
Характеристики
Тип файла документ
Документы такого типа открываются такими программами, как Microsoft Office Word на компьютерах Windows, Apple Pages на компьютерах Mac, Open Office - бесплатная альтернатива на различных платформах, в том числе Linux. Наиболее простым и современным решением будут Google документы, так как открываются онлайн без скачивания прямо в браузере на любой платформе. Существуют российские качественные аналоги, например от Яндекса.
Будьте внимательны на мобильных устройствах, так как там используются упрощённый функционал даже в официальном приложении от Microsoft, поэтому для просмотра скачивайте PDF-версию. А если нужно редактировать файл, то используйте оригинальный файл.
Файлы такого типа обычно разбиты на страницы, а текст может быть форматированным (жирный, курсив, выбор шрифта, таблицы и т.п.), а также в него можно добавлять изображения. Формат идеально подходит для рефератов, докладов и РПЗ курсовых проектов, которые необходимо распечатать. Кстати перед печатью также сохраняйте файл в PDF, так как принтер может начудить со шрифтами.














