144506 (620608), страница 2
Текст из файла (страница 2)
Тип фундамента выбирается в зависимости от характера передачи нагрузки на фундамент: под стены зданий обычно устраиваются ленточные фундаменты из сборных элементов, под сборные железобетонные колонны — отдельные фундаменты стаканного типа.
Глубина заложения фундамента зависит от многих факторов. Определяющими из них являются:
- инженерно-геологические и гидрологические условия площадки и положение несущего слоя грунта;
- глубина промерзания грунта, если в основании залегают пучинистые грунты;
- конструктивные особенности подземной части здания.
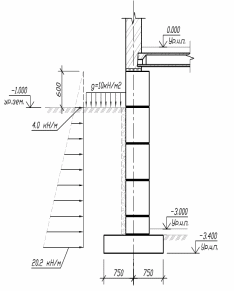
Глубину заложения ленточного фундамента Ф1 назначаем по конструктивным соображениям на 0.4 м ниже пола подвала т.е. -3.4м;
Глубину заложения фундамента Ф3 назначаем по конструктивным соображениям, верх стакана должен быть на 0.1 м ниже пола подвала (высоту фундамента принимаем 1.2м с глубиной стакана 0.9 м) т.о.
Отметка подошвы фундамента Ф3: -3.00-0.1-1.2= -4.3м;
2.2 Расчет фундаментов
В соответствии п. 4.2 СНБ 5.01.01-99 основания фундаментов должны рассчитываться по двум группам предельных состояний: первая группа — по несущей способности, вторая — по деформациям.
Расчет фундамента Ф1
Размеры подошвы фундамента зависят от ряда связанных между собой параметров и устанавливаются путем последовательного приближения. В порядке первого приближения площадь подошвы фундамента А определяется по формуле:
Где
– Расчетная нагрузка в плоскости обреза фундамента для расчета основания по предельному состоянию второй группы;
– Расчетное сопротивление грунта, залегающего под подошвой фундамента;
- Осредненное значение удельного веса материала фундамента и грунта на его уступах, принимается равным 20 кН/м3;
– глубина заложения фундамента от уровня планировки, м.
– 150 кН;
– 24 кНм;
– 200 кПа;
- 3.4 м.
Принимаем ширину подошвы фундамента 1.2м.
По расчетному сопротивлению глубина заложения - 4.0 м удовлетворяет. Фундамент будет располагаться во втором слое – песка мелкого плотного с
R= 400 кПа, который может быть несущим.
Определим суммарные нагрузки и воздействия на подошве фундамента:
Боковое давление грунта на отметке планировки:
На отметке подошвы фундамента:
Где
= 16 кН/м2 удельный вес грунта засыпки;
- приведенная толщина эквивалентного веса временной нагрузки;
Где
= 10 кН/м2 временная нагрузка на поверхности планировки;
d – глубина заложения фундамента, относительно поверхности земли, -2.4м.
- Осредненное значение угла сдвига грунта засыпки, принимаем 24˚;
Равнодействующая бокового давления грунта засыпки на стену подвала расчетной длиной 1.0 м:
Точка приложения равнодействующей:
- Нормальная вертикальная нагрузка:
Где
- расчетная нагрузка от веса фундамента;
- расчетная нагрузка от веса грунта на консоли подушки;
- Момент в плоскости подошвы фундамента:
Где
- момент в плоскости обреза фундамента, 24 кН*м (по заданию);
Проверка напряжений в основании фундамента:
(менее 10%)
(12)
где P – среднее давление под подошвой фундамента, кПа;
– соответственно максимальное и минимальное значение краевого давления по подошве внецентренно нагруженного фундамента, определяется по формуле:
(14)
условие 3 не выполняется, необходимо увеличение ширины фундамента, принимаем ширину подошвы фундамента 1.5м;
Тогда
- расчетное сопротивление грунта основания кПа, находится по формуле:
, (16)
где
с1 = 1,3 (зависит от типов грунтов)
с2 = 1,15 (зависит от соотношения L/H и интерполировать по данным
таблицы В.1 СНБ 5.01.01-99)
k = 1
М
Y = 1.81
Mq = 8.24 зависят от по таблице В.2
MC = 9.27
kz = 1
dI = 2.4 (глубина заложения фундаментов без подвальных сооружений от уровня планировки или приведенная глубина заложения наружных и внутренних фундаментов)
кПа
Р
= 141.5 кПа 593.4 кПа
Pmax =255.6 кПа 1,2 * 593.4 кПа
Pmin = 27.4 кПа > 0
Рисунок 1. Расчетная схема фундамента Ф1.
Окончательно принимаем ширину подошвы фундамента Ф1 1.5м, толщину стены фундамента 0.6 м из блоков ФБС.
Расчет фундамента Ф3
Размеры подошвы фундамента:
–3400 кН
– 400 кПа;
– 1.2 м.
Принимаем размеры подошвы фундамента кратными 300мм
Площадь подошвы
= 9.9 м2.
Высоту фундамента принимаем 1200 с глубиной стакана 900 мм.
- Нормальная вертикальная нагрузка:
- Среднее давление под подошвой фундамента, кПа;
-Максимальное и минимальное напряжение в основании фундамента:
Проверка напряжений в основании фундамента:
Условие:
Р
= 367.4 кПа 400 кПа (< 10%)
Pmax == 367.4 кПа 1,2 * 400.41 = 480.5 кПа
Pmin = = 367.4 кПа > 0
Выполняется.
Окончательно для фундамента Ф3 оставляем размер подошвы 3.3 х 3.0 м.
2.3 Расчет осадки фундамента мелкого заложения
Значение конечной осадки фундамента определяется по методу послойного суммирования по формуле:
Где s – конечная (стабилизированная) осадка фундамента;
– осадка i – слоя грунта основания;
- безразмерный коэффициент принимаемый 0.8;
n – число слоев, на которое разбита сжимаемая толща основания;
- среднее значение дополнительного напряжения в i-слое грунта;
- толщина i- го слоя;
- модуль деформации i –го слоя грунта.
Расчет осадки производится в такой последовательности:
-
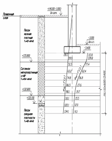
На геологический разрез наносят контур фундамента;
-
Толщу основания делят на слои ах некоторой ограниченной глубины (ориентировочно 4-кратной ширины подошвы фундамента). Толщину слоем принимают 0.4 ширины фундамента (
; -
Вычисляют значения вертикального напряжения от собственного веса грунта на границах выделенных слоев по оси Z, проходящей через центр подошвы фундамента, по формуле:
где
– напряжение от собственного веса грунта на уровне подошвы фундамента;
- удельный вес грунта, залегающего выше подошвы фундамента;
– глубина заложения фундамента от поверхности природного рельефа;
- соответственно удельный вес и толщина i-го слоя грунта.
Удельный вес грунта, залегающего ниже уровня подземных вод, но выше водоупора, принимается с учетом взвешивающего действия воды. При определении
в водоупорном слое следует учитывать давление столба воды;
-
Определяют дополнительные вертикальные напряжения на границах выделенных слоев по оси Z, проходящей через центр подошвы фундамента по формуле:
Где
- коэффициент принимаемый по табл. I прил.2 СНиП 5.01.01-99;
– дополнительное вертикальное давление на основание;
P – среднее давление под подошвой фундамента;
-
Устанавливают нижнюю границу сжимаемой толщи грунта основания, принимая ее на глубине z = hc, где выполняется условие:
-
Вычисляют значение деформации каждого слоя сжимаемой толщи, а затем определяют осадку фундамента суммированием деформаций отдельных слоев.
Расчет осадки фундамента Ф1:
l × b = 1×1.5 м.
Напряжение от собственного веса грунта на уровне подошвы фундамента:
Расчет осадки фундамента выполняем в табличной форме.
Таблица 2 Расчет осадок для фундамента Ф1.
| № слоя | Z, м | zg | =2z/b | zp | zpi | Ei, Мпа | si, см | |
| 0 1 2 3 4 5 .6 7 8 9 | 0,0 0,6 1,2 1.8 2,4 3.0 3.6 4.2 4.8 5.4 | 28.5 39.9 51.5 63.2 74.8 86.5 98.1 110.1 122.1 134.1 | 0 0.5 1.6 2.4 3.2 4.0 4.8 5.6 6.4 7.2 | 1.00 0.972 0.685 0.552 0.326 0.244 0.174 0.135 0.106 0.082 | 113.0 109.84 77.41 62.37 36.84 27.57 19.66 15.25 11.98 9.27 | 111.42 93.62 69.89 49.61 32.20 23.62 17.46 13.62 10.62 | 38.0 12.0 12.0 12.0 12.0 12.0 12.0 30.0 30.0 | 0.14 0.37 0.28 0.20 0.13 0.09 0.07 0.02 0.02 |
si = 1.32 см
;














